Id 141829

Москва, Ленинградский пр., д. 74, корп. 6/ 61.4 м2/Продажа INVITRO

адрес Москва, САО, Ленинградский пр., д. 74, корп. 6

Арендный бизнес
С отдельным входом
Торговая

Окупаемость: 11.8 лет

Доходность:8.45%

36 000 000 RUB | за все

(за 1 м2 — 586 319 RUB)

площадь 61.4 м2

QR код Qr код

Продажа нежилого помещения свободного назначения с сетевым арендатором: медицинская лаборатория "INVITRO" по адресу: САО, Москва, Ленинградский пр., д. 74, корп. 6, площадью 61.4 м2. Помещение располагается на первой линии внутриквартального пешеходного торгового коридора ведущего к метро "Сокол" (метро 200 метров). В ближайшем окружении большое количество ВУЗов, и Бизнес центров. Вдоль помещения проходит интенсивный пешеходный трафик.

Торговое соседство: Стройхозторг, салон красоты, кафе быстрого обслуживания "Subway" и др.

Технические параметры:
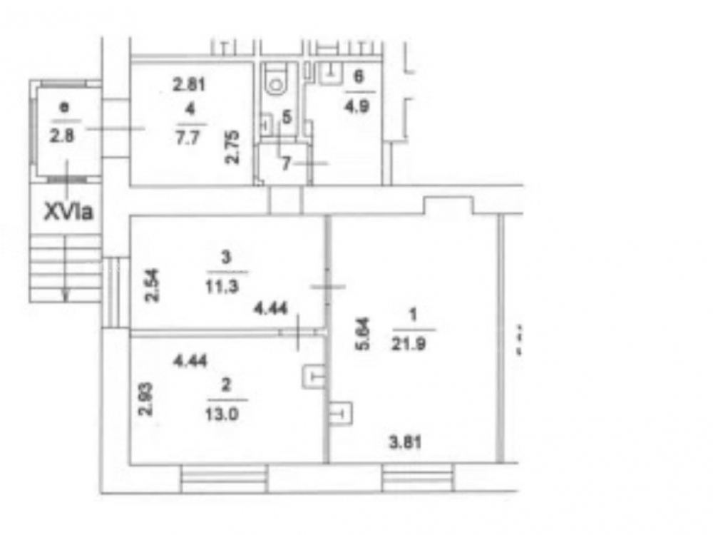
1 этаж 8-этажного многоквартирного сталинского дома. Общая площадь 64.1 м2. Зальная планировка. Три витринных окна. Высота потолков 3 м. Городские коммуникации. Выделенная эл. мощность: 15 кВт.

Арендатор:
медицинская лаборатория "INVITRO"
МАП: 255 000 рублей, ДДА с 2013 по 2025 г., ежегодная индексация 7% (по соглашению)
Ставка аренды за м2: 4 153 рубля

Коммерческие условия:
Стоимость объекта: 36 000 000 рублей
Стоимость за м2: 586 319 рубля
Окупаемость: 11.8 лет.

Технические характеристики

Тип здания: Арендный бизнес,С отдельным входом,Торговая

Общая площадь: 61.4  м2

Этаж: 1

Всего этажей: 8

Электрическая мощность: л

Высота потолков: лл

Парковка: л

Коммерческие условия

Цена за все: 36 000 000 RUB

ФОРМА ВЛАДЕНИЯ: л

Окупаемость: 11.8 лет

Доходность: 8.45%

карта

Расположение

Адрес: Москва, САО, Ленинградский пр., д. 74, корп. 6

Округ: Северный административный округ

Близость метро: Сокол

Транспортная доступность: л

Окружение

Торговое окружение: л

Адрес:

Москва, САО, Ленинградский пр., д. 74, корп. 6

Округ:

Северный административный округ

Близость метро:

Сокол

Транспортная доступность:

л

карта

Торговое окружение:

л

Общая площадь:

61.4  м2

Этаж:

1

Всего этажей:

8

Тип:

Арендный бизнес,С отдельным входом,Торговая

Электрическая мощность:

л

Высота потолков:

лл

Парковка:

л

ФОРМА ВЛАДЕНИЯ:

л

Цена за все:

36 000 000 RUB

Окупаемость:

11.8 лет

Доходность:

8.45%

Планировка

Прилепа Андрей

Ваш брокер по работе с клиентами

Найдите лучшее место
для жизни, бизнеса, инвестиций

Оставьте свои контакты — с вами свяжется руководитель отдела для презентации нужного вам объекта

Похожие объекты