Id 144764

Борисовские пруды, 14к4 - 100,3 м² / Аренда помещения свободного назначения / Медицина / Анализы

адрес Москва, Борисовские Пруды, 14к4

С отдельным входом
Торговая
Медицина

451 500 RUB | в месяц

(за 1 м2 — 4 501 RUB)

площадь 100.3 м2

QR код Qr код

Предлагается в аренду помещение свободного назначения (идеально под медицину) в первом доме от метро Борисово. В окружении густонаселенного жилого массива. Интенсивный, постоянный пешеходный трафик от/к метро. До метро Борисово 50 метров - прямая видимость. Якорным арендатором является супермаркет "Авоська" - это ближайший супермаркет от метро. Исторически-сложившийся центр торговли и оказания услуг вблизи метро.

Технические характеристики:
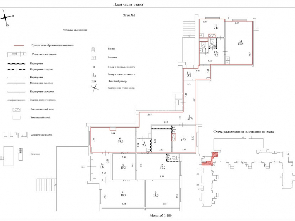
1-й этаж 17--этажного жилого дома. Площадь - 100,3 м². Кабинетная планировка. Окна по фасаду. Отдельный вход. Вывеска на фасаде. Парковка перед помещением. Высокий инвестиционный потенциал и высокая ликвидность. Отделка под медицину, за выездом арендатора. Идеально под стоматологию, косметологию, лабораторию анализов, клинику. Возможно создание субарендного бизнеса.

Коммерческие условия:
Стоимость аренды в месяц - 451 500 рублей в т.ч. НДС
Ставка за 1 м² в месяц - 4 502 руб. с НДС.
Ставка за 1 м² в год - 54 018 руб. с НДС.
Долгосрок возможен. Каникулы и льготный период обсуждаются.

Технические характеристики

Тип здания: С отдельным входом,Торговая,Медицина

Общая площадь: 100.3  м2

Этаж: 1

Всего этажей: 17

Электрическая мощность: -

Высота потолков: -

Парковка: -

Коммерческие условия

Цена в месяц: 451 500 RUB

ФОРМА ВЛАДЕНИЯ: -

карта

Расположение

Адрес: Москва, Борисовские Пруды, 14к4

Округ: Южный административный округ

Близость метро: Борисово

Транспортная доступность: -

Окружение

Торговое окружение: -

Адрес:

Москва, Борисовские Пруды, 14к4

Округ:

Южный административный округ

Близость метро:

Борисово

Транспортная доступность:

-

карта

Торговое окружение:

-

Общая площадь:

100.3  м2

Этаж:

1

Всего этажей:

17

Тип:

С отдельным входом,Торговая,Медицина

Электрическая мощность:

-

Высота потолков:

-

Парковка:

-

ФОРМА ВЛАДЕНИЯ:

-

Цена в месяц:

451 500 RUB

Планировка

Николай

Ваш брокер по работе с клиентами

Найдите лучшее место
для жизни, бизнеса, инвестиций

Оставьте свои контакты — с вами свяжется руководитель отдела для презентации нужного вам объекта

Похожие объекты