Id 146881

ул. Дружинниковская, 15 - 72 кв.м. - Продажа торгового помещения

адрес Москва, Дружинниковская, 15

Многофункциональный
С отдельным входом
Торговая
Общепит
Жилой комплекс (мфк)
Новостройка

178 300 000 RUB | за все

(за 1 м2 — 2 476 389 RUB)

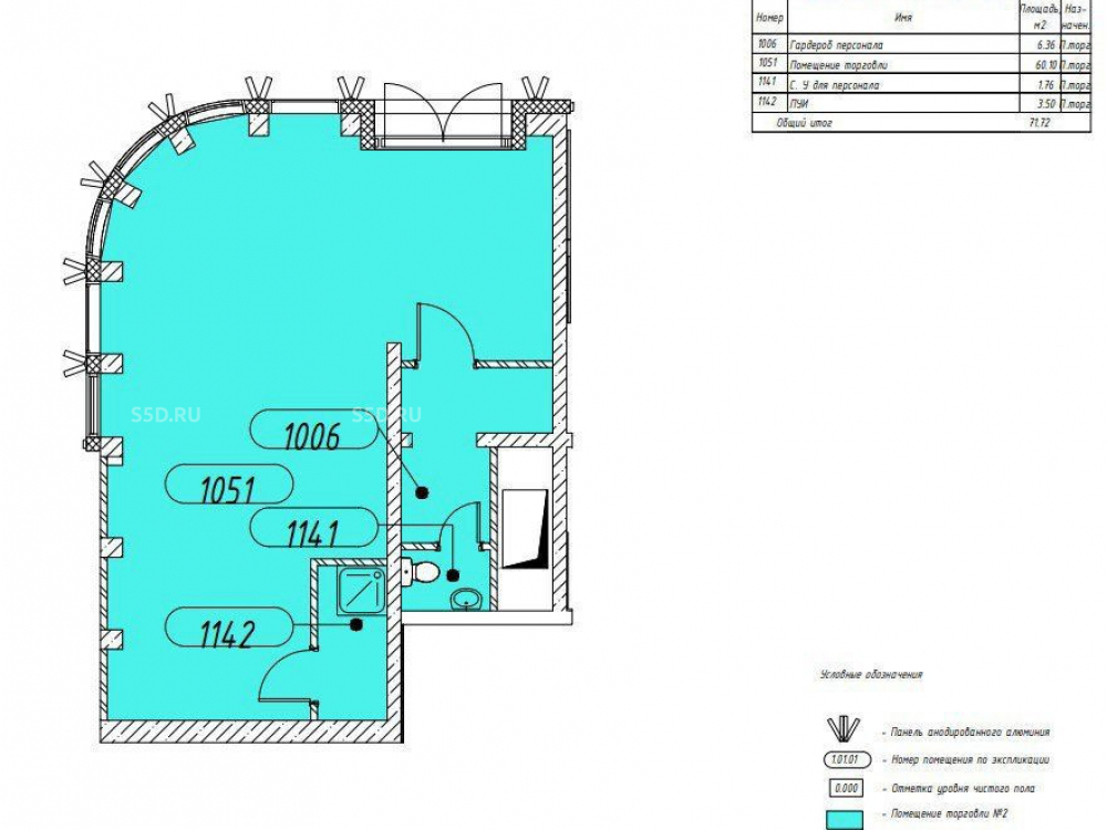
площадь 72.0 м2

QR код Qr код

В продажу предлагается торговое помещение с отдельным входом в жилом комплексе премиум-класса Sky View, расположенный в Пресне — в одном их самых престижных и лучших районов Москвы.

Технические характеристики: Общая площадь 72 кв.м., отдельный вход, открытая планировка, состояние помещения под отделку, высокие потолки 4.7 м., большие витринные окна - 5 шт., мокрые точки - 2, выделенная элетрическая мощность 0,2 кВт/кв.м., есть возможность сделать летнюю веранду.

Коммерческие условия:
Стоимость объекта 178 300 000 рублей с НДС
Стомисоть кв.м. 2 476 388 рублей
Форма сделки ДКП

Технические характеристики

Тип здания: Многофункциональный,С отдельным входом,Торговая,Общепит,Жилой комплекс (мфк),Новостройка

Общая площадь: 72  м2

Этаж: 1

Всего этажей: 20

Электрическая мощность: -

Высота потолков: 4,7

Парковка: -

Коммерческие условия

Цена за все: 178 300 000 RUB

ФОРМА ВЛАДЕНИЯ: -

карта

Расположение

Адрес: Москва, Дружинниковская, 15

Округ: Центральный административный округ

Близость метро: Краснопресненская

Транспортная доступность: -

Окружение

Торговое окружение: -

Адрес:

Москва, Дружинниковская, 15

Округ:

Центральный административный округ

Близость метро:

Краснопресненская

Транспортная доступность:

-

карта

Торговое окружение:

-

Общая площадь:

72  м2

Этаж:

1

Всего этажей:

20

Тип:

Многофункциональный,С отдельным входом,Торговая,Общепит,Жилой комплекс (мфк),Новостройка

Электрическая мощность:

-

Высота потолков:

4,7

Парковка:

-

ФОРМА ВЛАДЕНИЯ:

-

Цена за все:

178 300 000 RUB

Планировка

Шаклеина Юлия

Ваш брокер по работе с клиентами

Найдите лучшее место
для жизни, бизнеса, инвестиций

Оставьте свои контакты — с вами свяжется руководитель отдела для презентации нужного вам объекта

Похожие объекты