Id 147340

Ленинский проспект, 38 МФК Lunar- 1 463.6 м2 - Аренда

адрес Москва, Ленинский проспект,38

Бизнес центр
Многофункциональный
С отдельным входом
Торговая
Общепит
Медицина

7 318 000 RUB | в месяц

(за 1 м2 — 5 000 RUB)

площадь 1 463.6 м2

QR код Qr код

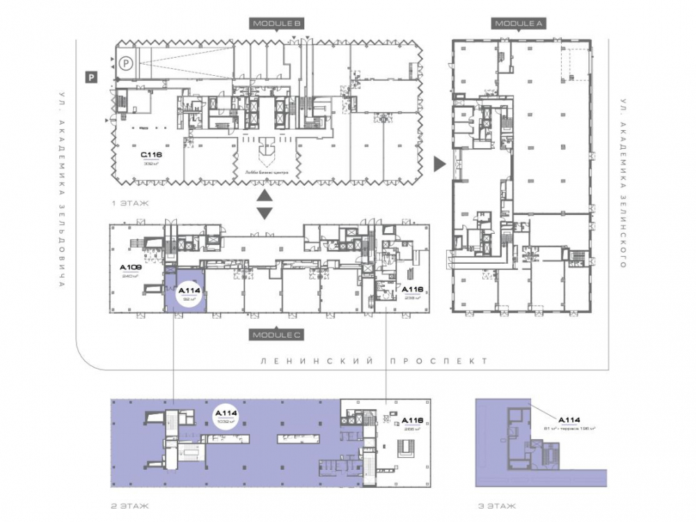
В аренду предлагается помещение свободного назначения в МФК Lunar по адресу: г. Москва, ЮЗАО, Ленинский проспект, 38. В шаговой доступности станция метро "Ленинский проспект" – 7 мин. В непосредственной близости штаб квартира Яндекса, численность сотрудников более 10 тыс. человек. Высокий автомобильный и пешеходный трафик.

Технические характеристики:
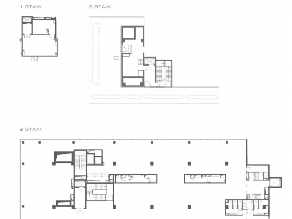
Общая площадь помещения – 1 463.6 кв.м., 1 этаж – 60.1 м2, 2 этаж - 1074.6 м2, 3 этаж - 56.7 м2(+ терраса 196.3 м2,) -1 этаж 75.9 м2. Отдельная входная группа с 1 линии. Открытая планировка. Витринное остекление. Высота потолков – 3,85 м. Вытяжная система вентиляции. Выделенная мощность 450 кВт.

Коммерческие условия:
Ставка аренды: 7 318 000 рублей в т.ч НДС
Ставка аренды 1 кв. м. : 5 000 рублей. в т.ч НДС
Ставка аренды 1 кв. м. в год: 60 000 рублей. в т.ч НДС

Технические характеристики

Тип здания: Бизнес центр,Многофункциональный,С отдельным входом,Торговая,Общепит,Медицина

Общая площадь: 1463.6  м2

Этаж: 2

Всего этажей: 15

Электрическая мощность: 450 квт

Высота потолков: 4

Парковка: есть

Коммерческие условия

Цена в месяц: 7 318 000 RUB

ФОРМА ВЛАДЕНИЯ: собственность

карта

Расположение

Адрес: Москва, Ленинский проспект,38

Округ: Юго-Западный административный округ

Близость метро: Ленинский проспект

Транспортная доступность: м. Ленинский проспект

Окружение

Торговое окружение: Магазины

Адрес:

Москва, Ленинский проспект,38

Округ:

Юго-Западный административный округ

Близость метро:

Ленинский проспект

Транспортная доступность:

м. Ленинский проспект

карта

Торговое окружение:

Магазины

Общая площадь:

1463.6  м2

Этаж:

2

Всего этажей:

15

Тип:

Бизнес центр,Многофункциональный,С отдельным входом,Торговая,Общепит,Медицина

Электрическая мощность:

450 квт

Высота потолков:

4

Парковка:

есть

ФОРМА ВЛАДЕНИЯ:

собственность

Цена в месяц:

7 318 000 RUB

Планировка

Мурат

Ваш брокер по работе с клиентами

Найдите лучшее место
для жизни, бизнеса, инвестиций

Оставьте свои контакты — с вами свяжется руководитель отдела для презентации нужного вам объекта

Похожие объекты