Id 147499

Каширское ш., 7к3 - 390.8 м² / Аренда торгового помещения

адрес Москва, Каширское ш., 7к3

Многофункциональный
С отдельным входом
Торговая

1 200 000 RUB | в месяц

(за 1 м2 — 3 071 RUB)

площадь 390.8 м2

QR код Qr код

Аренда торгового помещения. Адрес: ЮАО, район Нагатино-Садовники, Каширское шоссе, дом 7, корпус 3. Одна автобусная остановка от метро Нагатинская в 5 минутах от метро. Отдельный вход с тротуара без ступенек. Хорошая визуализация объекта с перекрёстка. В окружении жилого массива, производственно-складского комплекса и университета.

Технические характеристики
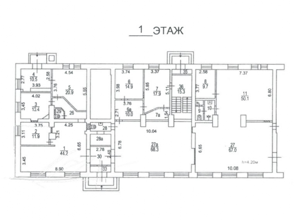
1-ый этаж 5-этажного жилого дома сталинской постройки. Общая площадь: 390,8 м². Отдельный вход с улицы и 2 служебных входа со двора. Зона разгрузки с заездом под шлагбаум. Витринное остекление. Высота потолков: 4,2 метра. Электричество: 45 кВт. Места для парковки со стороны двора.

Коммерческие условия
Стоимость аренды: 1 200 000 рублей в месяц
Ставка аренды за 1 м²: 3 071 рубль в месяц
Ставка аренды за 1 м²: 36 848 рублей в год
Коммунальные услуги - по факту потребления

Технические характеристики

Тип здания: Многофункциональный,С отдельным входом,Торговая

Общая площадь: 390.8  м2

Этаж: 1

Всего этажей: 5

Электрическая мощность: 15 кВт

Высота потолков: 4,2 метра

Парковка: во дворе под шлагбаумом

Коммерческие условия

Цена в месяц: 1 200 000 RUB

ФОРМА ВЛАДЕНИЯ: ИП

карта

Расположение

Адрес: Москва, Каширское ш., 7к3

Округ: Южный административный округ

Близость метро: Нагатинская

Транспортная доступность: 10 минут от м

Окружение

Торговое окружение: Дикси, ВИНЛАБ, Красное&Белое, анализы Гемотест

Адрес:

Москва, Каширское ш., 7к3

Округ:

Южный административный округ

Близость метро:

Нагатинская

Транспортная доступность:

10 минут от м

карта

Торговое окружение:

Дикси, ВИНЛАБ, Красное&Белое, анализы Гемотест

Общая площадь:

390.8  м2

Этаж:

1

Всего этажей:

5

Тип:

Многофункциональный,С отдельным входом,Торговая

Электрическая мощность:

15 кВт

Высота потолков:

4,2 метра

Парковка:

во дворе под шлагбаумом

ФОРМА ВЛАДЕНИЯ:

ИП

Цена в месяц:

1 200 000 RUB

Планировка

Дмитриев Александр

Ваш брокер по работе с клиентами

Найдите лучшее место
для жизни, бизнеса, инвестиций

Оставьте свои контакты — с вами свяжется руководитель отдела для презентации нужного вам объекта

Похожие объекты