Id 147555

Холодильный пер. д. 2 стр. 2 - 59.5 кв.м. / Продажа готового арендного бизнеса / Пекарня

адрес Москва, ЮАО, Холодильный пер. 2 стр. 2

Арендный бизнес
С отдельным входом
Торговая
Общепит

Окупаемость: 12 лет

Доходность:8.33%

82 000 000 RUB | за все

(за 1 м2 — 1 378 151 RUB)

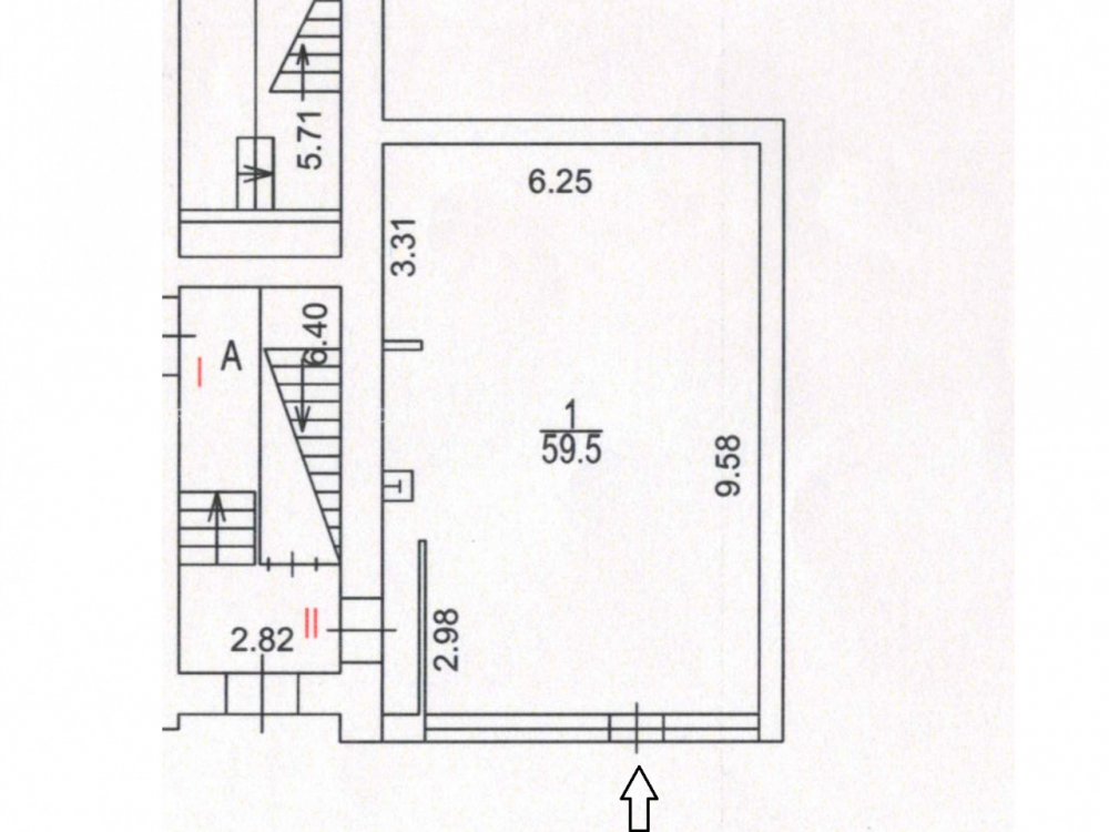
площадь 59.5 м2

QR код Qr код

Продажа арендного бизнеса с арендатором пекарня, по адресу: Москва, Холодильный пер. д. 2с2, ЮАО, район Даниловский. Ближайшая станция метро Тульская - 1 мин. пешком. Удобная транспортная доступность и близость к метро. Сверхинтенсивный пешеходный трафик от метро Тульская мимо здания к бизнес-парку Рябобская Мануфактура, особенно в часы пик.

Технические характеристики:
Площадь 59.5 кв.м, 1-й этаж 2-х этажного нежилого здания, отдельный вход с 1 линии, витринное остекление, открытая планировка. Состояние помещения - с ремонтом. высота потолков 3,5м. Все инженерные коммуникации центральные. Достаточное количество электроэнергии.
Торговое окружение: ТЦ Ереван плаза, ТЦ Тульский, Рябобская Мануфактура, KFC, кальянная, кофейня, шаурма, крупные городские ведомства.

Коммерческие условия:
Цена объекта: 93 500 000 руб. (УСН).
Стоимость за 1 кв.м - 1 571 429 руб.
Арендатор - Пекарня-шаурма
МАП - 570 000 руб. (включая КП)
ГАП - 6 840 000 руб.
Договор аренды на 5 лет до 2029 г.
Индексация - безусловная 5%.
Окупаемость - 12 лет
Форма собственности - физ. лицо.
Форма продажи: ДКПН

Технические характеристики

Тип здания: Арендный бизнес,С отдельным входом,Торговая,Общепит

Общая площадь: 59.5  м2

Этаж: 1

Всего этажей: 2

Электрическая мощность: 60 кВт

Высота потолков: 3.7м

Парковка: городская

Коммерческие условия

Цена за все: 82 000 000 RUB

ФОРМА ВЛАДЕНИЯ: ИП

Общий МАП: 570 000 RUB (данный МАП является минимальным, при оптимизации арендаторов арендный поток можно значительно увеличить)

Общий ГАП: 6 840 000 RUB

Окупаемость: 12 лет

Доходность: 8.33%

карта

Расположение

Адрес: Москва, ЮАО, Холодильный пер. 2 стр. 2

Округ: Южный административный округ

Близость метро: Тульская

Транспортная доступность: 1 минута пешком от м.Тульская

Окружение

Торговое окружение: ТЦ Ереван плаза, ТЦ Тульский, Рябобская Мануфактура, KFC, кальянная, кофейня, шаурма, крупные городские ведомства.

Адрес:

Москва, ЮАО, Холодильный пер. 2 стр. 2

Округ:

Южный административный округ

Близость метро:

Тульская

Транспортная доступность:

1 минута пешком от м.Тульская

карта

Торговое окружение:

ТЦ Ереван плаза, ТЦ Тульский, Рябобская Мануфактура, KFC, кальянная, кофейня, шаурма, крупные городские ведомства.

Общая площадь:

59.5  м2

Этаж:

1

Всего этажей:

2

Тип:

Арендный бизнес,С отдельным входом,Торговая,Общепит

Электрическая мощность:

60 кВт

Высота потолков:

3.7м

Парковка:

городская

ФОРМА ВЛАДЕНИЯ:

ИП

Цена за все:

82 000 000 RUB

Общий МАП: 570 000

(данный МАП является минимальным, при оптимизации арендаторов арендный поток можно значительно увеличить)

Общий ГАП:

6 840 000

Окупаемость:

12 лет

Доходность:

8.33%

Планировка

Воробьев Алексей

Ваш брокер по работе с клиентами

Найдите лучшее место
для жизни, бизнеса, инвестиций

Оставьте свои контакты — с вами свяжется руководитель отдела для презентации нужного вам объекта

Похожие объекты