Id 149390

1-я Тверская-Ямская, 7 - 142 кв.м / Аренда помещения свободного назначения / Подвал / Склад

адрес Москва, 1-я Тверская-Ямская, 7

Многофункциональный
С отдельным входом
Торговая
Общепит
Склад

320 000 RUB | в месяц

(за 1 м2 — 2 254 RUB)

площадь 142.0 м2

QR код Qr код

Аренда подвального помещения в центре Москвы, по адресу: 1-я Тверская-Ямская, 7

Первая линия домов по Тверской-Ямской улице напротив выхода из метро Маяковская.
Непрерывный интенсивный трафик вдоль помещения.
Торговое окружение - кафе, супермаркеты, банки, рестораны, офисы международных компаний: Пилзнер, Якитория, Чайхона №1, магазин Магнолия, офисное здание Нефтегазовой компании, государственные учреждения, ЖК "Резиденция Тверская".
Район отличается очень удобной транспортной развязкой, разнообразием фирменных магазинов и ресторанов, а также множеством других элитных комплексов Москвы.

Технические характеристики:
Площадь помещения 142 кв.м - подвальный этаж. Помещение подготовлено под массажный салон. Возможно использовать под иные цели. Вход со стороны двора через технологический подъезд. Электрическая мощность 50 кВт (возможно увеличение). Возможность вывода технологической вытяжки (есть согласованное место для установки венттрассы), приточно-вытяжная вентиляция, кондиционирование, большое количество мокрых точек. Удобный подъезд на погрузку-разгрузку в оборудованный технический тоннель со стороны двора.


Коммерческие условия:
Стоимость аренды в мес - 320 000 рублей
Ставка аренды за кв.м в месяц - 2 253 рублей
Ставка аренды за кв.м в год - 27 042 рублей
Форма собственности - ООО (УСН)
Прямая долгосрочная аренда
Оплата коммунальных услуг по факту потребления

Технические характеристики

Тип здания: Многофункциональный,С отдельным входом,Торговая,Общепит,Склад

Общая площадь: 142  м2

Этаж: -1

Всего этажей: 9

Электрическая мощность: 50 кВт

Высота потолков: 3 м

Парковка: На улице

Коммерческие условия

Цена в месяц: 320 000 RUB

ФОРМА ВЛАДЕНИЯ: Юр.лицо

карта

Расположение

Адрес: Москва, 1-я Тверская-Ямская, 7

Округ: Центральный административный округ

Близость метро: Маяковская

Транспортная доступность: Первая линия домов по Тверской-Ямской улице напротив выхода из метро Маяковская.

Окружение

Торговое окружение: Кафе, супермаркеты, банки, рестораны, офисы международных компаний: Пилзнер, Якитория, Чайхона №1, магазин Магнолия, офисное здание Нефтегазовой компании, государственные учреждения, ЖК

Адрес:

Москва, 1-я Тверская-Ямская, 7

Округ:

Центральный административный округ

Близость метро:

Маяковская

Транспортная доступность:

Первая линия домов по Тверской-Ямской улице напротив выхода из метро Маяковская.

карта

Торговое окружение:

Кафе, супермаркеты, банки, рестораны, офисы международных компаний: Пилзнер, Якитория, Чайхона №1, магазин Магнолия, офисное здание Нефтегазовой компании, государственные учреждения, ЖК

Общая площадь:

142  м2

Этаж:

-1

Всего этажей:

9

Тип:

Многофункциональный,С отдельным входом,Торговая,Общепит,Склад

Электрическая мощность:

50 кВт

Высота потолков:

3 м

Парковка:

На улице

ФОРМА ВЛАДЕНИЯ:

Юр.лицо

Цена в месяц:

320 000 RUB

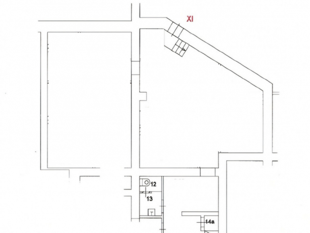
Планировка

Теребилов Михаил

Ваш брокер по работе с клиентами

Найдите лучшее место
для жизни, бизнеса, инвестиций

Оставьте свои контакты — с вами свяжется руководитель отдела для презентации нужного вам объекта

Похожие объекты