Id 149827
Москва, пр. Лихачева, д.20 - Аренда торгового помещения
Москва, проспект Лихачёва, 20
С отдельным входом
Торговая
1 233 450 RUB | в месяц
(за 1 м2 — 4 502 RUB)
274.0 м2
Qr код
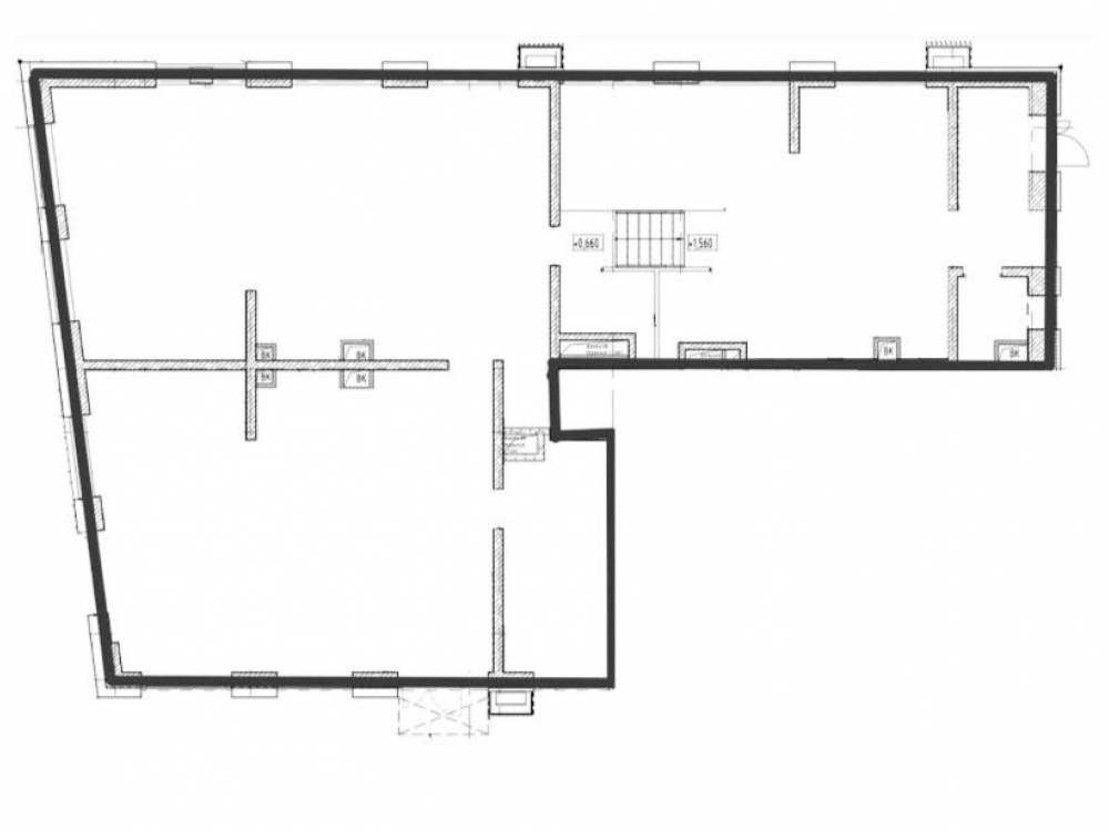
Предлагается в аренду нежилое помещение свободного назначения в ЮАО по адресу: Москва, ул.проспект Лихачёва, 20, площадью 274м2, помещение находится на углу корпуса, этажность корпусов 5-35 этажей ЖК бизнес-класса NAGATINO I-LAND . От метро Технопарк 5 мин. пешком. 458 Квартир на один дом 1145 жителей чистовая отделка (быстрое заселение) Всего в ЖК 12 корпусов ~15 000 жителей, также рядом находятся еще три ЖК. Паркинг на 1691м/м
Технические характеристики:
Общая площадь - 274 кв.м. открытая планировка • потолки 5м. Электрическая мощность- 54 кВт • витринное остекление в пол • высокий рекламный потенциал. • отдельный вход с видом на первую линию • мокрая точка • есть возможность установить вытяжку повышенной мощности • зона разгрузки • помещение в бетоне.
Дом введен в эксплуатацию
Коммерческие условия:
Ставка аренды в месяц - 1 233 450 рублей
Ставка аренды за м2/месяц - 4 500 рублей
УСН
Технические характеристики
Тип здания: С отдельным входом,Торговая
Общая площадь: 274 м2
Этаж: 1
Всего этажей: 8
Электрическая мощность: 54
Высота потолков: 5
Парковка: на улице
Коммерческие условия
Цена в месяц: 1 233 450 RUB
ФОРМА ВЛАДЕНИЯ: собственность
Расположение
Адрес: Москва, проспект Лихачёва, 20
Округ: Южный административный округ
Близость метро: Технопарк
Транспортная доступность: м. Технопарк
Окружение
Торговое окружение: Магазины
Адрес:
Москва, проспект Лихачёва, 20
Округ:
Южный административный округ
Близость метро:
Технопарк
Транспортная доступность:
м. Технопарк
Торговое окружение:
Магазины
Общая площадь:
274 м2
Этаж:
1
Всего этажей:
8
Тип:
С отдельным входом,Торговая
Электрическая мощность:
54
Высота потолков:
5
Парковка:
на улице
ФОРМА ВЛАДЕНИЯ:
собственность
Цена в месяц:
1 233 450 RUB
Планировка
Найдите лучшее место
для жизни, бизнеса, инвестиций
Оставьте свои контакты — с вами свяжется руководитель отдела для презентации нужного вам объекта