Id 152537

МО., г.о. Красногорск, пос. Ильинское-Усово, ЖК Рига Хиллс, к.2 / 70 кв.м. / Аренда ПСН

адрес жилой комплекс Рига Хиллс, к2

Многофункциональный
С отдельным входом
Торговая

231 000 RUB | за все

(за 1 м2 — 3 300 RUB)

площадь 70.0 м2

QR код Qr код

Предлагается в аренду помещение свободного назначения на въезде в ЖК "Riga Hills" площадью 70 кв.м. 1-я линия домов. ЖК "Riga Hills" от застройщика ГК UNION — состоит из 3-х 10-ти этажных корпусов. Первая очередь - корпус 2 и 3 ( ввод в эксплуатацию IV квартал 2025года. Общее количество коммерческих помещений - 7). Вторая очередь - корпус 1 ( ввод в эксплуатацию IV квартал 2026 года. 2052 квартиры). Подземная парковка предусмотрена только в первом корпусе. Помещение находится в стилобатной части, имеет прекрасную визуализацию, высокий рекламный и маркетинговый потенциал. Из Москвы до комплекса на автомобиле можно добраться по Рублево-Успенскому, Ильинскому или Новорижскому шоссе. От станций метро «Строгино», «Волоколамская» и «Тушинская» или от МЦД-2 «Павшино» на общественном транспорте дорога займет около 27 минут. Важное преимущество проекта — отдельный быстрый выезд на дублер Новорижского шоссе. В 2027 году в 10 минутах от комплекса будет открыта станция метро «Ильинская» новой Рублево-Архангельской линии.

Технические характеристики:
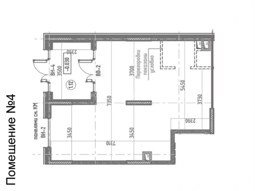
Угловое помещение общей площадью 70 кв.м. 1-ый этаж 10-ти этажного жилого дома. Открытая планировка. Отдельный вход с улицы. Высота потолка 4 метра, витринные окна по фасаду. Электрическая мощность по запросу. Рядом большая наземная парковка для жильцов 2 и 3 корпусов. Все городские коммуникации.

Коммерческие условия:
Ставка аренды в месяц - 231 000 руб.
Ставка за 1 кв.м в месяц- 3 300 руб.
Ставка за 1 кв.м в год - 39 600 руб.
Коммунальные платежи оплачиваются отдельно по факту потребления.

Технические характеристики

Тип здания: Многофункциональный,С отдельным входом,Торговая

Общая площадь: 70  м2

Этаж: 1

Всего этажей: 10

Электрическая мощность: -

Высота потолков: -

Парковка: -

Коммерческие условия

Цена за все: 231 000 RUB

ФОРМА ВЛАДЕНИЯ: -

карта

Расположение

Адрес: жилой комплекс Рига Хиллс, к2

Близость метро: Волоколамская,Строгино,Тушинская

Транспортная доступность: -

Окружение

Торговое окружение: -

Адрес:

жилой комплекс Рига Хиллс, к2

Округ:

Близость метро:

Волоколамская,Строгино,Тушинская

Транспортная доступность:

-

карта

Торговое окружение:

-

Общая площадь:

70  м2

Этаж:

1

Всего этажей:

10

Тип:

Многофункциональный,С отдельным входом,Торговая

Электрическая мощность:

-

Высота потолков:

-

Парковка:

-

ФОРМА ВЛАДЕНИЯ:

-

Цена за все:

231 000 RUB

Планировка

Степанов Анатолий

Ваш брокер по работе с клиентами

Найдите лучшее место
для жизни, бизнеса, инвестиций

Оставьте свои контакты — с вами свяжется руководитель отдела для презентации нужного вам объекта

Похожие объекты