Id 153047

Варшавское ш., 284к1 / 160 кв.м. / Аренда ПСН

адрес Варшавское ш., 284к1

Многофункциональный
С отдельным входом
Торговая

303 050 RUB | в месяц

(за 1 м2 — 1 900 RUB)

площадь 159.5 м2

QR код Qr код

Предлагается в аренду помещение свободного назначения на первой линии ЖК Никольские луга, площадью 159,5 кв.м. Объект расположен в динамично развивающемся районе по адресу: Варшавское ш., 284к1. Удобная транспортная доступность, станция D2 Щербинка расположена в 12-15 минутах пешком. Помещение имеет хорошую визуализацию, высокий рекламный и маркетинговый потенциал.

Торговое окружение: кафе Здрасте, Черная Кость, Здравсити, Горздрав,т Буханка, Магнит.

Технические характеристики:
1-ый этаж 16-х этажного жилого дома, помещение общей площадью - 159,5 кв.м. Два отдельных входа ( один с улицы и один со двора). Мощность электроэнергии 39,1 кВт с возможностью увеличения до 50 кВт. Высота потолков 4 м. Витринные окна. Место под вывеску на фасаде. Все центральные коммуникации.

Коммерческие условия:
Ставка аренды в месяц: 303 050 рублей.
Ставка аренды за 1 кв.м. месяц: 1 900 рублей НДС включен.
Ставка аренды за 1 кв.м. в год: 22 800 рублей НДС включен.

Технические характеристики

Тип здания: Многофункциональный,С отдельным входом,Торговая

Общая площадь: 159.5  м2

Этаж: 1

Всего этажей: 16

Электрическая мощность: 32

Высота потолков: 4

Парковка: У входа

Коммерческие условия

Цена в месяц: 303 050 RUB

ФОРМА ВЛАДЕНИЯ: ИП

карта

Расположение

Адрес: Варшавское ш., 284к1

Округ: Юго-Западный административный округ,Южный административный округ

Близость метро: Щербинка

Транспортная доступность: Удобная транспортная доступность, станция D2 Щербинка расположена в 12-15 минутах пешком.

Окружение

Торговое окружение: кафе Здрасте, Черная Кость, Здравсити, Горздрав,т Буханка, Магнит.

Адрес:

Варшавское ш., 284к1

Округ:

Юго-Западный административный округ,Южный административный округ

Близость метро:

Щербинка

Транспортная доступность:

Удобная транспортная доступность, станция D2 Щербинка расположена в 12-15 минутах пешком.

карта

Торговое окружение:

кафе Здрасте, Черная Кость, Здравсити, Горздрав,т Буханка, Магнит.

Общая площадь:

159.5  м2

Этаж:

1

Всего этажей:

16

Тип:

Многофункциональный,С отдельным входом,Торговая

Электрическая мощность:

32

Высота потолков:

4

Парковка:

У входа

ФОРМА ВЛАДЕНИЯ:

ИП

Цена в месяц:

303 050 RUB

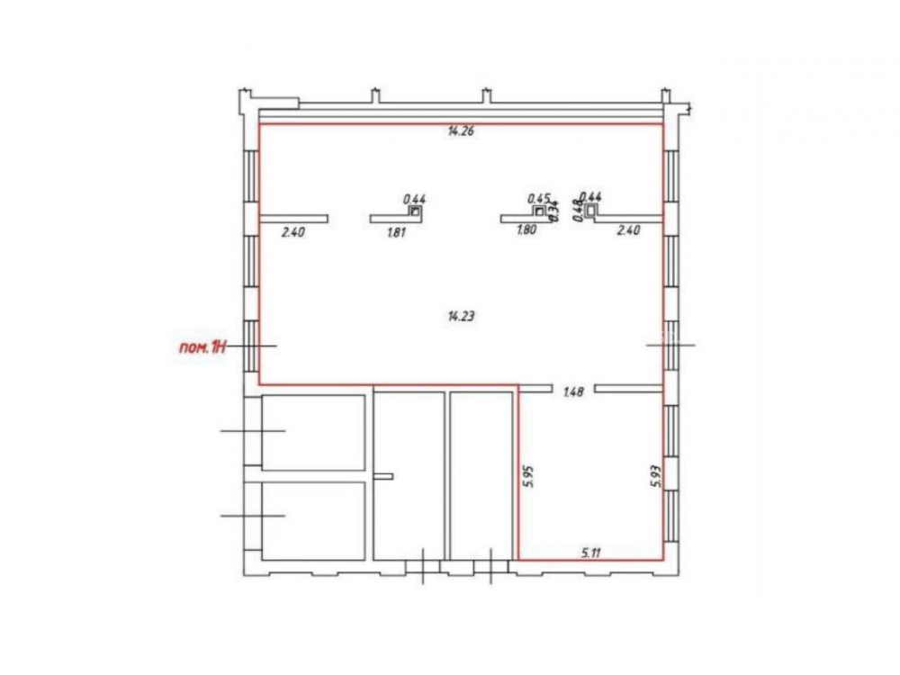
Планировка

Степанов Анатолий

Ваш брокер по работе с клиентами

Найдите лучшее место
для жизни, бизнеса, инвестиций

Оставьте свои контакты — с вами свяжется руководитель отдела для презентации нужного вам объекта

Похожие объекты