Id 153072

МО., Одинцовский г.о., рп. Заречье, ЖК Заречье Парк, Луговая улица, д.3 / 109 кв.м. / Аренда ПСН

адрес Луговая улица, 3

Многофункциональный
С отдельным входом
Торговая

283 400 RUB | в месяц

(за 1 м2 — 2 600 RUB)

площадь 109.0 м2

QR код Qr код

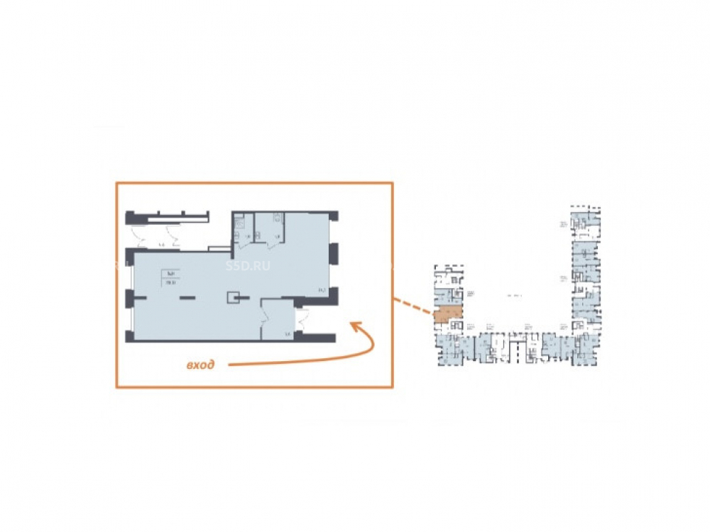
Предлагается в аренду, нежилое помещение свободного назначения по адресу: ЗАО, Московская обл., Одинцовский г.о., рп. Заречье, ЖК Заречье Парк, ул. Заречная, к3.1, площадью 109 м2. Новый ЖК Заречье Парк, от застройщика Самолет. Развитая транспортная доступность с удобным выездом на МКАД и Генерала Дорохова, так же остановки общественного транспорта.

Технические параметры:
Первый этаж с витринными окнами 9-ти этажного жилого дома, площадью 109 м2. Отдельный вход, свободная планировка. Высота потолков 5.5 м, количество электроэнергии 20 кВт с возможным увеличением, Состояния помещения - бетон.

Коммерческие условия:
Ставка аренды: 283 400 рублей.
Ставка аренды за 1 кв.м. в месяц: 2 600 рублей.

Технические характеристики

Тип здания: Многофункциональный,С отдельным входом,Торговая

Общая площадь: 109  м2

Этаж: 1

Всего этажей: 9

Электрическая мощность: -

Высота потолков: -

Парковка: -

Коммерческие условия

Цена в месяц: 283 400 RUB

ФОРМА ВЛАДЕНИЯ: -

карта

Расположение

Адрес: Луговая улица, 3

Округ: Западный административный округ

Близость метро: Аминьевская

Транспортная доступность: -

Окружение

Торговое окружение: -

Адрес:

Луговая улица, 3

Округ:

Западный административный округ

Близость метро:

Аминьевская

Транспортная доступность:

-

карта

Торговое окружение:

-

Общая площадь:

109  м2

Этаж:

1

Всего этажей:

9

Тип:

Многофункциональный,С отдельным входом,Торговая

Электрическая мощность:

-

Высота потолков:

-

Парковка:

-

ФОРМА ВЛАДЕНИЯ:

-

Цена в месяц:

283 400 RUB

Планировка

Степанов Анатолий

Ваш брокер по работе с клиентами

Найдите лучшее место
для жизни, бизнеса, инвестиций

Оставьте свои контакты — с вами свяжется руководитель отдела для презентации нужного вам объекта

Похожие объекты