Id 153385

Аренда помещения, 249 м2, ул Большая Никитская, д 12/1, м. Охотный ряд

адрес ул Большая Никитская, д 12/1

С отдельным входом

3 500 000 RUB | в месяц

(за 1 м2 — 14 062 RUB)

площадь 248.9 м2

QR код Qr код

Вашему вниманию предлагается в аренду помещение, общей площадью 249 квадратных метров, расположенное в жилом доме, на улице Большая Никитская 12/1. Ближайшие станции метро: м. Охотный ряд, Александровский сад. Помещение расположено в самой модной и востребованной локации города - на пересечении с Большой Никитской улицей в пешей доступности от Патриарших прудов. Интенсивный автомобильный и пешеходный трафик.
Торговое окружение: рестораны: Ugolёk, Северяне, Teatro, Muse, Maya, Loro, She, Юг22, Кофемания, Гвидон, Ikra, Krasota, Lucky Izakaya Bar, Палаццо Дукале, Remy Kitchen Bakery.
Театры: театр им. В. Маяковского, консерватория им. П. И. Чайковского, Геликон-опера, театр у Никитских ворот, театр на Малой Бронной, МХАТ имени М. Горького, МХТ им. А.П. Чехова, Большой театр.
Деловые центры: Романов Двор, Воздвиженка-Центр, Вознесенский, Женевский дом, Гостиный дом, Знаменка, Geneva house, БЦ «Большая Бронная».
Музеи и достопримечательности: Музей Анны Ахматовой, Музей им. Н.Г. Рубинштейна, Зоологический музей МГУ, Геологический институт, Центральный телеграф, Государственный, исторический музей, Московский Кремль, Синагога, Музей-квартира А.Н. Толстого, Особняк Зинаиды Морозовой, Дом-музей А.П. Чехова.

Технические характеристики:
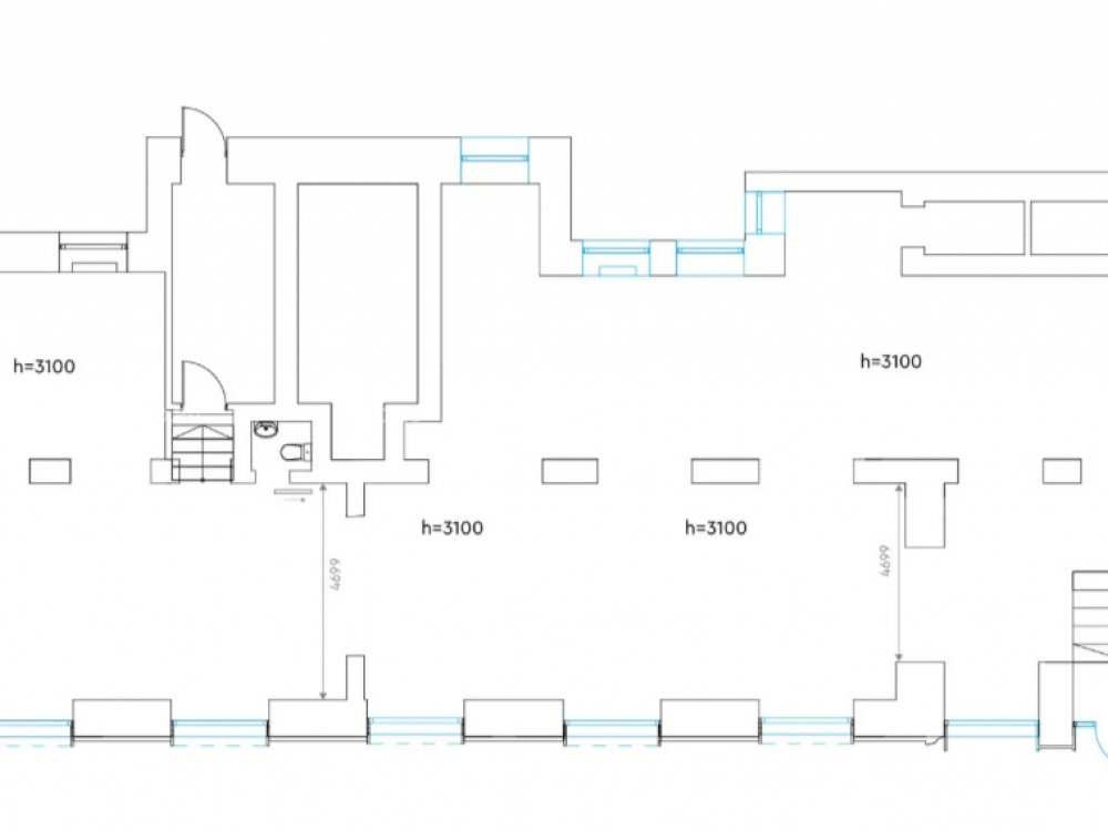
Площадь помещения: 248,9 квадратных метров.
Высота потолков: 3.1 метров.
Свободная планировка.
Витрины по всему периметру помещения.
Отделка в стиле White Box.
Вход в помещение отдельный с фасада, в блоке свой санузел.
Возможно размещение вывески.
Централизованная приточно-вытяжная вентиляция и система кондиционирования.
Автоматизированная система пожарного оповещения, пожаротушения и дымоудаления.
Подведено центральное отопление, канализация и водоснабжение.
В переулке городская парковка.
Назначение помещения: Отделение Банка, офис, аптека.

Коммерческие условия:
Стоимость аренды в месяц: 3 500 000 рублей, с учётом эксплуатации и УСН.
Коммунальные расходы оплачиваются по факту потребления.
Условия сделки обсуждаются на переговорах.

Технические характеристики

Тип здания: С отдельным входом

Общая площадь: 248.9  м2

Этаж: 1

Всего этажей: 6

Электрическая мощность: 79 кВт

Высота потолков: 3.1

Парковка: есть

Коммерческие условия

Цена в месяц: 3 500 000 RUB

ФОРМА ВЛАДЕНИЯ: собственность

карта

Расположение

Адрес: ул Большая Никитская, д 12/1

Округ: Центральный административный округ

Близость метро: Александровский сад,Охотный Ряд

Транспортная доступность: есть

Окружение

Торговое окружение: развитое

Адрес:

ул Большая Никитская, д 12/1

Округ:

Центральный административный округ

Близость метро:

Александровский сад,Охотный Ряд

Транспортная доступность:

есть

карта

Торговое окружение:

развитое

Общая площадь:

248.9  м2

Этаж:

1

Всего этажей:

6

Тип:

С отдельным входом

Электрическая мощность:

79 кВт

Высота потолков:

3.1

Парковка:

есть

ФОРМА ВЛАДЕНИЯ:

собственность

Цена в месяц:

3 500 000 RUB

Планировка

Александр Невский

Ваш брокер по работе с клиентами

Найдите лучшее место
для жизни, бизнеса, инвестиций

Оставьте свои контакты — с вами свяжется руководитель отдела для презентации нужного вам объекта

Похожие объекты