Id 154225

Аренда помещения, 128 м2, Кривоарбатский переулок, 13с2, м. Смоленская

адрес Москва, Кривоарбатский переулок, 13с2

Особняк/здание
Офис

488 000 RUB | в месяц

(за 1 м2 — 3 813 RUB)

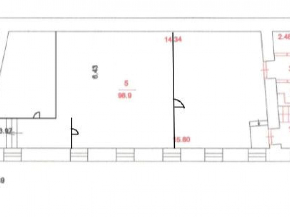
площадь 128.0 м2

QR код Qr код

Вашему вниманию предлагается в аренду помещение в особняке, площадью 128 квадратных метров, по адресу: г. Москва, ЦАО, Кривоарбатский переулок, 13 строение 2.
Ближайшие станции метро: Смоленская - 7 минут пешком. Рядом - удобный выезд на Садовое кольцо, Бульварное кольцо. Вторая линия домов.
Развитая инфраструктура: в шаговой доступности рестораны, кафе, кофейни, магазины, аптеки, отделения банков, банкоматы, гостиницы, остановки общественного транспорта.

Технические характеристики:
Общая площадь: 128 квадратных метров. 1 этаж.
Высота потолков: 2,8-3,2 м.
Планировка: open space, кабинеты.
Отделка: чистовая.
Телекоммуникации: интернет, wi-fi и телефонная линия.
Вентиляция: приточно-вытяжная.
Кондиционирование: местное.
Лифт: отсутствует.
Парковка: городская.

Коммерческие условия:
Ставка аренды: 40 000 рублей, за квадратный метр, в год;
Стоимость аренды в месяц: 488 000 рублей, с учётом эксплуатации, УСН 7%.
Коммунальные расходы оплачиваются по факту потребления.
Условия сделки обсуждаются на переговорах.

Технические характеристики

Тип здания: Особняк/здание,Офис

Общая площадь: 128  м2

Этаж: 1

Всего этажей: 4

Электрическая мощность: 30

Высота потолков: 3

Парковка: Есть

Коммерческие условия

Цена в месяц: 488 000 RUB

ФОРМА ВЛАДЕНИЯ: ООО

карта

Расположение

Адрес: Москва, Кривоарбатский переулок, 13с2

Округ: Центральный административный округ

Близость метро: Арбатская (Арбатско-Покровская),Смоленская (Арбатско-Покровская)

Транспортная доступность: Отличная

Окружение

Торговое окружение: Магазины, кафе

Адрес:

Москва, Кривоарбатский переулок, 13с2

Округ:

Центральный административный округ

Близость метро:

Арбатская (Арбатско-Покровская),Смоленская (Арбатско-Покровская)

Транспортная доступность:

Отличная

карта

Торговое окружение:

Магазины, кафе

Общая площадь:

128  м2

Этаж:

1

Всего этажей:

4

Тип:

Особняк/здание,Офис

Электрическая мощность:

30

Высота потолков:

3

Парковка:

Есть

ФОРМА ВЛАДЕНИЯ:

ООО

Цена в месяц:

488 000 RUB

Планировка

Александр Невский

Ваш брокер по работе с клиентами

Найдите лучшее место
для жизни, бизнеса, инвестиций

Оставьте свои контакты — с вами свяжется руководитель отдела для презентации нужного вам объекта

Похожие объекты