Id 154303

ЖК Режиссер, ул. Вильгельма Пика, д. 3А, корп. 1/150кв.м./Аренда торгового помещения

адрес ЖК Режиссер, ул. Вильгельма Пика, д. 3А, корп. 1

Многофункциональный
Торговая
Общепит

1 200 000 RUB | в месяц

(за 1 м2 — 8 000 RUB)

площадь 150.0 м2

QR код Qr код

Предлагается в аренду торговое помещение в ЖК "Режиссер". Ростокино, ул. Вильгельма Пика, д. 3А, корп. 1 .

ЖК бизнес-класса "Режиссер" расположен в престижном районе и представляет собой современный комплекс из 3 домов, построенных на территории 1,7 га. Комплекс уже введен в эксплуатацию и активно заселяется, в нем насчитывается более 1000 квартир, а общее количество жителей превысит 1700 человек.

Подходит для различных видов деятельности: торговля, медицинский центр, частный детский сад, магазин, шоу-рум и др.

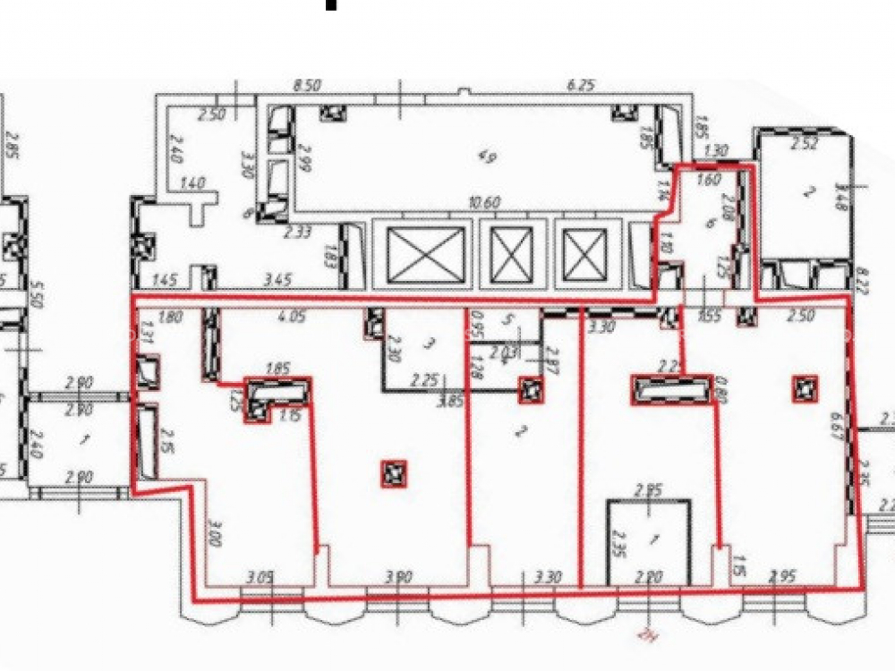
Технические характеристики: Общая площадь: 150 кв.м (делится на блоки от 20м) • Высота потолков: 5.5 м. - Входная группа: 5 независимых входа с главного фасада! Выделенная электрическая мощность – 70 кВт.

Коммерческие условия:
Арендная ставка – 1 200 000 рублей
Арендная ставка за кв.м. - 8 000 рублей
Прямой договор аренды

Технические характеристики

Тип здания: Многофункциональный,Торговая,Общепит

Общая площадь: 150  м2

Этаж: 1

Всего этажей: 20

Электрическая мощность: 70кВт

Высота потолков: 5

Парковка: на улице

Коммерческие условия

Цена в месяц: 1 200 000 RUB

ФОРМА ВЛАДЕНИЯ: собственность

карта

Расположение

Адрес: ЖК Режиссер, ул. Вильгельма Пика, д. 3А, корп. 1

Округ: Северо-Восточный административный округ

Близость метро: Алексеевская,Ботанический сад (Калужско-Рижская),ВДНХ

Транспортная доступность: метро

Окружение

Торговое окружение: развитое

Адрес:

ЖК Режиссер, ул. Вильгельма Пика, д. 3А, корп. 1

Округ:

Северо-Восточный административный округ

Близость метро:

Алексеевская,Ботанический сад (Калужско-Рижская),ВДНХ

Транспортная доступность:

метро

карта

Торговое окружение:

развитое

Общая площадь:

150  м2

Этаж:

1

Всего этажей:

20

Тип:

Многофункциональный,Торговая,Общепит

Электрическая мощность:

70кВт

Высота потолков:

5

Парковка:

на улице

ФОРМА ВЛАДЕНИЯ:

собственность

Цена в месяц:

1 200 000 RUB

Гуда Алексей

Ваш брокер по работе с клиентами

Найдите лучшее место
для жизни, бизнеса, инвестиций

Оставьте свои контакты — с вами свяжется руководитель отдела для презентации нужного вам объекта

Похожие объекты