Id 155277

Москва, 6-й квартал, 12к4, ЖК Остров - 165 м² / Аренда помещения свободного назначения

адрес Москва, 6-й квартал, 12к4

С отдельным входом
Торговая
Жилой комплекс (мфк)

800 000 RUB | в месяц

(за 1 м2 — 4 848 RUB)

площадь 165.0 м2

QR код Qr код

Предлагается в аренду помещение свободного назначения на 1-м этаже жилого дома, в ЖК "Остров-2", квартал 6, по адресу: город Москва, СЗАО, район Хорошёво-Мневники, улица Нижние Мневники 12к4. Первая линия. Напротив станция метро "Терехово" - 50 метров, прямая видимость. Рядом торговая галерея Остров. Ввод эксплуатации и выдача ключей - сентябрь 2025 года.

Технические характеристики:
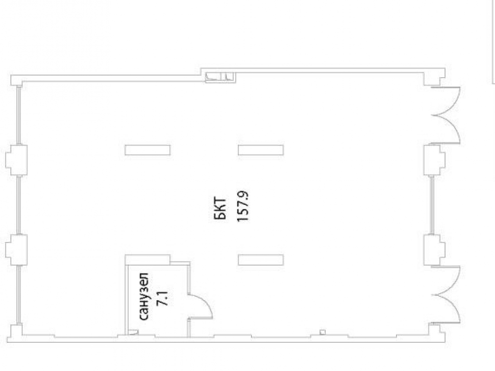
1-й этаж жилого дома. Общая площадь - 165 м². 2 отдельных входа с улицы. Витринное остекление на 1-ю линию и во двор. Высота потолков - 7.85 м. Все центральные коммуникации. 2-х уровневый подземный паркинг на 867 мм. Состояние помещения - в бетон. Эл. мощность 37 кВт.


Коммерческие условия:
Ставка аренды в месяц - 800 000 руб.
Ставка аренды за м² в месяц - 4 848 руб.
Ставка аренды за м² в год - 58 182 руб.
Ставка со второго года - 1 000 000 руб.
Коммунальные платежи оплачиваются отдельно.
Форма владения - ИП. УСН.

Технические характеристики

Тип здания: С отдельным входом,Торговая,Жилой комплекс (мфк)

Общая площадь: 165  м2

Этаж: 1

Всего этажей: 22

Электрическая мощность: 37 кВт.

Высота потолков: 7.85 м.

Парковка: 2-х уровневый подземный паркинг на 867 мм.

Коммерческие условия

Цена в месяц: 800 000 RUB

ФОРМА ВЛАДЕНИЯ: ИП на УСН

карта

Расположение

Адрес: Москва, 6-й квартал, 12к4

Округ: Северо-Западный административный округ

Близость метро: Терехово

Транспортная доступность: 50 метров от станции метро

Окружение

Торговое окружение: -

Адрес:

Москва, 6-й квартал, 12к4

Округ:

Северо-Западный административный округ

Близость метро:

Терехово

Транспортная доступность:

50 метров от станции метро

карта

Торговое окружение:

-

Общая площадь:

165  м2

Этаж:

1

Всего этажей:

22

Тип:

С отдельным входом,Торговая,Жилой комплекс (мфк)

Электрическая мощность:

37 кВт.

Высота потолков:

7.85 м.

Парковка:

2-х уровневый подземный паркинг на 867 мм.

ФОРМА ВЛАДЕНИЯ:

ИП на УСН

Цена в месяц:

800 000 RUB

Планировка

Лев

Ваш брокер по работе с клиентами

Найдите лучшее место
для жизни, бизнеса, инвестиций

Оставьте свои контакты — с вами свяжется руководитель отдела для презентации нужного вам объекта

Похожие объекты