Id 155882

г. Москва, ул. Шеногина, вл 2/11 / Аренда / Помещение свободного назначения / 136 кв.м.

адрес Москва, улица Шеногина, вл2/11

Бизнес центр
С отдельным входом
Торговая
Новостройка

1 267 000 RUB | в месяц

(за 1 м2 — 9 309 RUB)

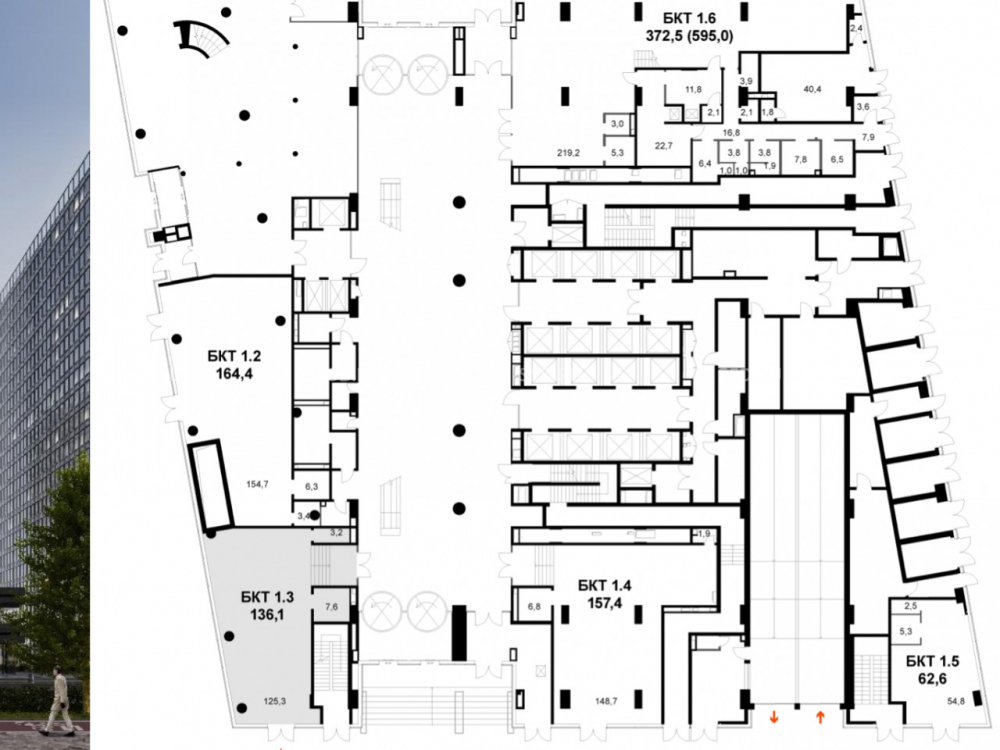
площадь 136.1 м2

QR код Qr код

Предлагается в аренду нежилое помещение свободного назначения в CЗАО по адресу: г. Москва, ул. Шеногина, вл 2/11, площадью 136.1 м2. Станция метро и МЦК «Шелепиха» находятся в 15-минутной пешей доступности, а с 2026 г. до метро можно будет дойти за 1 минуту, благодаря новой станции «Звенигородская».

ЖК Sydney City — новый проект премиум-класса на Шелепихинской набережной. Первый жилой квартал в концепции well-being в Москве. На территории в 19,3 га ведется строительство 23 корпусов, переменной этажности 8–44 этажей. Квартал обладает развитой собственной социальной и коммерческой инфраструктурой, начиная от престижной школы и д/с и заканчивая фудхоллом и развлекательным центром. Общие сроки проекта 2020–2030 гг.

Технические характеристики:
Отдельный вход с фасада и отдельный вход из бизнес-центра. Открытая планировка • потолки 4,65 м. • электроэнергия 15 кВт (есть техническая возможность для увеличения)

Коммерческие условия:
• стоимость аренды в месяц: 1 267 000 рублей, включая НДС.
• стоимость аренды за м2 : 9 300 рублей.

Технические характеристики

Тип здания: Бизнес центр,С отдельным входом,Торговая,Новостройка

Общая площадь: 136.1  м2

Этаж: 1

Всего этажей: 24

Электрическая мощность: -

Высота потолков: -

Парковка: -

Коммерческие условия

Цена в месяц: 1 267 000 RUB

ФОРМА ВЛАДЕНИЯ: -

карта

Расположение

Адрес: Москва, улица Шеногина, вл2/11

Округ: Северо-Западный административный округ

Близость метро: Хорошевская,Шелепиха

Транспортная доступность: -

Окружение

Торговое окружение: -

Адрес:

Москва, улица Шеногина, вл2/11

Округ:

Северо-Западный административный округ

Близость метро:

Хорошевская,Шелепиха

Транспортная доступность:

-

карта

Торговое окружение:

-

Общая площадь:

136.1  м2

Этаж:

1

Всего этажей:

24

Тип:

Бизнес центр,С отдельным входом,Торговая,Новостройка

Электрическая мощность:

-

Высота потолков:

-

Парковка:

-

ФОРМА ВЛАДЕНИЯ:

-

Цена в месяц:

1 267 000 RUB

Планировка

Павел

Ваш брокер по работе с клиентами

Найдите лучшее место
для жизни, бизнеса, инвестиций

Оставьте свои контакты — с вами свяжется руководитель отдела для презентации нужного вам объекта

Похожие объекты