Id 156472

Москва, Дмитровское шоссе, д.81 - 1182,3 кв.м. - Аренда ПСН

адрес Москва, Дмитровское шоссе, 81

Апартаменты
Бизнес центр
Многофункциональный
Особняк/здание
С отдельным входом
Торговая
Проект
Офис
Редевелопмент
Медицина
Отель/Хостел
Склад

2 000 000 RUB | в месяц

(за 1 м2 — 1 692 RUB)

площадь 1 182.3 м2

QR код Qr код

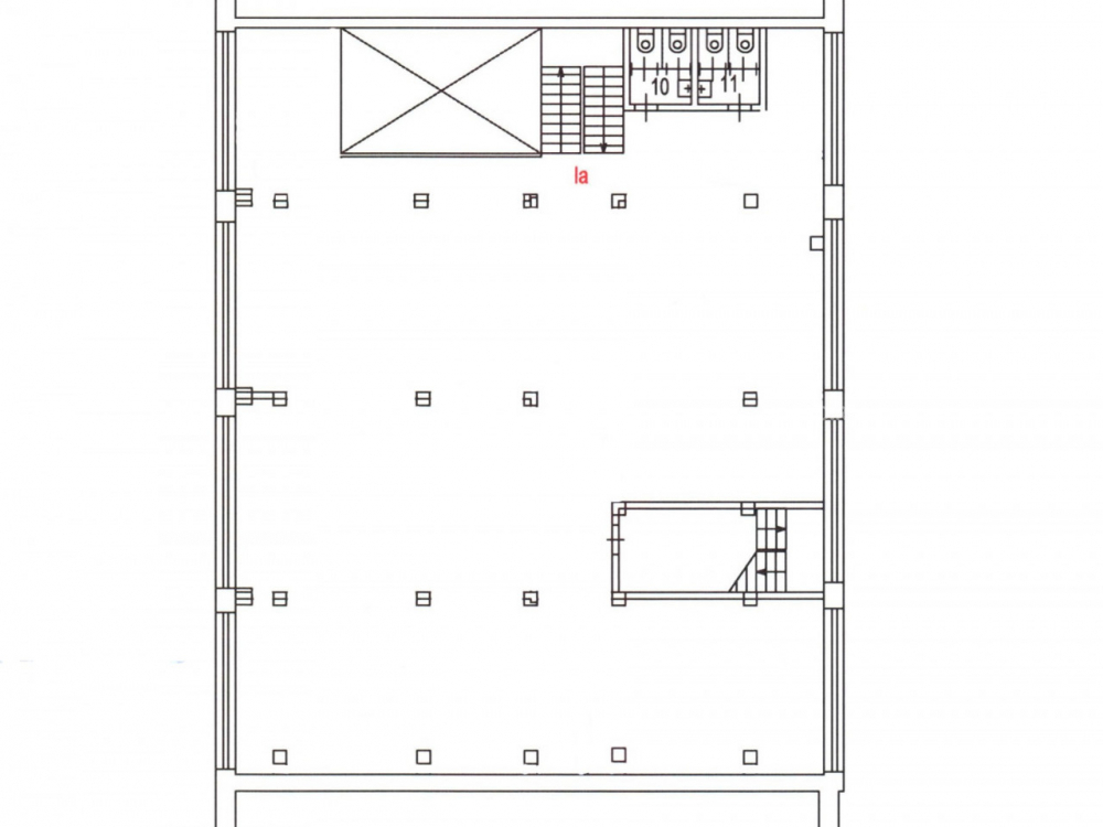
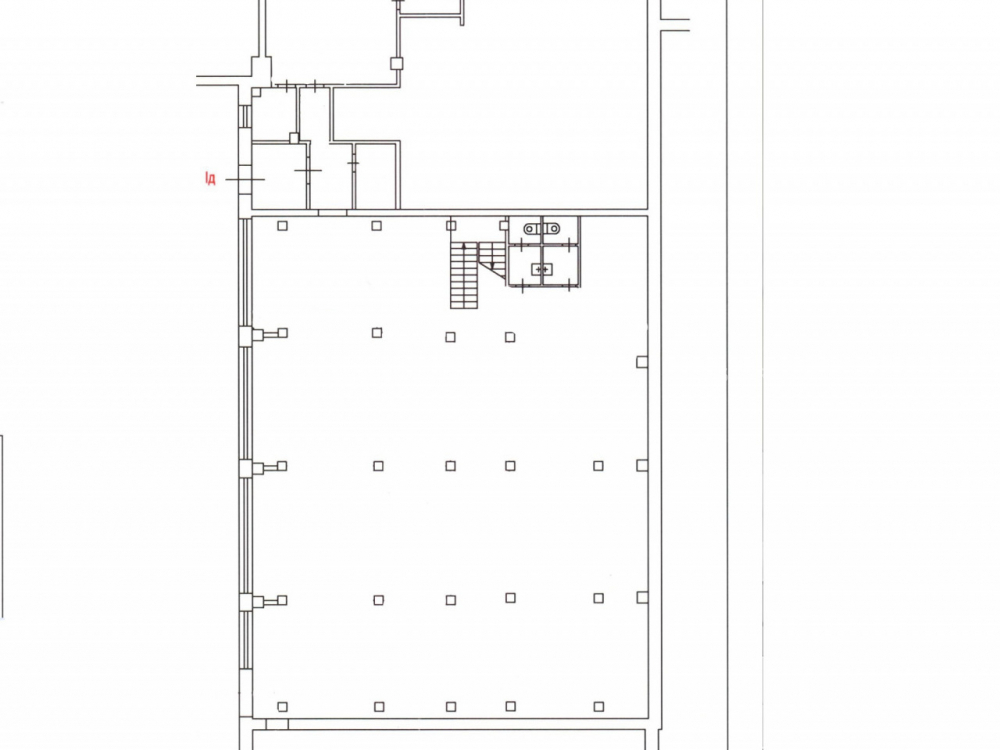
Предлагается в аренду помещение свободного назначения (ПСН) общей площадью 1182,3 кв.м. в БЦ "Ритм" по адресу: Москва, САО, Дмитровское шоссе, д. 81. Удобное расположение бизнес-центра: 5 минут от станции метро "Селигерская", 7 минут от МЦК "Окружная" на машине, МКАД - 10 минут на машине, ТТК - 15 минут на машине. В непосредственной близости расположены рестораны, отделение банка, фитнес-клуб, и другие объекты инфраструктуры, создающие комфортную среду для вашего бизнеса.

Технические характеристики:
Площадь - 1182,3 кв.м. Вход и въезд на территорию свободный. У помещения два входа. Помещение многоуровневое: 1 этаж - 447,2 кв. м., 2 этаж - 363,6 кв. м., 3 этаж - 371,5 кв. м. с открытой планировкой. Высота потолков колеблется от 3,2 до 4,5 метров, на третьем этаже сводчатый потолок. Помещение без ремонта, все коммуникации заведены, на 1 этаже 3 санузла, на 2 и 3 - 4 санузла.
Электрическая мощность - 240 кВт.
Год реконструкции здания - 2005. Перекрытия ж/б. Центральные городские коммуникации: ХВС, ГВС, отопление. Вентиляция и отопление с тепловой нагрузкой 0,09544 Гкал/ч.

Коммерческие условия:
Цена аренды в мес.: 2 000 000 руб.
Ставка аренды 1 кв.м. в мес. 1 691 руб.
Ставка аренды 1 кв.м. в год.: 20 292 руб.
Коммуналка и эксплуатация на арендаторе.
Собственник: юр.лицо

Технические характеристики

Тип здания: Апартаменты,Бизнес центр,Многофункциональный,Особняк/здание,С отдельным входом,Торговая,Проект,Офис,Редевелопмент,Медицина,Отель/Хостел,Склад

Общая площадь: 1182.3  м2

Этаж: 1

Всего этажей: 3

Электрическая мощность: 250

Высота потолков: 4,5 м.

Парковка: бесплатная

Коммерческие условия

Цена в месяц: 2 000 000 RUB

ФОРМА ВЛАДЕНИЯ: ООО

карта

Расположение

Адрес: Москва, Дмитровское шоссе, 81

Округ: Северный административный округ

Близость метро: Верхние Лихоборы,Селигерская

Транспортная доступность: хорошая

Окружение

Торговое окружение: рестораны, отделение банка, фитнес-клуб

Адрес:

Москва, Дмитровское шоссе, 81

Округ:

Северный административный округ

Близость метро:

Верхние Лихоборы,Селигерская

Транспортная доступность:

хорошая

карта

Торговое окружение:

рестораны, отделение банка, фитнес-клуб

Общая площадь:

1182.3  м2

Этаж:

1

Всего этажей:

3

Тип:

Апартаменты,Бизнес центр,Многофункциональный,Особняк/здание,С отдельным входом,Торговая,Проект,Офис,Редевелопмент,Медицина,Отель/Хостел,Склад

Электрическая мощность:

250

Высота потолков:

4,5 м.

Парковка:

бесплатная

ФОРМА ВЛАДЕНИЯ:

ООО

Цена в месяц:

2 000 000 RUB

Планировка

Петр Соловьев

Ваш брокер по работе с клиентами

Найдите лучшее место
для жизни, бизнеса, инвестиций

Оставьте свои контакты — с вами свяжется руководитель отдела для презентации нужного вам объекта

Похожие объекты