Id 157615

ул. Александры Монаховой, 85к1 - 69 кв. м. - Аренда / Торговое помещение

адрес посёлок Коммунарка, улица Александры Монаховой, 85к1

С отдельным входом
Торговая
Жилой комплекс (мфк)

320 000 RUB | в месяц

(за 1 м2 — 4 638 RUB)

площадь 69.0 м2

QR код Qr код

Аренда торгового помещения в ЖК «Бунинские Луга» ,НАПРОТИВ МЕТРО ПОТАПОВО, по адресу: г. Москва, п. Коммунарка, ул. Александры Монаховой, 85к1. Ближайшая станция метро «Потапово» находится в 3 минутах ходьбы. В 2027 году в 10 минутах езды на автомобиле откроется станция «Сосенки». Интенсивный автомобильный и пешеходный трафик. В непосредственной близости находятся остановки общественного транспорта. Помещение расположено в современном, густонаселенном и активно развивающемся районе «Бунинские луга» (7 км от МКАД). Район обладает развитой инфраструктурой: работают две школы, четыре детских сада, детская поликлиника; ведется строительство еще одной школы и двух детских садов.

Технические характеристики:
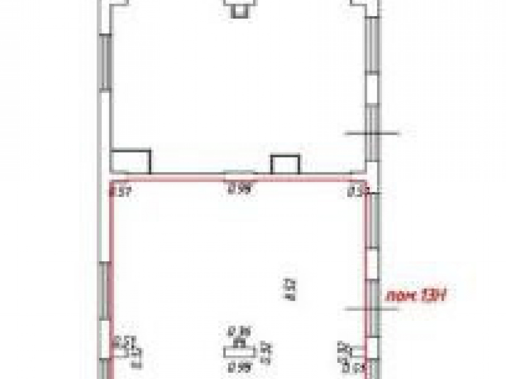
Общая площадь: 69 кв. м. (помещение 13Н), 1 этаж. Отдельный вход. Витринное остекление. Высота потолков: 3,5 м. Электрическая мощность: 200 Вт/кв. м. Большая парковка.

Идеально для: розничного магазина, кофейни, салона красоты, аптеки, пункта выдачи заказов и другого бизнеса.

Арендная ставка: 320 000 рублей в месяц.
Ставка за 1 кв. м. в месяц: 4 638 рублей.
Ставка за 1 кв. м. в год: 55 656 рублей.
Тип аренды: Прямая, долгосрочная.
Коммунальные услуги: Оплачиваются отдельно.
Обеспечительный платеж: 1 месяц аренды.
Арендные каникулы: Предоставляются для ремонта.
Условия аренды обсуждаются с каждым арендатором индивидуально.

Технические характеристики

Тип здания: С отдельным входом,Торговая,Жилой комплекс (мфк)

Общая площадь: 69  м2

Этаж: 1

Всего этажей: 17

Электрическая мощность: 200 Вт/кв. м.

Высота потолков: 3,5 м

Парковка: наземная

Коммерческие условия

Цена в месяц: 320 000 RUB

ФОРМА ВЛАДЕНИЯ: по запросу

карта

Расположение

Адрес: посёлок Коммунарка, улица Александры Монаховой, 85к1

Близость метро: Потапово

Транспортная доступность: в пешей доступности

Окружение

Торговое окружение: развитое торговое окружение

Адрес:

посёлок Коммунарка, улица Александры Монаховой, 85к1

Округ:

Близость метро:

Потапово

Транспортная доступность:

в пешей доступности

карта

Торговое окружение:

развитое торговое окружение

Общая площадь:

69  м2

Этаж:

1

Всего этажей:

17

Тип:

С отдельным входом,Торговая,Жилой комплекс (мфк)

Электрическая мощность:

200 Вт/кв. м.

Высота потолков:

3,5 м

Парковка:

наземная

ФОРМА ВЛАДЕНИЯ:

по запросу

Цена в месяц:

320 000 RUB

Планировка

Виталий

Ваш брокер по работе с клиентами

Найдите лучшее место
для жизни, бизнеса, инвестиций

Оставьте свои контакты — с вами свяжется руководитель отдела для презентации нужного вам объекта

Похожие объекты