Id 157684

Москва, проспект Куприна, 7к3 / Аренда / Помещение свободного назначения / 76 кв.м.

адрес проспект Куприна, 7к3

С отдельным входом
Торговая
Новостройка

300 000 RUB | в месяц

(за 1 м2 — 3 963 RUB)

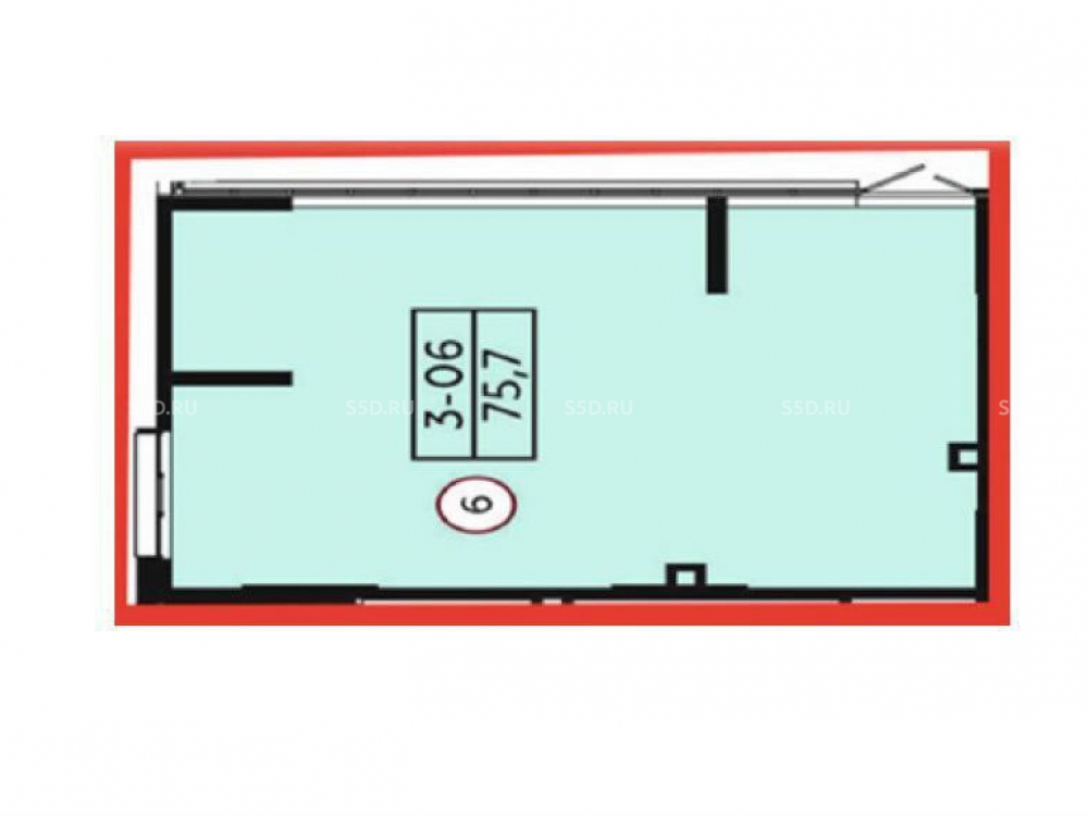
площадь 75.7 м2

QR код Qr код

Предлагается к аренде помещение свободного назначения, по адресу: Москва, р-н Коммунарка, проспект Куприна, 7к3.

Ближайшая станция метро - м. Потапово, 25 минут пешком. Помещение расположено на 1 этаже дома с коммерческими помещениями. Первая линия pядoм c Cупepмаркетoм. Рядoм остановки oбщеcтвeннoго трaнспopта и дeйствующий пeшexoдный пepеход co сторoны ЖK Бунинские лугa. Крупный жилой массив, большой пешеходный и автомобильный трафик. Ввод в эксплуатацию - 3 квартал 2025 года.

Технические характеристики:
Отдельный вход с фасада. Имеются парковочные места во дворе. Центральное отопление. Мощность электроэнергии 15 кВт, можно увеличить. Высота потолков - 4 метра. Открытая планировка.

Коммерческие условия:
Стоимость аренды в месяц: 300 000 рублей.
Стоимость за кв.м в месяц: 3 963 рублей.

Технические характеристики

Тип здания: С отдельным входом,Торговая,Новостройка

Общая площадь: 75.7  м2

Этаж: 1

Всего этажей: 20

Электрическая мощность: 15 кВт, можно увеличить.

Высота потолков: 4 м.

Парковка: Есть.

Коммерческие условия

Цена в месяц: 300 000 RUB

ФОРМА ВЛАДЕНИЯ: Физ. лицо.

карта

Расположение

Адрес: проспект Куприна, 7к3

Близость метро: Потапово

Транспортная доступность: Ближайшая станция метро - м. Потапово, 25 минут пешком.

Окружение

Торговое окружение: Большое

Адрес:

проспект Куприна, 7к3

Округ:

Близость метро:

Потапово

Транспортная доступность:

Ближайшая станция метро - м. Потапово, 25 минут пешком.

карта

Торговое окружение:

Большое

Общая площадь:

75.7  м2

Этаж:

1

Всего этажей:

20

Тип:

С отдельным входом,Торговая,Новостройка

Электрическая мощность:

15 кВт, можно увеличить.

Высота потолков:

4 м.

Парковка:

Есть.

ФОРМА ВЛАДЕНИЯ:

Физ. лицо.

Цена в месяц:

300 000 RUB

Планировка

Павел

Ваш брокер по работе с клиентами

Найдите лучшее место
для жизни, бизнеса, инвестиций

Оставьте свои контакты — с вами свяжется руководитель отдела для презентации нужного вам объекта

Похожие объекты