Id 157894

Дмитровское шоссе, дом 71А - 120 кв. м. - Аренда торгового помещения / ПСН / Общепит

адрес Москва, Дмитровское шоссе, 71А

С отдельным входом
Торговая
Общепит

370 000 RUB | в месяц

(за 1 м2 — 3 083 RUB)

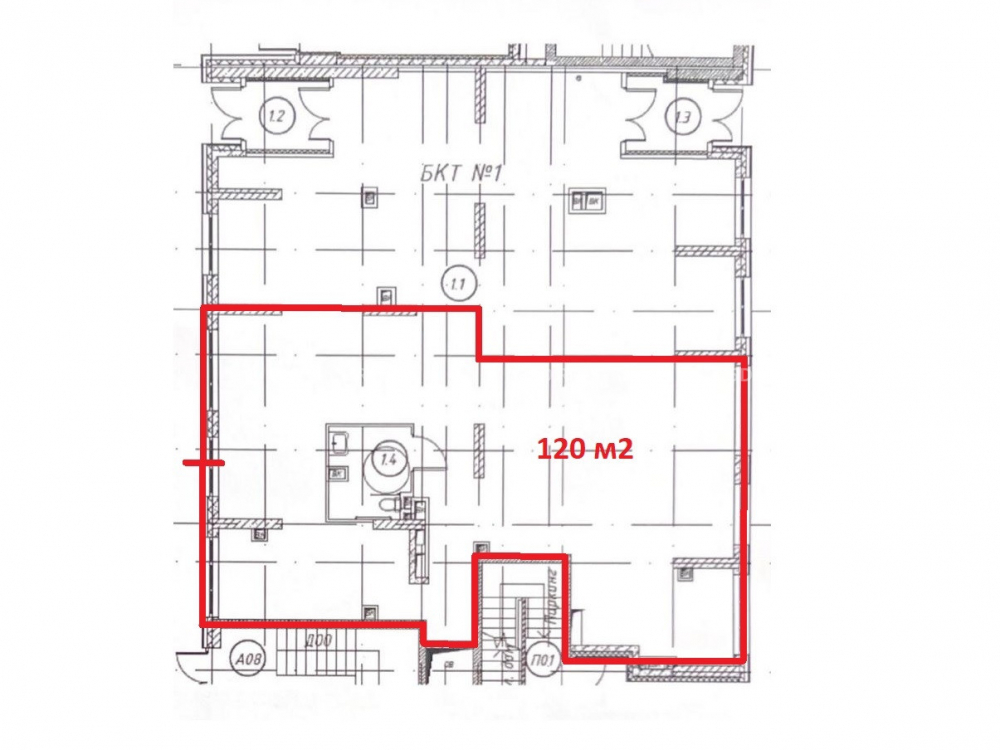
площадь 120.0 м2

QR код Qr код

Аренда торгового помещения в ЖК комфорт + класса "Талисман на Дмитровском". Адрес: Дмитровское шоссе, дом 71А.
Ближайшая станция метро: Верхние Лихоборы - 3 мин. пешком. Окружная - 17 мин.
Первая линия домов. Интенсивный пешеходный трафик к и от метро. Высокая плотность жилой застройки. Рядом БЦ, ЖК Комфорт и Бизнес класса.

Торговое окружение насыщенное. В доме открыта Пятерочка, Винлаб, кофейни, спортзал, салоны красоты, ПВЗ. Поблизости Дикси, Винлаб, аптеки и другие сетевые арендаторы.

Технические характеристики:
Помещение площадью 120 кв.м. на 1-м этаже жилого дома. Планировка функциональная, предусматривает торговый зал, подсобные и административные помещения, санузлы. Высота потолков 4 м. Витринные окна по фасаду. Отдельный вход с улицы. Место для размещения вывески. Парковка перед фасадом. Электрическая мощность - 30 кВт. Возможность размещения технологической вытяжки с системой филтрации.
Помещение за выездом арендатора. Доступен соседний блок, на выбор, примерно той же площади.

Коммерческие условия:
Стоимость аренды в месяц - 370 000 рублей
Ставка аренды за 1 м2 в месяц - 3 100 рубля.
Каникулы и льготный период обсуждаются.
УСН

Технические характеристики

Тип здания: С отдельным входом,Торговая,Общепит

Общая площадь: 120  м2

Этаж: 1

Всего этажей: 12

Электрическая мощность: 30 кВт

Высота потолков: 4 м

Парковка: перед фасадом

Коммерческие условия

Цена в месяц: 370 000 RUB

ФОРМА ВЛАДЕНИЯ: ФЛ

карта

Расположение

Адрес: Москва, Дмитровское шоссе, 71А

Округ: Северный административный округ

Близость метро: Верхние Лихоборы

Транспортная доступность: Верхние Лихоборы - 3 мин. пешком. Окружная - 17 мин.

Окружение

Торговое окружение: В доме открыта Пятерочка, Винлаб, кофейни, спортзал, салоны красоты, ПВЗ. Поблизости Дикси, аптеки и другие сетевые арендаторы.

Адрес:

Москва, Дмитровское шоссе, 71А

Округ:

Северный административный округ

Близость метро:

Верхние Лихоборы

Транспортная доступность:

Верхние Лихоборы - 3 мин. пешком. Окружная - 17 мин.

карта

Торговое окружение:

В доме открыта Пятерочка, Винлаб, кофейни, спортзал, салоны красоты, ПВЗ. Поблизости Дикси, аптеки и другие сетевые арендаторы.

Общая площадь:

120  м2

Этаж:

1

Всего этажей:

12

Тип:

С отдельным входом,Торговая,Общепит

Электрическая мощность:

30 кВт

Высота потолков:

4 м

Парковка:

перед фасадом

ФОРМА ВЛАДЕНИЯ:

ФЛ

Цена в месяц:

370 000 RUB

Планировка

Николай

Ваш брокер по работе с клиентами

Найдите лучшее место
для жизни, бизнеса, инвестиций

Оставьте свои контакты — с вами свяжется руководитель отдела для презентации нужного вам объекта

Похожие объекты