Id 158229

МО, Мытищи городской округ, ЖК Датский квартал, ул. Полковника Романова, 11 - 203.8 м2 / Аренда ПСН под медицину

адрес Датский квартал жилой комплекс, ул. Полковника Романова, 11

С отдельным входом
Торговая

427 980 RUB | в месяц

(за 1 м2 — 2 100 RUB)

площадь 203.8 м2

QR код Qr код

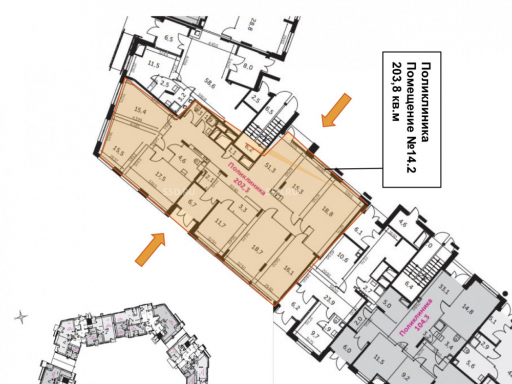
Аренда помещения свободного назначения на 1-м этаже жилого дома, по адресу: Московская область, Мытищи городской округ, Нагорное поселок, ЖК комфорт + класса Датский квартал, ул. Полковника Романова, 11. Комплекс находится на северо-востоке Московской области, в 1 км от МКАД и 10 мин. от м. Медведково. Общее количеством квартир 4 400 шт. и населением более 8 000 человек. ЖК сдан, полностью заселен, дом введен в эксплуатацию в 4 кв. 2023 г.

Технические характеристики: Социальное назначение: под медицину!!
Общая площадь помещения 203.8 м2. 1-й этаж жилого дома. 2 отдельных входа. Витринное остекление. Высота потолков 5.4 м. Эл. мощность 40.7 кВт. Все центральные коммуникации. Состояние помещения - shell&core. Парковка перед фасадом. Под помещением - тех. этаж и кладовые.


Коммерческие условия:
Ставка аренды в месяц - 427 980 руб.
Ставка аренды за м2 в год - 2 100 руб.
Ставка аренды за м2 в год - 25 200 руб.
Предоставляются арендные каникулы.

Технические характеристики

Тип здания: С отдельным входом,Торговая

Общая площадь: 203.8  м2

Этаж: 1

Всего этажей: 9

Электрическая мощность: 40.7 кВт.

Высота потолков: 5.4 м.

Парковка: Перед фасадом.

Коммерческие условия

Цена в месяц: 427 980 RUB

ФОРМА ВЛАДЕНИЯ: -

карта

Расположение

Адрес: Датский квартал жилой комплекс, ул. Полковника Романова, 11

Близость метро: Медведково

Транспортная доступность: Осташковское шоссе 4 км от МКАД. Алтуфьевское шоссе 5 км от МКАД

Окружение

Торговое окружение: -

Адрес:

Датский квартал жилой комплекс, ул. Полковника Романова, 11

Округ:

Близость метро:

Медведково

Транспортная доступность:

Осташковское шоссе 4 км от МКАД. Алтуфьевское шоссе 5 км от МКАД

карта

Торговое окружение:

-

Общая площадь:

203.8  м2

Этаж:

1

Всего этажей:

9

Тип:

С отдельным входом,Торговая

Электрическая мощность:

40.7 кВт.

Высота потолков:

5.4 м.

Парковка:

Перед фасадом.

ФОРМА ВЛАДЕНИЯ:

-

Цена в месяц:

427 980 RUB

Планировка

Лев

Ваш брокер по работе с клиентами

Найдите лучшее место
для жизни, бизнеса, инвестиций

Оставьте свои контакты — с вами свяжется руководитель отдела для презентации нужного вам объекта

Похожие объекты