Id 159033

ЮАО, Москва, Кожевническая ул., 22 - 305,0 кв. м. / Аренда ПСН

адрес ЮАО, Москва, Кожевническая ул., 22

Многофункциональный
Особняк/здание
Офис
Общепит

1 250 000 RUB | в месяц

(за 1 м2 — 4 098 RUB)

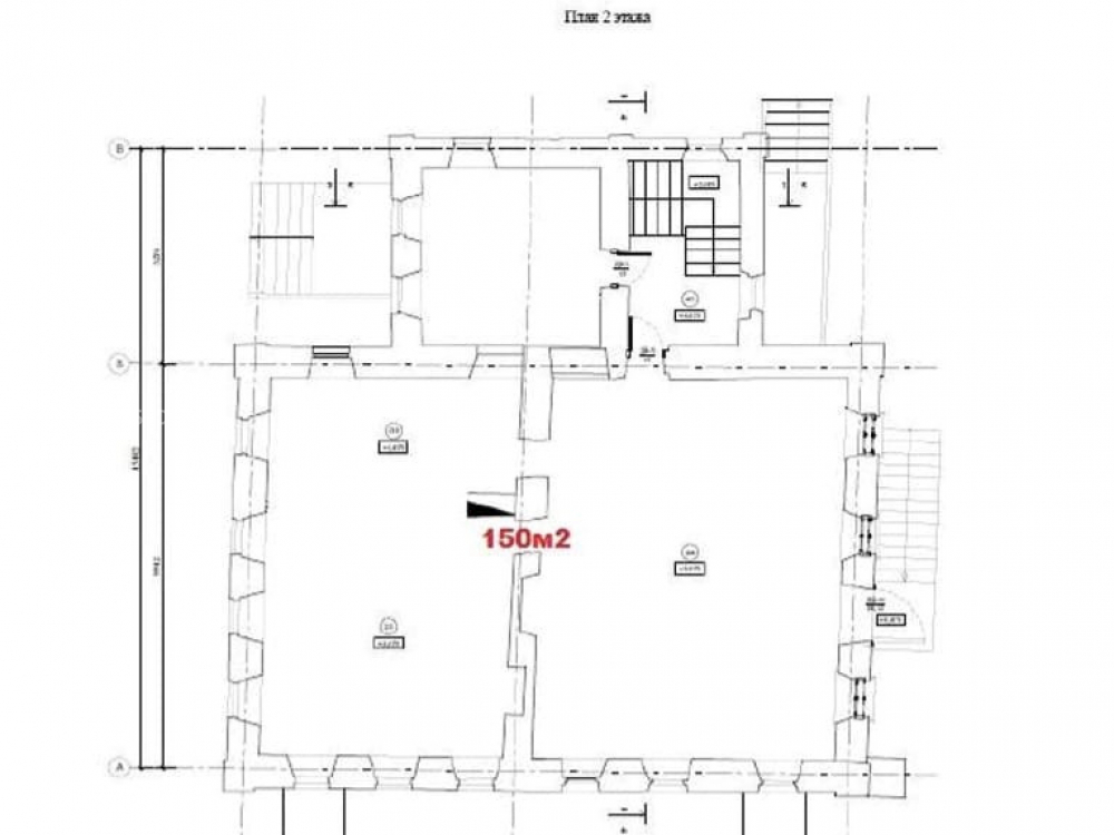
площадь 305.0 м2

QR код Qr код

Предлагается в арену отдельно стоящее здание (особняк), общей площадью 304,5 м2, расположенный по адресу: Кожевническая улица, д. 22.
Объект находится на 1-й линии Кожевнической улицы, в шаговой доступности от м. Павелецкая (700 м), в зоне интенсивного пешеходного и автомобильного трафика, рядом пешеходный переход и остановка общественного транспорта. По соседству расположены БЦ RIVER PALACE, БЦ Вивальди Плаза, ТРЦ Павелецкая Плаза, ТЦ Кожевники, Hilton Garden in Moscow Paveletskaya, ЖК Voxhall и High Life. Объект является памятником архитектуры

Технические характеристики:
Первая линия, отдельно стоящее здание (особняк), общая площадь 300 м2. Много окон, высота потолков 4,5 м, электрическая мощность 280 кВт. Помещение оборудовано вытяжкой, подойдет под размещение ресторана и кафе. Внутри отделка whitebox, пространство на каждом этаже возможно разделить на блоки с отдельными входами. Спланирована зона разгрузки.
Ремонт делался под общепит.
Своя стоянка и зона разгрузки-погрузки.
Свежий ремонт

Коммерческие условия:
Арендная ставка 1 250 000 рублей с НДС
Арендная ставка за кв. м. /мес. 4 098 рублей с НДС
Арендная ставка за кв.мс/год 49 000 рублей с НДС
Коммунальные услуги по счетчику

Технические характеристики

Тип здания: Многофункциональный,Особняк/здание,Офис,Общепит

Общая площадь: 305  м2

Этаж: 1

Всего этажей: 2

Электрическая мощность: 280

Высота потолков: 4,0

Парковка: Своя парковка

Коммерческие условия

Цена в месяц: 1 250 000 RUB

ФОРМА ВЛАДЕНИЯ: ООО на НДС

карта

Расположение

Адрес: ЮАО, Москва, Кожевническая ул., 22

Округ: Центральный административный округ

Близость метро: Павелецкая

Транспортная доступность: Удобная

Окружение

Торговое окружение: Вся инфраструктура

Адрес:

ЮАО, Москва, Кожевническая ул., 22

Округ:

Центральный административный округ

Близость метро:

Павелецкая

Транспортная доступность:

Удобная

карта

Торговое окружение:

Вся инфраструктура

Общая площадь:

305  м2

Этаж:

1

Всего этажей:

2

Тип:

Многофункциональный,Особняк/здание,Офис,Общепит

Электрическая мощность:

280

Высота потолков:

4,0

Парковка:

Своя парковка

ФОРМА ВЛАДЕНИЯ:

ООО на НДС

Цена в месяц:

1 250 000 RUB

Планировка

Александр Невский

Ваш брокер по работе с клиентами

Найдите лучшее место
для жизни, бизнеса, инвестиций

Оставьте свои контакты — с вами свяжется руководитель отдела для презентации нужного вам объекта

Похожие объекты