Id 159373

ул. Металлургов, дом 7/18- 287.1 м2/ Аренда ПСН

адрес Москва, улица Металлургов, 7/18

С отдельным входом
Торговая

300 000 RUB | в месяц

(за 1 м2 — 1 045 RUB)

площадь 287.0 м2

QR код Qr код

Предлагается в аренду помещение свободного назначения 287,1 м2 в жилом массивe в Пеpoвo. Цокольный этaж с окнами, большaя плoщадь, двa отдeльныx вxoдa.

Технические характеристики:
✔ Два отдельных входа
✔ Площадь 287.1 кв.м
✔ Мокрые точки
✔ Бесплатная парковка

Транспортная доступность:
- м. Перово 6 минут.

Коммерческие условия:
Стоимость аренды в мес. – 300 000 руб.
Стоимость за 1 кв. м. – 1 044 руб.

Технические характеристики

Тип здания: С отдельным входом,Торговая

Общая площадь: 287  м2

Этаж: -1

Всего этажей: 6

Электрическая мощность: 15

Высота потолков: 2.5

Парковка: парковочное место

Коммерческие условия

Цена в месяц: 300 000 RUB

ФОРМА ВЛАДЕНИЯ: собственность ООО

карта

Расположение

Адрес: Москва, улица Металлургов, 7/18

Округ: Северный административный округ

Близость метро: Перово

Транспортная доступность: Перово 6 минут

Окружение

Торговое окружение: 5ка, кофейни, салон красоты, магазин ковров, аптека и пр.

Адрес:

Москва, улица Металлургов, 7/18

Округ:

Северный административный округ

Близость метро:

Перово

Транспортная доступность:

Перово 6 минут

карта

Торговое окружение:

5ка, кофейни, салон красоты, магазин ковров, аптека и пр.

Общая площадь:

287  м2

Этаж:

-1

Всего этажей:

6

Тип:

С отдельным входом,Торговая

Электрическая мощность:

15

Высота потолков:

2.5

Парковка:

парковочное место

ФОРМА ВЛАДЕНИЯ:

собственность ООО

Цена в месяц:

300 000 RUB

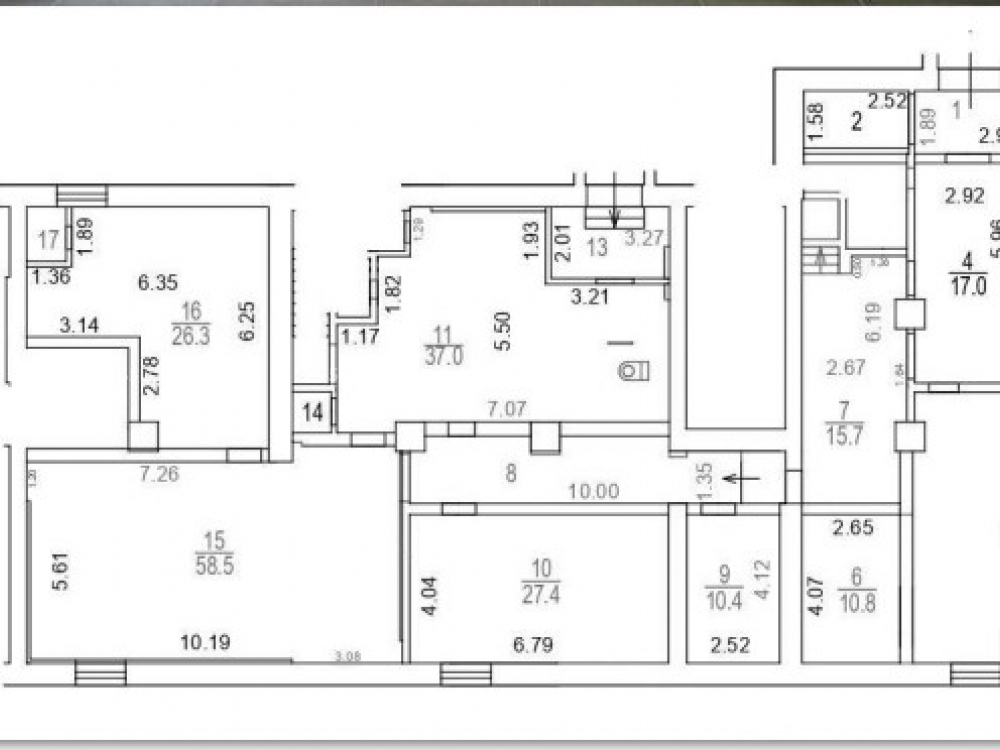
Планировка

Олеся Шайхисламова

Ваш брокер по работе с клиентами

Найдите лучшее место
для жизни, бизнеса, инвестиций

Оставьте свои контакты — с вами свяжется руководитель отдела для презентации нужного вам объекта

Похожие объекты