Id 159385

Автомобильный проезд, 4 - 107.7 кв. м. - Продажа / Помещение свободного назначения (ПСН)

адрес Москва, Автомобильный проезд, 4

Многофункциональный
С отдельным входом
Торговая
Жилой комплекс (мфк)
Новостройка

861 600 RUB | в месяц

(за 1 м2 — 8 000 RUB)

площадь 107.7 м2

QR код Qr код

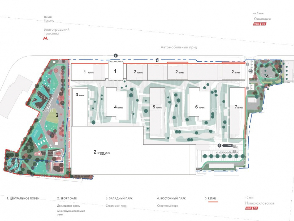
Аренда помещения свободного назначения в апарт – комплексе бизнес-класса N`ICE LOFT по адресу: г. Москва, Нижегородский район, проезд Автомобильный, 4.
Корпус сдан.

Торговое окружение:
Рядом расположены пиццерия Фигаро, магазин белья и купальников Би Ангел корсет, музыкальный магазин Allb Music, столовая Еда по-домашнему, магазин галантереи и аксессуаров Оптекс-Рус, магазин мебели, кафе, магазин чая Altai herb, супермаркет Перекресток, магазин продуктов Торговый Дом Лабаз.

Технические характеристики:
Общая площадь помещения – 107.7 кв. м., 1 этаж. Отдельный вход. Витринные окна. Высокие потолки с возможностью обустройства антресоли – 4,9 м. Электрическая мощность – 24,6 кВт. Центральные коммуникации (ГВС / ХВС, канализация, отопление). На подземном уровне ЖК есть паркинг на 140 мест с автомойкой и станциями для электрокаров.

Рекомендованный формат: спа-салон.

Коммерческие условия:
Стоимость аренды в месяц - 861 600 рублей
Стоимость аренды в месяц за 1 кв.м. - 8 000 рублей

Технические характеристики

Тип здания: Многофункциональный,С отдельным входом,Торговая,Жилой комплекс (мфк),Новостройка

Общая площадь: 107.7  м2

Этаж: 1

Всего этажей: 21

Электрическая мощность: 24,6 кВт

Высота потолков: 4,9 м

Парковка: есть

Коммерческие условия

Цена в месяц: 861 600 RUB

ФОРМА ВЛАДЕНИЯ: -

карта

Расположение

Адрес: Москва, Автомобильный проезд, 4

Округ: Юго-Восточный административный округ

Близость метро: Волгоградский проспект,Калитники

Транспортная доступность: Ближайшие станции метро: Волгоградский проспект – 10 мин. транспортом, ст. Калитники (линия D2) – 8 мин. ходьбы. За 10 минут на машине можно добраться до Садового Кольца, за 6 мин. на машине до Таганского парка.

Окружение

Торговое окружение: Рядом расположены пиццерия Фигаро, магазин белья и купальников Би Ангел корсет, музыкальный магазин Allb Music, столовая Еда по-домашнему, магазин галантереи и аксессуаров Оптекс-Рус, магазин мебели, кафе, магазин чая Altai herb, супермаркет Перекресток,

Адрес:

Москва, Автомобильный проезд, 4

Округ:

Юго-Восточный административный округ

Близость метро:

Волгоградский проспект,Калитники

Транспортная доступность:

Ближайшие станции метро: Волгоградский проспект – 10 мин. транспортом, ст. Калитники (линия D2) – 8 мин. ходьбы. За 10 минут на машине можно добраться до Садового Кольца, за 6 мин. на машине до Таганского парка.

карта

Торговое окружение:

Рядом расположены пиццерия Фигаро, магазин белья и купальников Би Ангел корсет, музыкальный магазин Allb Music, столовая Еда по-домашнему, магазин галантереи и аксессуаров Оптекс-Рус, магазин мебели, кафе, магазин чая Altai herb, супермаркет Перекресток,

Общая площадь:

107.7  м2

Этаж:

1

Всего этажей:

21

Тип:

Многофункциональный,С отдельным входом,Торговая,Жилой комплекс (мфк),Новостройка

Электрическая мощность:

24,6 кВт

Высота потолков:

4,9 м

Парковка:

есть

ФОРМА ВЛАДЕНИЯ:

-

Цена в месяц:

861 600 RUB

Планировка

Шорин Владимир

Ваш брокер по работе с клиентами

Найдите лучшее место
для жизни, бизнеса, инвестиций

Оставьте свои контакты — с вами свяжется руководитель отдела для презентации нужного вам объекта

Похожие объекты