Id 159739

АВТОЗАВОДСКАЯ 23БК2 - 90,7 КВ.М, АРЕНДА ТОРГОВОГО ПОМЕЩЕНИЯ

адрес Москва, Автозаводская улица, 23Бк2

С отдельным входом
Торговая
Новостройка

500 000 RUB | в месяц

(за 1 м2 — 5 513 RUB)

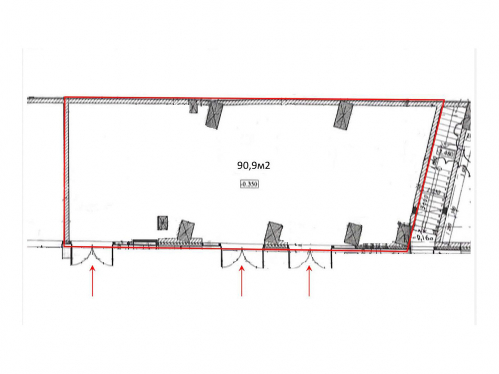
площадь 90.7 м2

QR код Qr код

Предлагается в аренду торговое помещение в ЖК "Парк Легенд" ул. Автозаводская 23Бк2.
Первая линия домов, удобная транспортная доступность, 200 метров до МЦК "ЗИЛ", 10 минут до станции метро «Автозаводская». 5 км до Садового кольца, прямой выезд на ТТК. В окружении крупный активно застраивающийся жилой массив, ЖК "Парк Легенд включает в себя 1511 квартир, в непосредственной близости парк Тюфелева Роща.
КБ и ВкусВилл торгуют очень хорошо, подробнее - по запросу

Технические характеристики:
Помещение на 1 этаже 24 этажного жилого многоквартирного дома. Общая площадь помещения 90,7 кв.м. Отдельный вход. Свободная планировка. Высокие потолки, парковка.
Эл. мощность 30 кВт. Размещение вывески на фасаде. Чистовая отделка за выездом арендатора.

Коммерческие условия:
Аренда в месяц 500 000 рублей.
Аренда за 1 кв.м 5 500 рублей.

Технические характеристики

Тип здания: С отдельным входом,Торговая,Новостройка

Общая площадь: 90.7  м2

Этаж: 1

Всего этажей: 24

Электрическая мощность: 30 кВт

Высота потолков: 4

Парковка: уличная, городская

Коммерческие условия

Цена в месяц: 500 000 RUB

ФОРМА ВЛАДЕНИЯ: ИП

карта

Расположение

Адрес: Москва, Автозаводская улица, 23Бк2

Округ: Южный административный округ

Близость метро: Автозаводская (Замоскворецкая),ЗИЛ

Транспортная доступность: 200 метров до МЦК

Окружение

Торговое окружение: ВкусВилл, КБ, Раменские продукты, кофейни и другое

Адрес:

Москва, Автозаводская улица, 23Бк2

Округ:

Южный административный округ

Близость метро:

Автозаводская (Замоскворецкая),ЗИЛ

Транспортная доступность:

200 метров до МЦК

карта

Торговое окружение:

ВкусВилл, КБ, Раменские продукты, кофейни и другое

Общая площадь:

90.7  м2

Этаж:

1

Всего этажей:

24

Тип:

С отдельным входом,Торговая,Новостройка

Электрическая мощность:

30 кВт

Высота потолков:

4

Парковка:

уличная, городская

ФОРМА ВЛАДЕНИЯ:

ИП

Цена в месяц:

500 000 RUB

Планировка

Шагитов Марат

Ваш брокер по работе с клиентами

Найдите лучшее место
для жизни, бизнеса, инвестиций

Оставьте свои контакты — с вами свяжется руководитель отдела для презентации нужного вам объекта

Похожие объекты