Id 160147

Люблинская 54/3 / 170 кв.м./ Аренда ПСН

адрес Москва, Люблинская улица, 54/3

Многофункциональный
С отдельным входом
Торговая
Медицина

204 000 RUB | за все

(за 1 м2 — 1 200 RUB)

площадь 170.0 м2

QR код Qr код

Аренда помещение свободного назначения по адресу: Москва, ул. Люблинская, д. 54/3. Объект хорошо просматривается с Люблинской улицы, вокруг густозаселенный жилой массив. Помещение в соседстве с Ozon и Wildberries. Вход с первой линии. Рядом остановка общественного транспорта «Краснодарская улица», в 15 мин пешком - метро «Люблино». Видео объекта по запросу.

Технические условия:
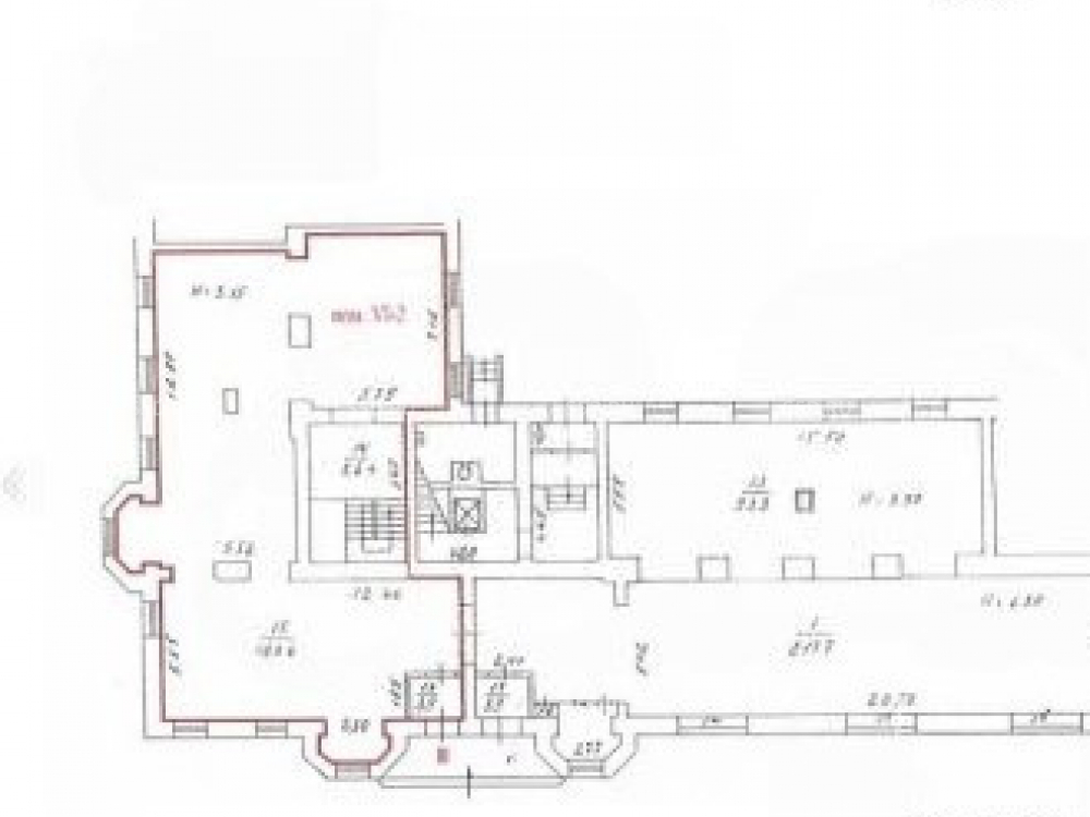
Помещение площадью 170 кв.м. на цокольном с окнами в жилом доме. Электричество - 30 кВт, высота потолков: 2,9 м.

Коммерческие условия:
Стоимость аренды - 204 000 руб./мес.
Стоимость квадратного метра - 1200руб./мес.

Технические характеристики

Тип здания: Многофункциональный,С отдельным входом,Торговая,Медицина

Общая площадь: 170  м2

Этаж: -1

Всего этажей: 5

Электрическая мощность: 30

Высота потолков: 2.9

Парковка: Перед помещением на 4 места

Коммерческие условия

Цена за все: 204 000 RUB

ФОРМА ВЛАДЕНИЯ: ИП УСН

карта

Расположение

Адрес: Москва, Люблинская улица, 54/3

Округ: Юго-Восточный административный округ

Близость метро: Люблино

Транспортная доступность: 15 мин. пешком до м. Люблино

Окружение

Торговое окружение: Озон, ВБ, КБ

Адрес:

Москва, Люблинская улица, 54/3

Округ:

Юго-Восточный административный округ

Близость метро:

Люблино

Транспортная доступность:

15 мин. пешком до м. Люблино

карта

Торговое окружение:

Озон, ВБ, КБ

Общая площадь:

170  м2

Этаж:

-1

Всего этажей:

5

Тип:

Многофункциональный,С отдельным входом,Торговая,Медицина

Электрическая мощность:

30

Высота потолков:

2.9

Парковка:

Перед помещением на 4 места

ФОРМА ВЛАДЕНИЯ:

ИП УСН

Цена за все:

204 000 RUB

Планировка

Данила Сычев

Ваш брокер по работе с клиентами

Найдите лучшее место
для жизни, бизнеса, инвестиций

Оставьте свои контакты — с вами свяжется руководитель отдела для презентации нужного вам объекта

Похожие объекты