Id 160313

г. Москва, ЖК Эра, 2 - 62 кв.м / Аренда ПСН

адрес Москва, ЖК Эра, 2

С отдельным входом
Торговая

500 000 RUB | в месяц

(за 1 м2 — 8 065 RUB)

площадь 62.0 м2

QR код Qr код

Аренда торгового помещения 62 м2 в новом ЖК "Era", корпус 2 (9 минут транспортом от метро Павелецкая). 1-я линия домов.
ERA — премиум-квартал в Даниловском районе, вблизи метро Павелецкая (7минут пешком). Квартал из шести разноэтажных высотных корпусов в блистательном стиле ар-деко. Проектом предусмотрена вся необходимая общественная и социальная инфраструктура: детские образовательные учреждения, а также коммерческие помещения.
В реализации сейчас первая очередь проекта, которая состоит из трех разновысотных корпусов от 27 до 33 этажей на 858 квартир. Для своих резидентов ERА открывает новый вид общественных пространств с собственной коммерческой инфраструктурой, расположенной по периметру корпусов и всего квартала. Здесь более двух тысяч квадратных метров для открытия бизнеса, в том числе два помещения с целевым назначением под детские образовательные учреждения.

Ввод в эксплуатацию: до 3 кв.2026г.

Характеристика объекта:
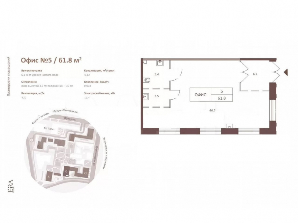
Помещение на 1 этаже 33х этажного жилого дома, общей площадью 62 кв.м., ! угловое помещение, 4 витринных окон, 1 входа с 1й линии. Эл. мощность 12.4 кВт, высота потолков: 6.1м2, отделка: Shell core, открытая планировка.

Коммерческие условия:
Ставка аренды в месяц: 500 000 рублей.
Ставка за м2: 8 064 рублей.
Предоставляются арендные каникулы.

Технические характеристики

Тип здания: С отдельным входом,Торговая

Общая площадь: 62  м2

Этаж: 1

Всего этажей: 33

Электрическая мощность: 12.4 кВт

Высота потолков: 6.1м

Парковка: большая наземная охраняемая парковка у помещения

Коммерческие условия

Цена в месяц: 500 000 RUB

ФОРМА ВЛАДЕНИЯ: ИП УСН

карта

Расположение

Адрес: Москва, ЖК Эра, 2

Округ: Центральный административный округ

Близость метро: Павелецкая

Транспортная доступность: до м. Павелецкая 7 минут пешком

Окружение

Торговое окружение: --

Адрес:

Москва, ЖК Эра, 2

Округ:

Центральный административный округ

Близость метро:

Павелецкая

Транспортная доступность:

до м. Павелецкая 7 минут пешком

карта

Торговое окружение:

--

Общая площадь:

62  м2

Этаж:

1

Всего этажей:

33

Тип:

С отдельным входом,Торговая

Электрическая мощность:

12.4 кВт

Высота потолков:

6.1м

Парковка:

большая наземная охраняемая парковка у помещения

ФОРМА ВЛАДЕНИЯ:

ИП УСН

Цена в месяц:

500 000 RUB

Планировка

Лев

Ваш брокер по работе с клиентами

Найдите лучшее место
для жизни, бизнеса, инвестиций

Оставьте свои контакты — с вами свяжется руководитель отдела для презентации нужного вам объекта

Похожие объекты