Id 160436

Аренда торгового помещения в ЖК Царицыно/ Помещение свободного назначения

адрес Москва, 6-я Радиальная улица, 7/1к1

С отдельным входом
Торговая
Общепит
Жилой комплекс (мфк)
Склад

350 000 RUB | в месяц

(за 1 м2 — 2 756 RUB)

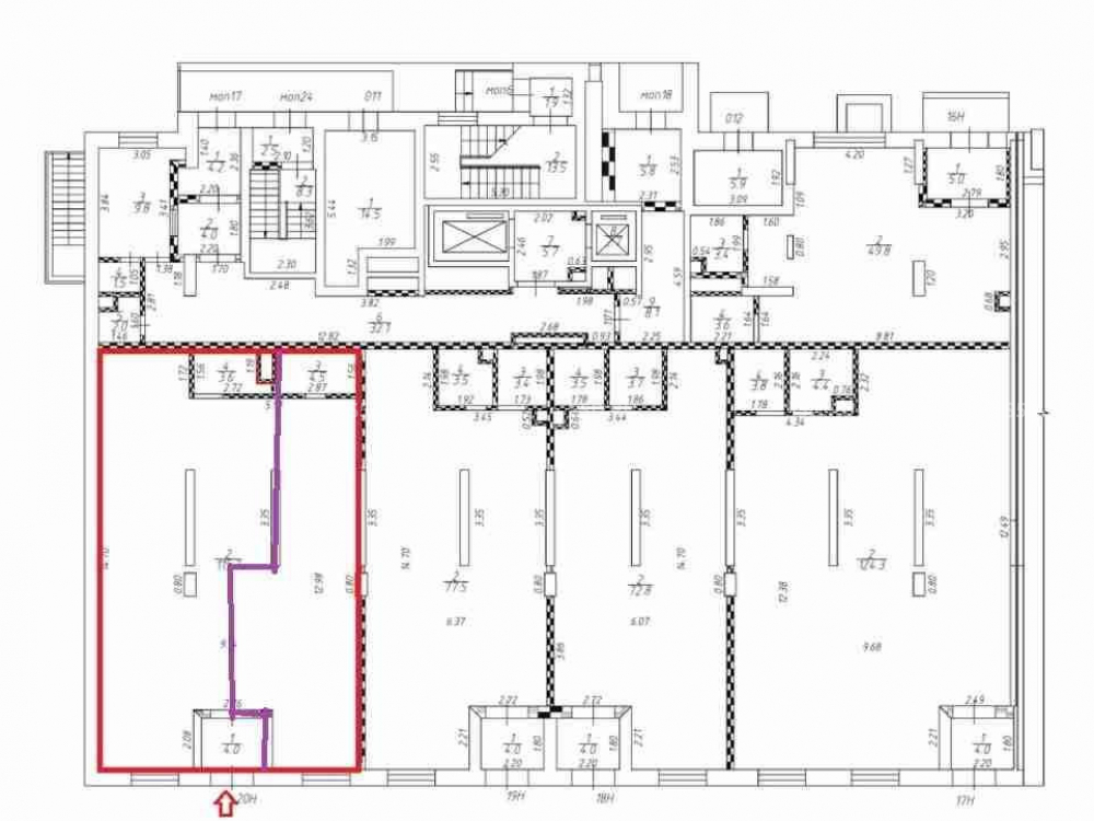
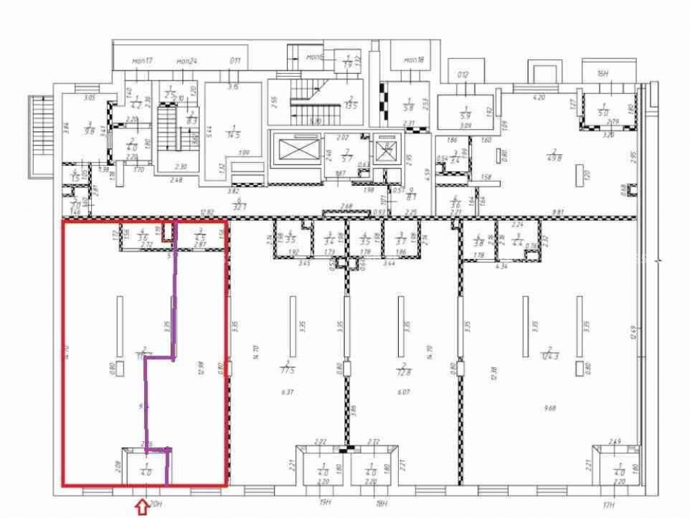
площадь 127.0 м2

QR код Qr код

Аренда торгового помещения в ЖК Царицыно - 2 по адресу: Радиальная д.7/1к1. Помещение расположено на 1 этаже 21 этажного жилого дома. В пешей доступности остановки общественного транспорта, ближайшие МЦД Покровское и МЦД Царицыно, рядом МСД.
Комплекс включает подземные паркинги, школы и детские сады.

Ближайшие соседи-арендаторы и инфраструктура: ПВЗ Ozon, магазин овощей и фруктов, химчистка Лотос, рядом школа.

ЖК сдан по этапно в период с 4 квартала 2021 года по 1 квартал 2023 года. Всего в комплексе 8 корпусов комфорт-класса, включающих около 7420 квартир.

Технические характеристики:
1 этаж 21 ти этажного дома.
- Общая площадь 127 м2,
- электрическая мощность 25 кВт,
- Высота потолков 3,5 м. Центральные коммуникации.
- Витринное остекление
Помещение подойдет под кaфe, пекарню, ПВЗ

Коммерческие условия:
Стоимость в месяц - 350 000 рублей;
Стоимость за 1 кв.м. - 2800 рублей;
Стоимость 1 кв.м./год.: 33 070 руб.

Согласование последующей ежегодной индексации.
Предоставляются арендные каникулы.
УСН

Технические характеристики

Тип здания: С отдельным входом,Торговая,Общепит,Жилой комплекс (мфк),Склад

Общая площадь: 127  м2

Этаж: 1

Всего этажей: 21

Электрическая мощность: 25 кВт

Высота потолков: 3.5 м

Парковка: наземная/ улица

Коммерческие условия

Цена в месяц: 350 000 RUB

ФОРМА ВЛАДЕНИЯ: собственность

карта

Расположение

Адрес: Москва, 6-я Радиальная улица, 7/1к1

Округ: Южный административный округ

Близость метро: Царицыно

Транспортная доступность: метро

Окружение

Торговое окружение: Ближайшие соседи-арендаторы и инфраструктура: ПВЗ Ozon, магазин овощей и фруктов, химчистка Лотос, рядом школа.

Адрес:

Москва, 6-я Радиальная улица, 7/1к1

Округ:

Южный административный округ

Близость метро:

Царицыно

Транспортная доступность:

метро

карта

Торговое окружение:

Ближайшие соседи-арендаторы и инфраструктура: ПВЗ Ozon, магазин овощей и фруктов, химчистка Лотос, рядом школа.

Общая площадь:

127  м2

Этаж:

1

Всего этажей:

21

Тип:

С отдельным входом,Торговая,Общепит,Жилой комплекс (мфк),Склад

Электрическая мощность:

25 кВт

Высота потолков:

3.5 м

Парковка:

наземная/ улица

ФОРМА ВЛАДЕНИЯ:

собственность

Цена в месяц:

350 000 RUB

Планировка

Романов Роман

Ваш брокер по работе с клиентами

Найдите лучшее место
для жизни, бизнеса, инвестиций

Оставьте свои контакты — с вами свяжется руководитель отдела для презентации нужного вам объекта

Похожие объекты