Id 160522

проезд Стройкомбината, д.1 / 220.4 кв.м. / Аренда ПСН

адрес проезд Стройкомбината, 1

С отдельным входом
Торговая

725 000 RUB | в месяц

(за 1 м2 — 3 289 RUB)

площадь 220.4 м2

QR код Qr код

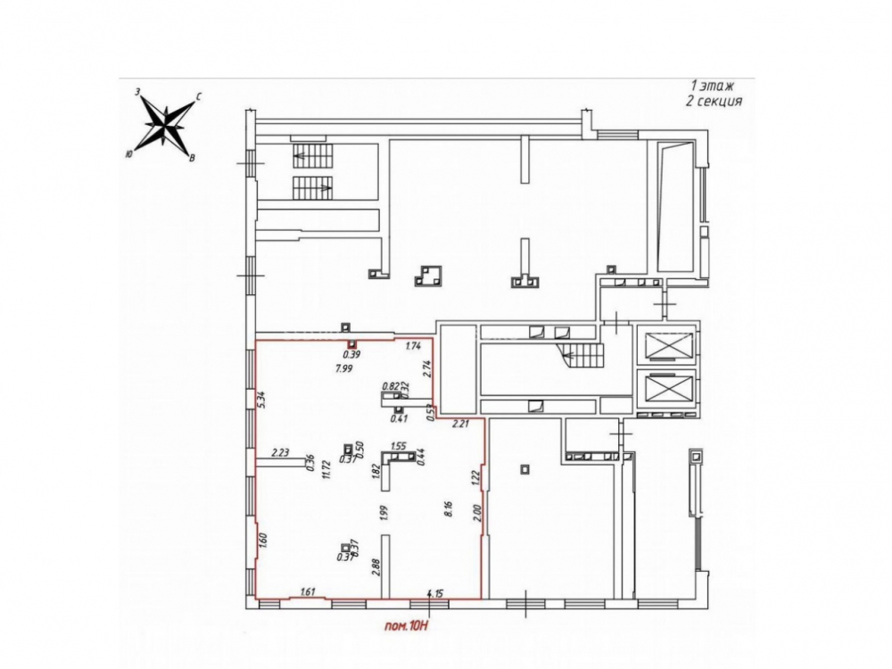
Предлагается в аренду угловое помещение свободного назначения по адресу: проезд Стройкомбината, д.1, площадью 220.4 кв.м. Новый полностью заселенный ЖК Новое Очаково. Развитая транспортная доступность с удобным выездом на проспект Генерала Дорохова и станцией D4 Очаково в 150 метрах от входа в помещения. Данный объект имеет прекрасную визуализацию, высокий рекламный и маркетинговый потенциал.

Торговое окружение: Магнит, Горздрав, Винлаб.

Технические параметры:
Помещение общей площадью 220.4 кв.м. состоит из двух соседних Первый этаж 33-х этажного жилого дома. Два отдельных входа, свободная планировка. Высота потолков 3-м. Выделенная мощность электроэнергии 35-кВт с возможностью увеличения. Состояния помещения - бетон. Возможно размещение летней веранды.

Коммерческие условия:
Ставка аренды: 725 000 рублей с НДС
Ставка аренды за 1 кв.м. в месяц: 3 289 рублей.
Коммунальные платежи оплачиваются отдельно.

Технические характеристики

Тип здания: С отдельным входом,Торговая

Общая площадь: 220.4  м2

Этаж: 1

Всего этажей: 33

Электрическая мощность: 44

Высота потолков: 3

Парковка: -

Коммерческие условия

Цена в месяц: 725 000 RUB

ФОРМА ВЛАДЕНИЯ: Физ.лицо

карта

Расположение

Адрес: проезд Стройкомбината, 1

Округ: Западный административный округ

Близость метро: Аминьевская,Очаково

Транспортная доступность: Развитая транспортная доступность с удобным выездом на проспект Генерала Дорохова и станцией D4 Очаково в 150 метрах от входа в помещения.

Окружение

Торговое окружение: Магнит, Горздрав, Винлаб.

Адрес:

проезд Стройкомбината, 1

Округ:

Западный административный округ

Близость метро:

Аминьевская,Очаково

Транспортная доступность:

Развитая транспортная доступность с удобным выездом на проспект Генерала Дорохова и станцией D4 Очаково в 150 метрах от входа в помещения.

карта

Торговое окружение:

Магнит, Горздрав, Винлаб.

Общая площадь:

220.4  м2

Этаж:

1

Всего этажей:

33

Тип:

С отдельным входом,Торговая

Электрическая мощность:

44

Высота потолков:

3

Парковка:

-

ФОРМА ВЛАДЕНИЯ:

Физ.лицо

Цена в месяц:

725 000 RUB

Планировка

Степанов Анатолий

Ваш брокер по работе с клиентами

Найдите лучшее место
для жизни, бизнеса, инвестиций

Оставьте свои контакты — с вами свяжется руководитель отдела для презентации нужного вам объекта

Похожие объекты