Id 160710

Лобненская улица, 13к4 - 112 кв. м. - Аренда / ПСН

адрес Москва, Лобненская улица, 13к4

Многофункциональный
С отдельным входом
Торговая
Жилой комплекс (мфк)

450 000 RUB | в месяц

(за 1 м2 — 4 018 RUB)

площадь 112.0 м2

QR код Qr код

Аренда помещения свободного назначения в ЖК «Дмитровский парк».
Адрес: г. Москва, САО, Дмитровский район, Лобненская улица, 13к4.
Ближайшее метро: Селигерская — 20 минут на транспорте.
ЖК «Дмитровский парк» — первая линия, 3 835 квартир, плотная высокоэтажная застройка. Помещение расположено рядом с подъездом, высокий пешеходный и автомобильный трафик.
Соседи: «Улыбка радуги», Colizeum, кафе «Здрасте».

Технические характеристики:
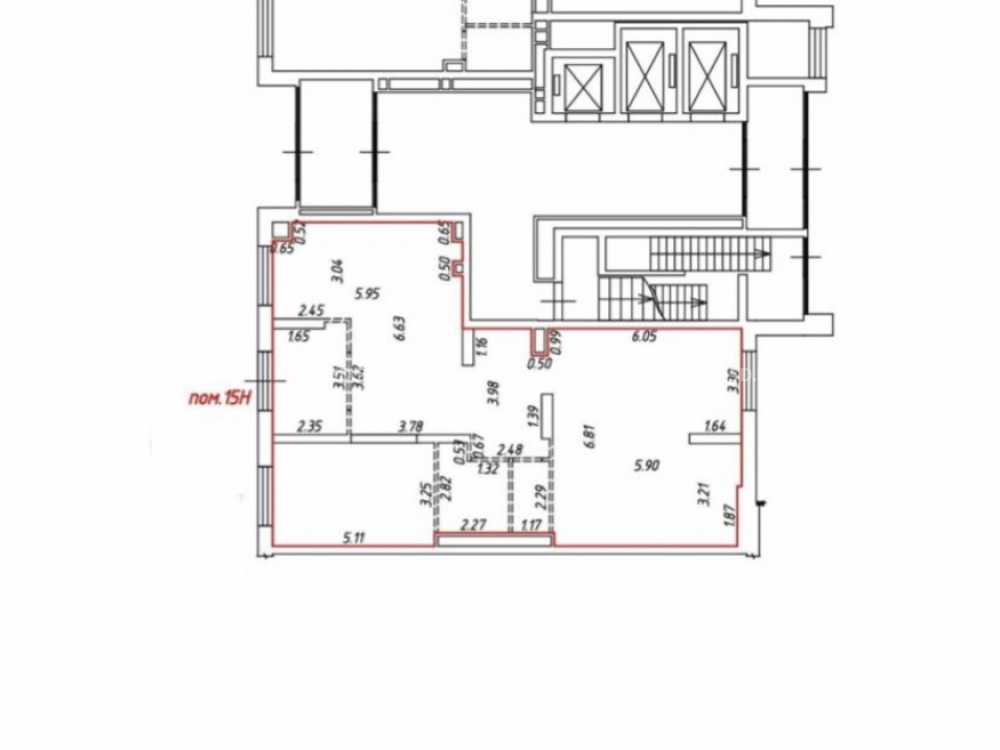
Общая площадь: 112 кв. м. 1 этаж, отдельный вход.
Панорамное остекление, открытая планировка.
Высота потолков: 3 м, электрическая мощность: 22 кВт.
Парковка перед фасадом, место для рекламы.

Коммерческие условия:
Арендная ставка: 450 000 рублей в месяц.
Ставка за 1 кв. м.: 4 000 рублей в месяц.
Арендные каникулы: 1–3 месяца.
Плавный выход на ставку.
Индексация: 5–7% в год.

Технические характеристики

Тип здания: Многофункциональный,С отдельным входом,Торговая,Жилой комплекс (мфк)

Общая площадь: 112  м2

Этаж: 1

Всего этажей: 33

Электрическая мощность: 22 кВт

Высота потолков: 3 м

Парковка: наземная

Коммерческие условия

Цена в месяц: 450 000 RUB

ФОРМА ВЛАДЕНИЯ: по запросу

карта

Расположение

Адрес: Москва, Лобненская улица, 13к4

Округ: Северный административный округ

Близость метро: Селигерская

Транспортная доступность: транспортом 20 минут

Окружение

Торговое окружение: развитая инфраструктура

Адрес:

Москва, Лобненская улица, 13к4

Округ:

Северный административный округ

Близость метро:

Селигерская

Транспортная доступность:

транспортом 20 минут

карта

Торговое окружение:

развитая инфраструктура

Общая площадь:

112  м2

Этаж:

1

Всего этажей:

33

Тип:

Многофункциональный,С отдельным входом,Торговая,Жилой комплекс (мфк)

Электрическая мощность:

22 кВт

Высота потолков:

3 м

Парковка:

наземная

ФОРМА ВЛАДЕНИЯ:

по запросу

Цена в месяц:

450 000 RUB

Планировка

Степанов Анатолий

Ваш брокер по работе с клиентами

Найдите лучшее место
для жизни, бизнеса, инвестиций

Оставьте свои контакты — с вами свяжется руководитель отдела для презентации нужного вам объекта

Похожие объекты