Id 160722

Москва, Прокшинский пр-т, д.5 - 90,4 кв.м. - Аренда ПСН

адрес Прокшинский проспект, 5

С отдельным входом
Торговая

200 000 RUB | в месяц

(за 1 м2 — 2 222 RUB)

площадь 90.0 м2

QR код Qr код

Предлагается в аренду помещение свободного назначения, расположенное по адресу: Москва, Прокшинский пр-т, д.5
Торговое окружение: Кофейня Здрасте, Гинекологическая клиника/Косметология Парадный мед, Четырые Лапы, Аптека Здравсити, Wildberries, Мясо&Колбасный, Ozon Fresh, Аптека Неофарм
От метро Прокшино - 10 минут пешком,

Технические характеристики:
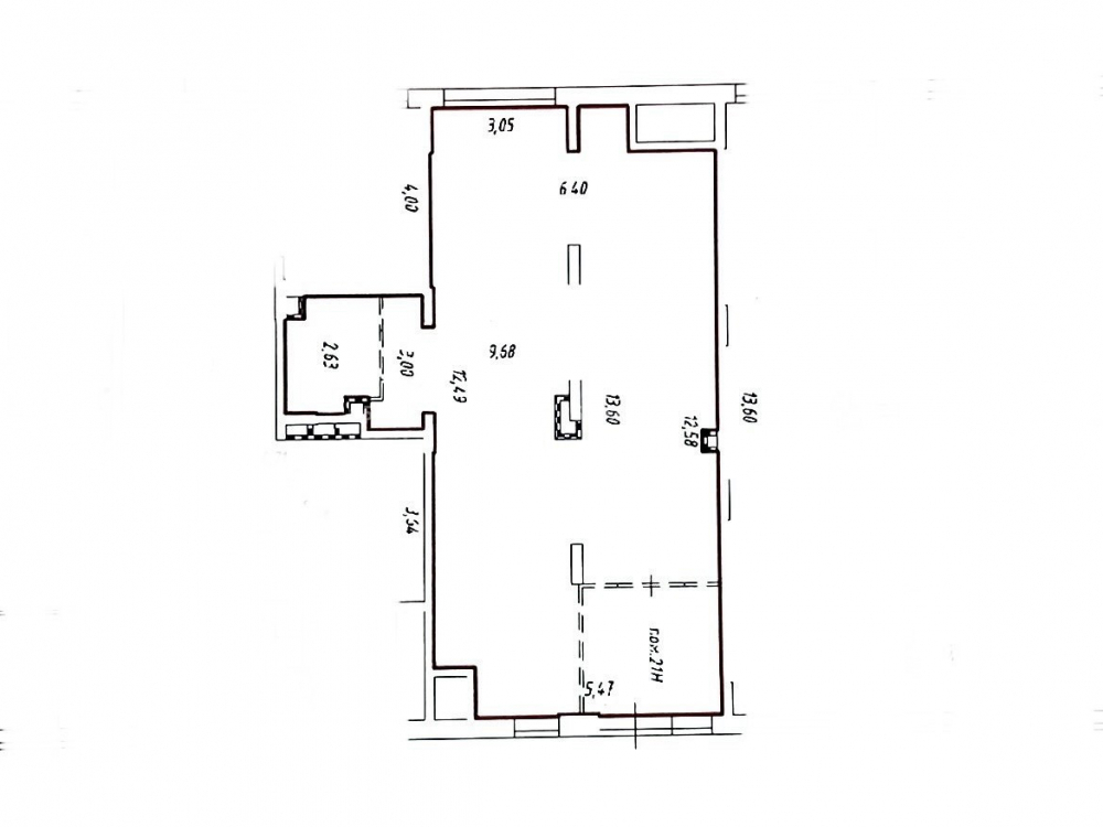
Площадь - 90,4 кв.м., 1 этаж, высота потолков - 6,5 м., эл.мощность -17 кВт, отдельный вход, без отделки

Коммерческие условия:
Стоимость аренды - 200 000 рублей в месяц

Технические характеристики

Тип здания: С отдельным входом,Торговая

Общая площадь: 90  м2

Этаж: 1

Всего этажей: 10

Электрическая мощность: 17 кВт

Высота потолков: 6,5 м

Парковка: Наземная

Коммерческие условия

Цена в месяц: 200 000 RUB

ФОРМА ВЛАДЕНИЯ: Физ.лицо

карта

Расположение

Адрес: Прокшинский проспект, 5

Округ: Юго-Западный административный округ

Близость метро: Прокшино

Транспортная доступность: -

Окружение

Торговое окружение: -

Адрес:

Прокшинский проспект, 5

Округ:

Юго-Западный административный округ

Близость метро:

Прокшино

Транспортная доступность:

-

карта

Торговое окружение:

-

Общая площадь:

90  м2

Этаж:

1

Всего этажей:

10

Тип:

С отдельным входом,Торговая

Электрическая мощность:

17 кВт

Высота потолков:

6,5 м

Парковка:

Наземная

ФОРМА ВЛАДЕНИЯ:

Физ.лицо

Цена в месяц:

200 000 RUB

Планировка

Евгений

Ваш брокер по работе с клиентами

Найдите лучшее место
для жизни, бизнеса, инвестиций

Оставьте свои контакты — с вами свяжется руководитель отдела для презентации нужного вам объекта

Похожие объекты