Id 160730

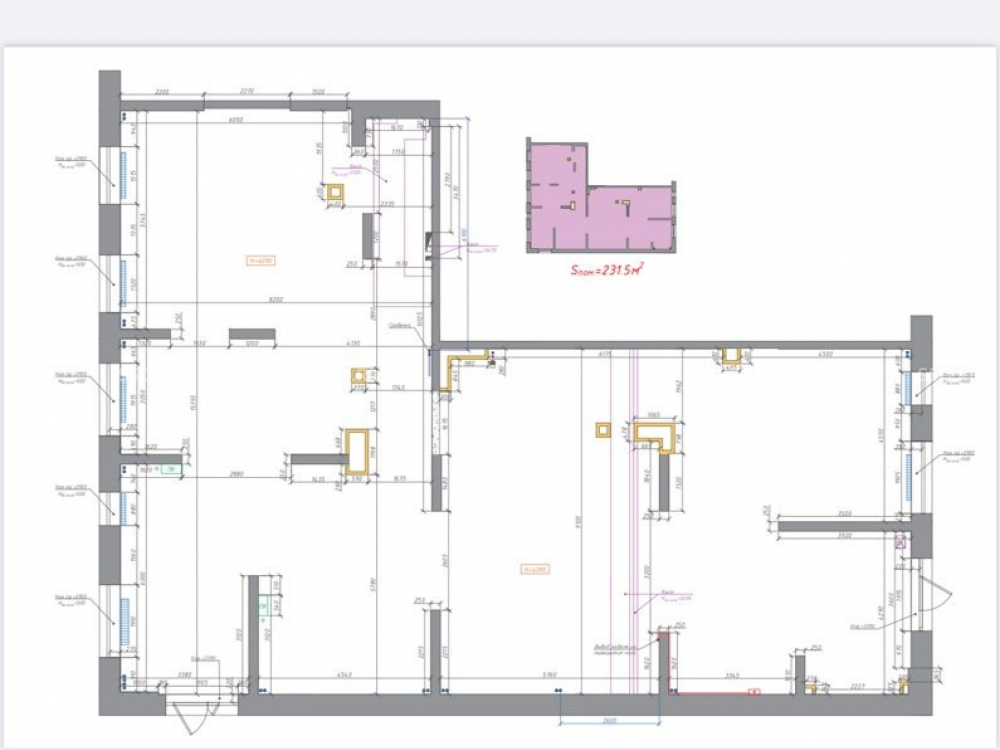
Помещение свободного назначения В ЖК Пригород Лесное / 231,5 м

адрес посёлок городского типа Мисайлово, Пригородное шоссе, 24

С отдельным входом
Торговая
Жилой комплекс (мфк)
Медицина

515 000 RUB | в месяц

(за 1 м2 — 2 229 RUB)

площадь 231.0 м2

QR код Qr код

Аренда торгового помещения площадью 231,5 м2 на первой линии по адресу: Пригородное шоссе 24. Проспект характеризуется высокой концентрацией ритейла, предприятий услуг и общепита.
Качественный пешеходный трафик генерируют жилые дома, поликлиника, сетевые продуктовые соседи.
Метро: Домодедовская - 15- 20 минут на авто

Технические характеристики:
- 1-й этаж жилого дома,
- Арендные каникулы
- Вход со двора
- Открытая планировка большие витринные окна,
- Презентабельный внешний вид,
- Высота потолков 3,5 м,
- Электрическая мощность - 20 кВт

Коммерческие условия:
Ставка аренды в месяц - 515 000 рублей
Ставка за м2/месяц - 2229 рублей

Технические характеристики

Тип здания: С отдельным входом,Торговая,Жилой комплекс (мфк),Медицина

Общая площадь: 231  м2

Этаж: 1

Всего этажей: 17

Электрическая мощность: 15

Высота потолков: 3,5

Парковка: есть/ улица

Коммерческие условия

Цена в месяц: 515 000 RUB

ФОРМА ВЛАДЕНИЯ: собственность ДДУ

карта

Расположение

Адрес: посёлок городского типа Мисайлово, Пригородное шоссе, 24

Округ: Южный административный округ

Близость метро: Домодедовская

Транспортная доступность: до метро Домодедовская 20 мин

Окружение

Торговое окружение: развитое и перспективное/ БургерКинг/ Яндекс лавка/

Адрес:

посёлок городского типа Мисайлово, Пригородное шоссе, 24

Округ:

Южный административный округ

Близость метро:

Домодедовская

Транспортная доступность:

до метро Домодедовская 20 мин

карта

Торговое окружение:

развитое и перспективное/ БургерКинг/ Яндекс лавка/

Общая площадь:

231  м2

Этаж:

1

Всего этажей:

17

Тип:

С отдельным входом,Торговая,Жилой комплекс (мфк),Медицина

Электрическая мощность:

15

Высота потолков:

3,5

Парковка:

есть/ улица

ФОРМА ВЛАДЕНИЯ:

собственность ДДУ

Цена в месяц:

515 000 RUB

Планировка

Романов Роман

Ваш брокер по работе с клиентами

Найдите лучшее место
для жизни, бизнеса, инвестиций

Оставьте свои контакты — с вами свяжется руководитель отдела для презентации нужного вам объекта

Похожие объекты