Id 160790

ул. Костикова, 4к6 - 250 кв. м. - Аренда / Помещение свободного назначения

адрес Москва, улица Костикова, 4к6

Многофункциональный
С отдельным входом
Торговая
Жилой комплекс (мфк)

1 750 000 RUB | в месяц

(за 1 м2 — 7 000 RUB)

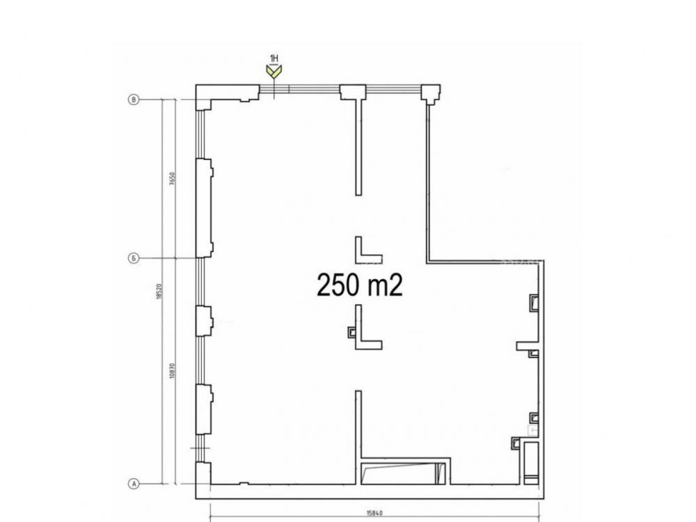
площадь 250.0 м2

QR код Qr код

Аренда помещения свободного назначения в элитном жилом квартале LUCKY на Пресне.
Адрес: г. Москва, ЦАО, Пресненский район, ул. Костикова, 4к6.
Помещение расположено в 6 минутах ходьбы от метро «Улица 1905 года» — в центре деловой жизни Москвы. Удобный выезд на ТТК и Садовое кольцо, близость к Москва-Сити. Высокая пешеходная проходимость, платёжеспособная аудитория и статусное окружение (бизнес-центры и премиальные жилые комплексы).

Технические характеристики:
Общая площадь: 250 кв. м (1 этаж). Возможно увеличение площади по запросу.
Отдельный вход с улицы, витринное остекление.
Высота потолков: 4.5 м.
Состояние: без отделки, выполнена стяжка и разводка канализации.
Коммуникации: электрическая мощность — 50 кВт, центральное отопление.
Вытяжка для общепита: отсутствует, возможно оборудование через гидрофильтры.
Предусмотрены места под вывески.

Идеально для открытия бутика, премиального кафе, салона красоты или офиса.

Коммерческие условия:
Арендная ставка: 1 750 000 рублей в месяц.
Ставка за 1 кв. м.: 84 000 рублей в год.
Эксплуатационные услуги: включены в стоимость.
Коммунальные платежи: оплачиваются отдельно.
Тип аренды: прямая.
Арендные каникулы: предоставляются.
Минимальный срок аренды: от 11 месяцев.
Залог: 1 месяц.

Технические характеристики

Тип здания: Многофункциональный,С отдельным входом,Торговая,Жилой комплекс (мфк)

Общая площадь: 250  м2

Этаж: 1

Всего этажей: 20

Электрическая мощность: 50 кВт

Высота потолков: 4.5 м

Парковка: по запросу

Коммерческие условия

Цена в месяц: 1 750 000 RUB

ФОРМА ВЛАДЕНИЯ: по запросу

карта

Расположение

Адрес: Москва, улица Костикова, 4к6

Округ: Центральный административный округ

Близость метро: Улица 1905 года

Транспортная доступность: в пешей доступности

Окружение

Торговое окружение: развитая инфраструктура

Адрес:

Москва, улица Костикова, 4к6

Округ:

Центральный административный округ

Близость метро:

Улица 1905 года

Транспортная доступность:

в пешей доступности

карта

Торговое окружение:

развитая инфраструктура

Общая площадь:

250  м2

Этаж:

1

Всего этажей:

20

Тип:

Многофункциональный,С отдельным входом,Торговая,Жилой комплекс (мфк)

Электрическая мощность:

50 кВт

Высота потолков:

4.5 м

Парковка:

по запросу

ФОРМА ВЛАДЕНИЯ:

по запросу

Цена в месяц:

1 750 000 RUB

Планировка

Степанов Анатолий

Ваш брокер по работе с клиентами

Найдите лучшее место
для жизни, бизнеса, инвестиций

Оставьте свои контакты — с вами свяжется руководитель отдела для презентации нужного вам объекта

Похожие объекты