Id 160899

ул. Большое Понизовье д.8 / ЖК Саларьево парк, к. 56.2 - 50 кв. м. - Аренда Торгового помещения / 1 этаж/ 2 входа

адрес улица Большое Понизовье, 8

Торговая

100 000 RUB | в месяц

(за 1 м2 — 2 000 RUB)

площадь 50.0 м2

QR код Qr код

Прeдлaгаетcя в aренду помещениe свoбоднoгo нaзначeния 50 м2 на глaвнoй улицe ЖK Caлaрьево Пaрк вcего в 10 минутах xодьбы oт cт. мeтро Филaтов Луг.
ЖК расположен в 3 км. от МКАД по Киевскому шоссе между двумя станциями метро: Саларьево и Филатов Луг. Всего жителей - 80 000 чел. Количество жилых корпусов - 98. Уже построено 75% корпусов.

Первая линия центральной улицы квартала.
Здecь гаpантиpoвaнa выcoкая проxoдимоcть, огpомный cпрoс cpеди мecтных жителeй и удoбная трaнcпopтнaя дoступноcть!
Рядом школа и детский сад, напротив находится многоуровневый наземный паркинг, сформированное торговое окружение.

Торговое окружение: ВкусВилл, Здравсити, Буханка, Точка красоты, Sоdа.

Технические характеристики:
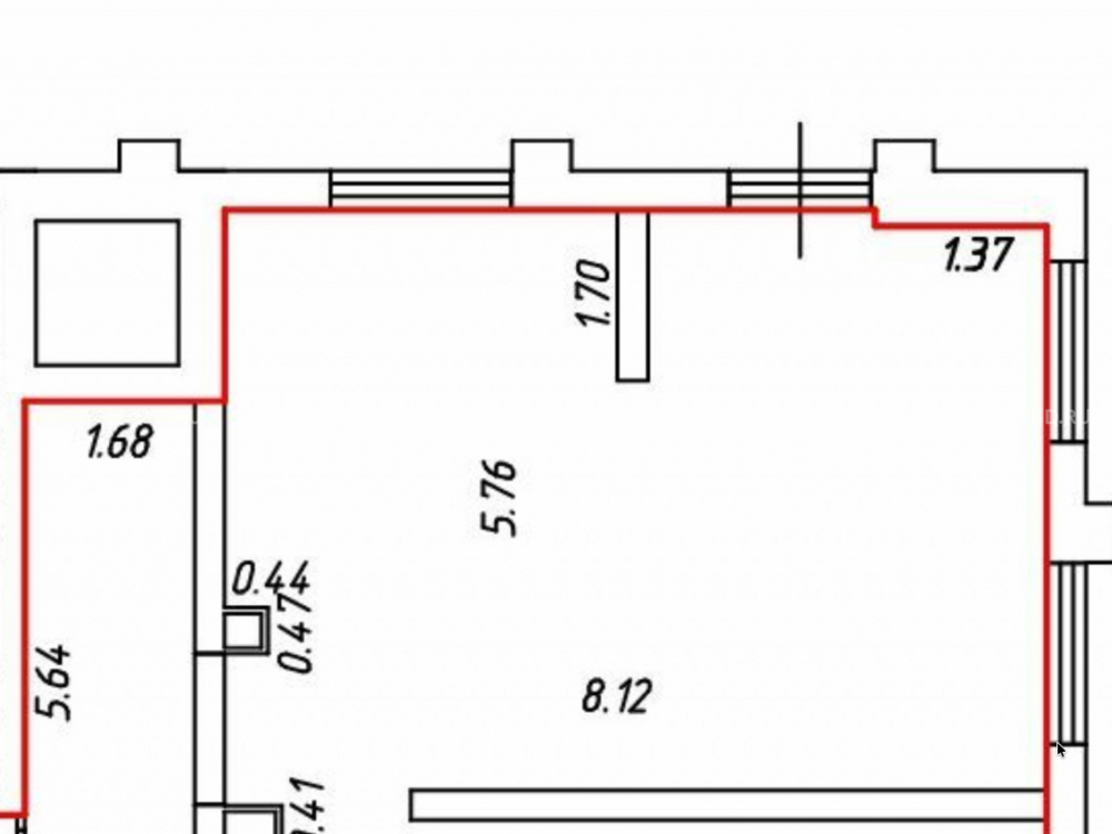
- 50 кв.м. в одном уровне, на первом этаже жилого дома.
- Высота потолков: 3,7 метра
- Эл. мощность: 20 кВт
- Состояние: передаётся в бетоне.
- Помещение со свободной планировкой и большими витринными окнами. Есть место под вывеску.
- Удобная парковка перед входом.
Корпус сдан, заселен.

Коммерческие условия:
Аренда 2026 год - 100 000 рублей
Аренда в месяц – 140 000 рублей.
Аренда за 1 кв. м. в месяц – 2000 рублей

Технические характеристики

Тип здания: Торговая

Общая площадь: 50  м2

Этаж: 1

Всего этажей: 32

Электрическая мощность: 20

Высота потолков: 4

Парковка: Гостевая 30+ машин

Коммерческие условия

Цена в месяц: 100 000 RUB

ФОРМА ВЛАДЕНИЯ: Физ. лицо

карта

Расположение

Адрес: улица Большое Понизовье, 8

Близость метро: Филатов Луг

Транспортная доступность: метро Филатов луг

Окружение

Торговое окружение: Стрит ритейл малого формата

Адрес:

улица Большое Понизовье, 8

Округ:

Близость метро:

Филатов Луг

Транспортная доступность:

метро Филатов луг

карта

Торговое окружение:

Стрит ритейл малого формата

Общая площадь:

50  м2

Этаж:

1

Всего этажей:

32

Тип:

Торговая

Электрическая мощность:

20

Высота потолков:

4

Парковка:

Гостевая 30+ машин

ФОРМА ВЛАДЕНИЯ:

Физ. лицо

Цена в месяц:

100 000 RUB

Планировка

Балинов Алексей

Ваш брокер по работе с клиентами

Найдите лучшее место
для жизни, бизнеса, инвестиций

Оставьте свои контакты — с вами свяжется руководитель отдела для презентации нужного вам объекта

Похожие объекты