Id 161263

Ленинский пр-т д. 12- 87.7 м2/ Аренда ПСН

адрес Москва, Ленинский проспект, 12

С отдельным входом
Торговая

340 000 RUB | в месяц

(за 1 м2 — 3 877 RUB)

площадь 87.7 м2

QR код Qr код

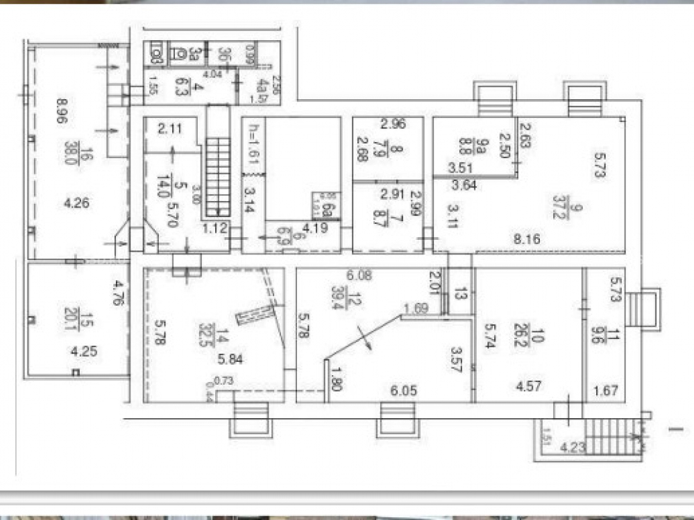
Предлагается в аренду помещение свободного назначения а ЦАО общей площадью -87,7 кв.м, расположенное на 1 этаже жилого дома по адресу Ленинский пр-т д. 12 на первой линия домов. Витринное остекление, высокие потолки, хороший трафик, паркинг для клиентов.


Технические характеристики:
Характеристики объекта:
▪ Тип здания – жилой дом
▪ Этаж – первый + антресоль
▪ Общая площадь – 87,7 кв.м.
▪ Первый этаж – 82,8 кв.м.
▪ Антресоль – 4,9 кв.м
▪ Высота потолков – 4,0 м
▪ Витрины – на Ленинский проспект
▪ Два отдельных входа – с Ленинского проспекта и со двора.

Транспортная доступность :
- м. Октябрьская, 10 мин пешком

Коммерческие условия:
Стоимость аренды в мес. – 390 000 руб.
Стоимость за 1 кв. м. – 3 877 руб.

Технические характеристики

Тип здания: С отдельным входом,Торговая

Общая площадь: 87.7  м2

Этаж: 1

Всего этажей: 8

Электрическая мощность: 30

Высота потолков: 4

Парковка: парковочное место

Коммерческие условия

Цена в месяц: 340 000 RUB

ФОРМА ВЛАДЕНИЯ: собственность ООО

карта

Расположение

Адрес: Москва, Ленинский проспект, 12

Округ: Центральный административный округ

Близость метро: Октябрьская,Шаболовская

Транспортная доступность: Новаторская 5 минут

Окружение

Торговое окружение: свадебный салон, салоны одежды, и пр

Адрес:

Москва, Ленинский проспект, 12

Округ:

Центральный административный округ

Близость метро:

Октябрьская,Шаболовская

Транспортная доступность:

Новаторская 5 минут

карта

Торговое окружение:

свадебный салон, салоны одежды, и пр

Общая площадь:

87.7  м2

Этаж:

1

Всего этажей:

8

Тип:

С отдельным входом,Торговая

Электрическая мощность:

30

Высота потолков:

4

Парковка:

парковочное место

ФОРМА ВЛАДЕНИЯ:

собственность ООО

Цена в месяц:

340 000 RUB

Планировка

Олеся Шайхисламова

Ваш брокер по работе с клиентами

Найдите лучшее место
для жизни, бизнеса, инвестиций

Оставьте свои контакты — с вами свяжется руководитель отдела для презентации нужного вам объекта

Похожие объекты