Id 161266

Петра Кончаловского ул. д. 7к3- 130 кв.м - Аренда / Торговое помещение

адрес Москва, улица Петра Кончаловского, 7к3

С отдельным входом
Торговая
Жилой комплекс (мфк)
Новостройка

325 000 RUB | в месяц

(за 1 м2 — 2 500 RUB)

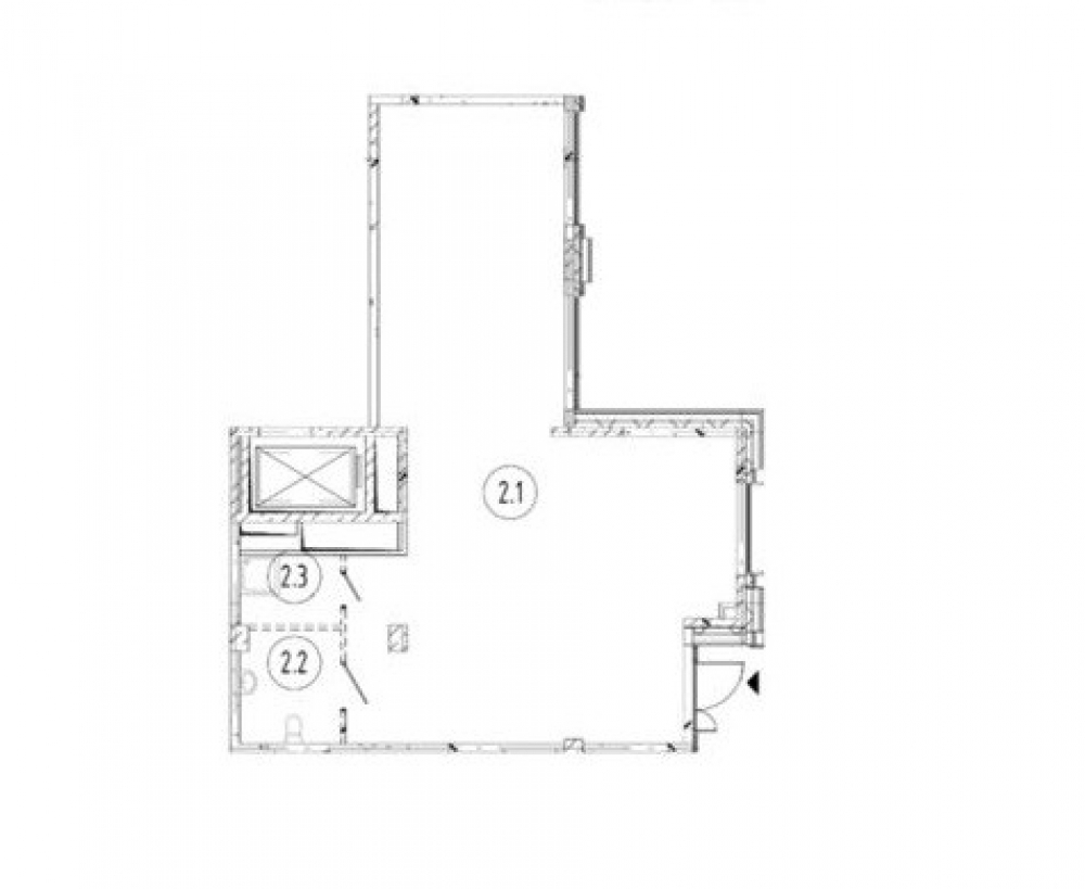
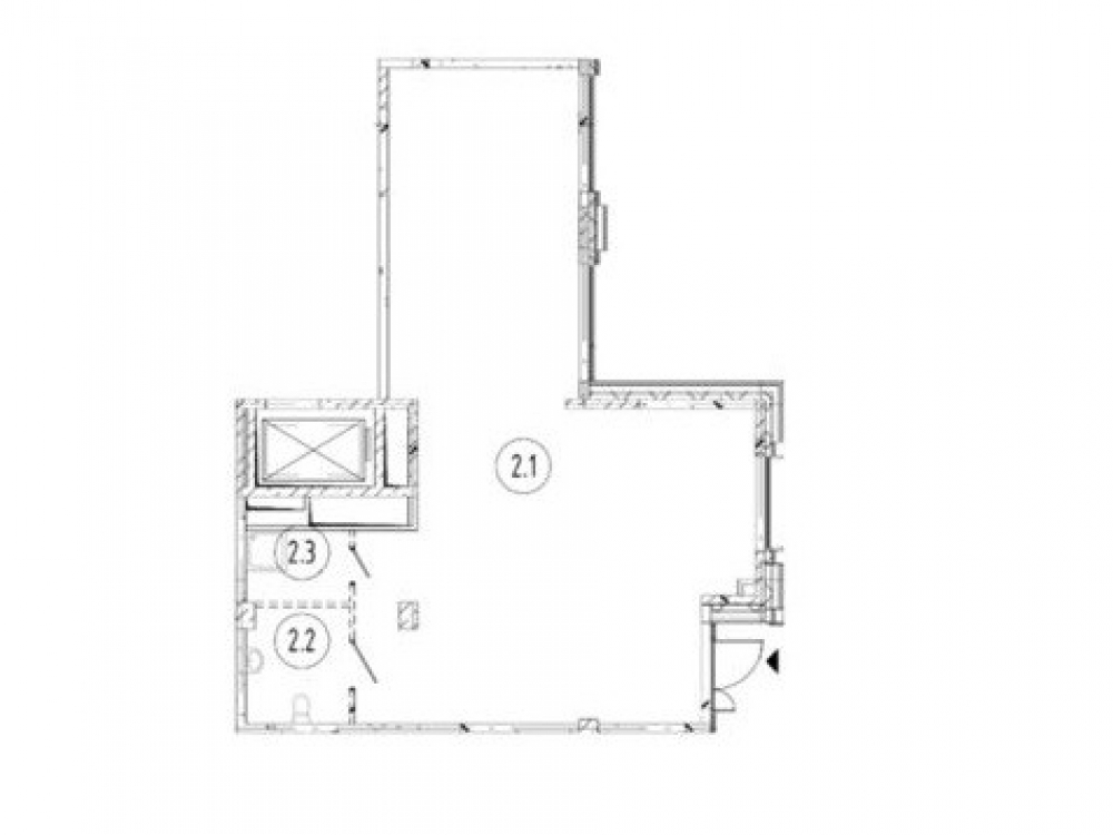
площадь 130.0 м2

QR код Qr код

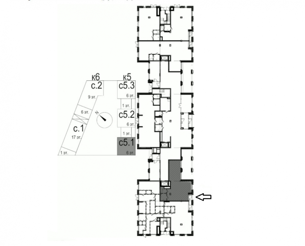
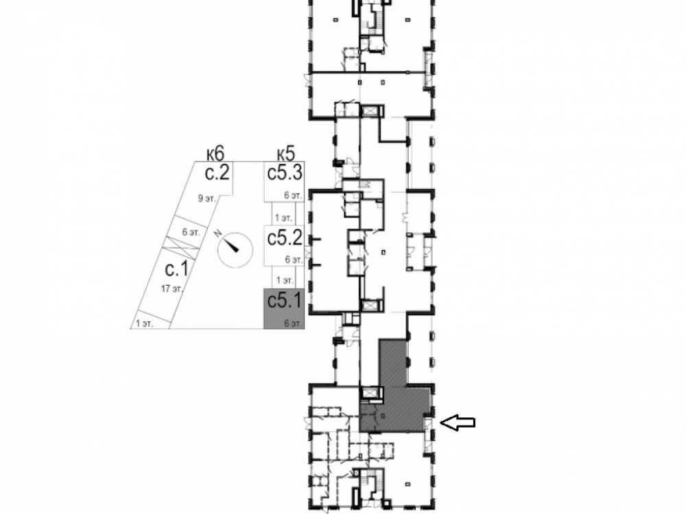
Аренда торгового помещения в ЖК Shagal, по адресу: г.Москва, Петра Кончаловского, 7к3. ЮАО, р-н Даниловский. 15 мин. пешком от м.Технопарк. Shagal - ЖК бизнес-класса на территории 109 Гектаров. ЖК состоит из 33 корпусов переменной этажности (от 6 до 28 этажей) на 6 238 квартир, рядом с водой, с видом на Москву-реку, Город в городе более 25 000 жителей.

Технические характеристики:
Площадь - 130 кв.м. (96 кв.м + 34 кв.м. антресоль). 1-й этаж разноуровневого 8-12 этажного жилого дома. Отдельный вход. Витринное остекление. Высота потолков - 5.22м (с возможностью возведения антресоли). Выделенная мощность электроэнергии - 19 кВт (с возможностью увеличения). Современные инженерные системы. Выводы ХВС/ГВС, канализация. Помещение в бетоне. Возможность дополнительно арендовать одно машиноместо в подземном паркинге.

Коммерческие условия:
Ставка аренды в мес. - 325 000 руб. (УСН).
Ставка за 1 кв.м в месяц- 2 500 руб.
Коммунальные платежи оплачиваются отдельно.

Технические характеристики

Тип здания: С отдельным входом,Торговая,Жилой комплекс (мфк),Новостройка

Общая площадь: 130  м2

Этаж: 1

Всего этажей: 12

Электрическая мощность: 19 кВт

Высота потолков:

Парковка: городская

Коммерческие условия

Цена в месяц: 325 000 RUB

ФОРМА ВЛАДЕНИЯ: ООО на УСН

карта

Расположение

Адрес: Москва, улица Петра Кончаловского, 7к3

Округ: Южный административный округ

Близость метро: ЗИЛ,Технопарк

Транспортная доступность: 15 минут пешком от м.Технопарк

Окружение

Торговое окружение: .

Адрес:

Москва, улица Петра Кончаловского, 7к3

Округ:

Южный административный округ

Близость метро:

ЗИЛ,Технопарк

Транспортная доступность:

15 минут пешком от м.Технопарк

карта

Торговое окружение:

.

Общая площадь:

130  м2

Этаж:

1

Всего этажей:

12

Тип:

С отдельным входом,Торговая,Жилой комплекс (мфк),Новостройка

Электрическая мощность:

19 кВт

Высота потолков:

Парковка:

городская

ФОРМА ВЛАДЕНИЯ:

ООО на УСН

Цена в месяц:

325 000 RUB

Планировка

Воробьев Алексей

Ваш брокер по работе с клиентами

Найдите лучшее место
для жизни, бизнеса, инвестиций

Оставьте свои контакты — с вами свяжется руководитель отдела для презентации нужного вам объекта

Похожие объекты