Id 161285

Москва, проезд Серебрякова, 11к2 / Аренда / Помещение свободного назначения / 77 кв. м.

адрес Москва, проезд Серебрякова, 11к2

Многофункциональный
С отдельным входом
Торговая
Новостройка

306 000 RUB | в месяц

(за 1 м2 — 4 000 RUB)

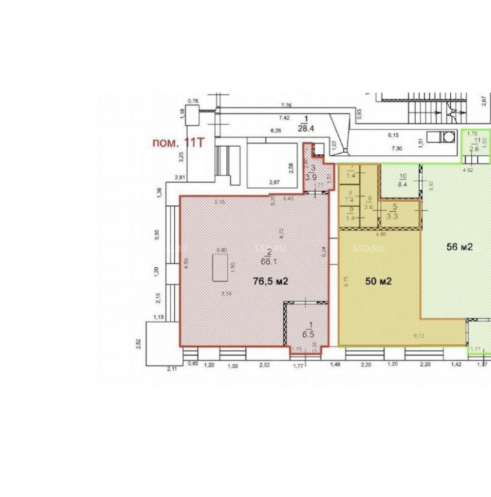
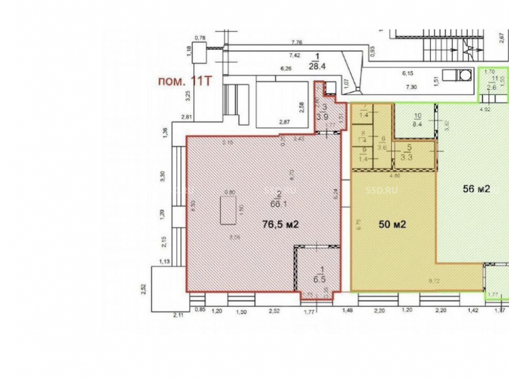
площадь 76.5 м2

QR код Qr код

Предлагается к аренде помещение свободного назначения, по адресу: Москва, проезд Серебрякова, 11к2 , площадью - 76.5 кв.м.

Ближайшая станция метро - Ботанический сад, 6 минут пешком. Помещение расположено на 1 этаже дома с коммерческими помещениями. Локация на высоком пешеходном трафике от метро на пересечении с главной аллеей парка. Аfi tower — это многоквартирный дом бизнес-класса в Москве от группы компаний НОРДСЕРВИС. Проект включает 1 169 квартир. Крупный жилой массив.

Технические характеристики:
Общая площадь на 1 этаже - 76.5 кв.м. Отдельный вход с фасада. Мощность электроэнергии 25 кВт. Высота потолков - 6 м. Без отделки.

Коммерческие условия:
Стоимость аренды: 306 000 рублей.
Стоимость за кв.м в месяц: 4 000 рублей.

Технические характеристики

Тип здания: Многофункциональный,С отдельным входом,Торговая,Новостройка

Общая площадь: 76.5  м2

Этаж: 1

Всего этажей: 53

Электрическая мощность: 25 кВт

Высота потолков: 6 м.

Парковка: Есть

Коммерческие условия

Цена в месяц: 306 000 RUB

ФОРМА ВЛАДЕНИЯ: Физ. лицо

карта

Расположение

Адрес: Москва, проезд Серебрякова, 11к2

Округ: Северо-Восточный административный округ

Близость метро: Ботанический сад (Калужско-Рижская),Ботанический сад (МЦК),Свиблово

Транспортная доступность: Ближайшая станция метро - Ботанический сад, 6 минут пешком.

Окружение

Торговое окружение: Большое.

Адрес:

Москва, проезд Серебрякова, 11к2

Округ:

Северо-Восточный административный округ

Близость метро:

Ботанический сад (Калужско-Рижская),Ботанический сад (МЦК),Свиблово

Транспортная доступность:

Ближайшая станция метро - Ботанический сад, 6 минут пешком.

карта

Торговое окружение:

Большое.

Общая площадь:

76.5  м2

Этаж:

1

Всего этажей:

53

Тип:

Многофункциональный,С отдельным входом,Торговая,Новостройка

Электрическая мощность:

25 кВт

Высота потолков:

6 м.

Парковка:

Есть

ФОРМА ВЛАДЕНИЯ:

Физ. лицо

Цена в месяц:

306 000 RUB

Планировка

Павел

Ваш брокер по работе с клиентами

Найдите лучшее место
для жизни, бизнеса, инвестиций

Оставьте свои контакты — с вами свяжется руководитель отдела для презентации нужного вам объекта

Похожие объекты