Id 161289

Москва, Корабельная 3А - 150 м2 / Аренда помещения свободного назначения

адрес Москва, Корабельная улица, 3А

С отдельным входом
Торговая
Жилой комплекс (мфк)
Новостройка

380 000 RUB | в месяц

(за 1 м2 — 2 533 RUB)

площадь 150.0 м2

QR код Qr код

Предлагается в аренду нежилое помещение по адресу: Москва, Корабельная 3А, площадью 150 м2. Помещение в ЖК бизнес-класса на набережной Нагатинского затона. До метро 5 минут пешком. Развитое торговое сосетство: Surf Coffee, ВкусВилл, 4hands, рестораны, аптеки, стоматологии и др.

Технические характеристики:
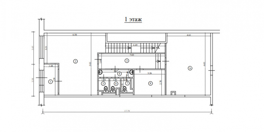
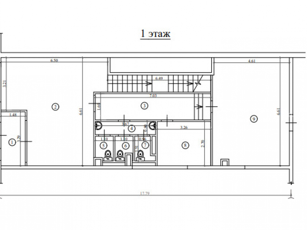
Помещение площадью 150 кв.м. с антресолью ( по полу 107м2)
• потолки 6 м.
• электроэнергия 15 кВт (есть техническая возможность для увеличения)
• высокий рекламный потенциал
• мокрая точка

Коммерческие условия:
Стоимость 380 000 рублей в месяц
Стоимость за м.кв. 2 533 рублей

Технические характеристики

Тип здания: С отдельным входом,Торговая,Жилой комплекс (мфк),Новостройка

Общая площадь: 150  м2

Этаж: 1

Всего этажей: 25

Электрическая мощность: 23

Высота потолков: 3,6

Парковка: Имеется

Коммерческие условия

Цена в месяц: 380 000 RUB

ФОРМА ВЛАДЕНИЯ: Собственность

карта

Расположение

Адрес: Москва, Корабельная улица, 3А

Округ: Южный административный округ,Юго-Восточный административный округ

Близость метро: Нагатинский Затон

Транспортная доступность: Метро в 10-ти минутах

Окружение

Торговое окружение: Пятерочка, смешные цены и др

Адрес:

Москва, Корабельная улица, 3А

Округ:

Южный административный округ,Юго-Восточный административный округ

Близость метро:

Нагатинский Затон

Транспортная доступность:

Метро в 10-ти минутах

карта

Торговое окружение:

Пятерочка, смешные цены и др

Общая площадь:

150  м2

Этаж:

1

Всего этажей:

25

Тип:

С отдельным входом,Торговая,Жилой комплекс (мфк),Новостройка

Электрическая мощность:

23

Высота потолков:

3,6

Парковка:

Имеется

ФОРМА ВЛАДЕНИЯ:

Собственность

Цена в месяц:

380 000 RUB

Планировка

Егор Дмитриев

Ваш брокер по работе с клиентами

Найдите лучшее место
для жизни, бизнеса, инвестиций

Оставьте свои контакты — с вами свяжется руководитель отдела для презентации нужного вам объекта

Похожие объекты