Id 7682

ул. Перерва, 56/2 - 80,7 кв.м - Аренда / Торговое помещение/ Помещение свободного назначения

адрес Москва, улица Перерва, 56/2

Многофункциональный
С отдельным входом
Торговая

500 000 RUB | в месяц

(за 1 м2 — 6 196 RUB)

площадь 80.7 м2

QR код Qr код

Аренда помещения свободного назначения, ЮВАО, район Марьино, ул. Перерва, Ближайшая станция метро "Братиславская" расположена в 70 мерах, отличная визуализация объекта, прямая видимость от метро, высокий рекламный потенциал, первая линия домов, оживлённый трафик. Окружение: большой жилой массив с плотной многоэтажной застройкой, кафе, банки, магазины.

Технические характеристики:
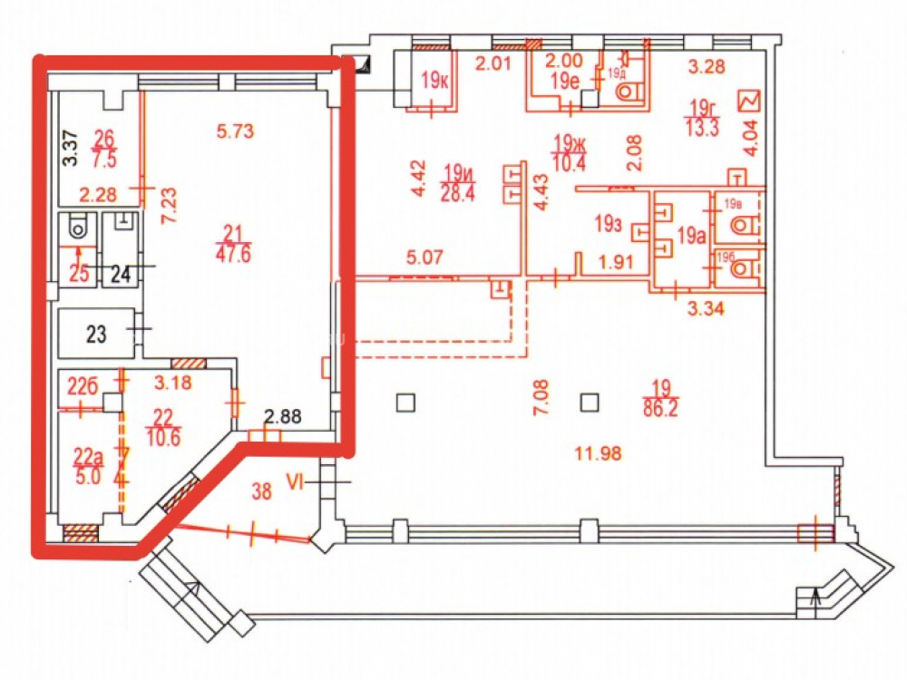
Первый этаж 14 этажного жилого дома, общая площадь - 80 кв.м, Витрины, Отдельный вход, Открытая планировка, Состояние помещения - после арендатора, Высота потолков - 3 метра, Выделенная эл. мощность- 30 кВт, (возможно увеличение), Современные инженерные системы, Центральные коммуникации, Мокрые точки.

Коммерческие условия:
Ставка аренды в месяц - 500 000 рублей.
Ставка за 1 кв.м в месяц - 6250рублей.
Ставка за 1 кв.м в год - 75000 рублей.
Прямой долгосрочный договор.
Оплата коммунальных услуг - по факту потребления.

Технические характеристики

Тип здания: Многофункциональный,С отдельным входом,Торговая

Общая площадь: 80.7  м2

Этаж: 1

Всего этажей: 14

Электрическая мощность: 30

Высота потолков: 3

Парковка: уличная

Коммерческие условия

Цена в месяц: 500 000 RUB

ФОРМА ВЛАДЕНИЯ: собственность ДКП

карта

Расположение

Адрес: Москва, улица Перерва, 56/2

Округ: Юго-Восточный административный округ

Близость метро: Братиславская

Транспортная доступность: метро

Окружение

Торговое окружение: развитое

Адрес:

Москва, улица Перерва, 56/2

Округ:

Юго-Восточный административный округ

Близость метро:

Братиславская

Транспортная доступность:

метро

карта

Торговое окружение:

развитое

Общая площадь:

80.7  м2

Этаж:

1

Всего этажей:

14

Тип:

Многофункциональный,С отдельным входом,Торговая

Электрическая мощность:

30

Высота потолков:

3

Парковка:

уличная

ФОРМА ВЛАДЕНИЯ:

собственность ДКП

Цена в месяц:

500 000 RUB

Планировка

Александр Невский

Ваш брокер по работе с клиентами

Найдите лучшее место
для жизни, бизнеса, инвестиций

Оставьте свои контакты — с вами свяжется руководитель отдела для презентации нужного вам объекта

Похожие объекты