Id 11078

Кировоградская 9к4, ТЦ Южный - 1000 кв.м. / Аренда помещения свободного назначения

адрес Москва, Кировоградская 9к4

Многофункциональный
Торговая
Общепит
ТЦ

1 000 000 RUB | в месяц

(за 1 м2 — 1 000 RUB)

площадь 1 000.0 м2

QR код Qr код

Предлагается в аренду торговая площадь / ПСН в ТЦ "Южный" по адресу г. Москва, ЮАО, район Чертаново-Северное, ул. Кировоградская 9к4 в непосредственной близости от м. Южная (40 м до входа в помещение).
ТЦ располагается в окружении Варшавского ш., ул. Кировоградская, ул. Сумская и Днепропетровская в центре густонаселенного жилого района.
Удобная транспортная доступность, близость к метро, обширная зона парковки (500 м/м), развитое торговое окружение, высокий пешеходный и автомобильный трафики. Ближайший вход в помещение со стороны Кировоградской.
Торговый центр общей площадью 21 000 кв.м., отличная визуализация и рекламные возможности, 8 входных групп, витринное остекление.
Арендаторы и торговое окружение ТЦ: Мяснов-Отдохни, МТС Банк, Росбанк, Бургер Кинг, Экзист, магазины одежды, аптеки, кафе и др. В 30 метрах от ТЦ на углу Варшавского ш. и ул. Сумская расположен ресторан Макдональдс, напротив ТЦ в соседнем доме Мои документы и Магнит Косметик.

Технические характеристики:
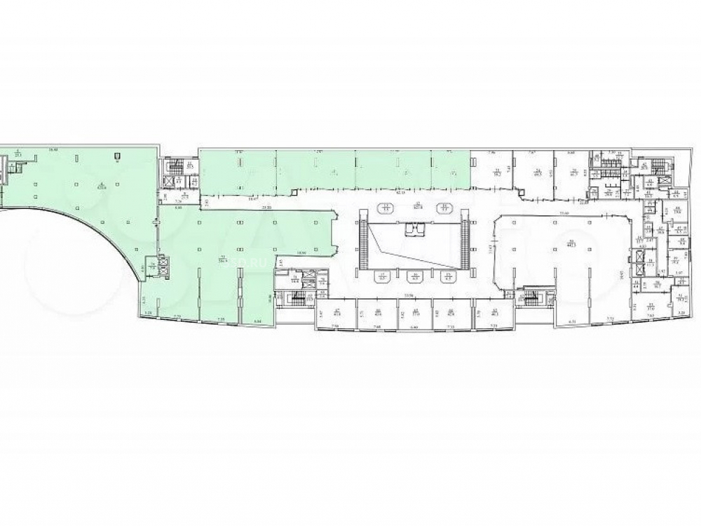
Общая площадь помещения - 1000 кв.м., 3-й этаж; витринное остекление на части фасадов, высота потолков - 4 м., эл.мощность достаточная для ведения различных сфер деятельности, открытая планировка с сеткой колонн, центральные коммуникации.

Коммерческие условия:
Стоимость аренды за все помещение в месяц - 1 000 000 рублей (вкл. НДС)
Ставка аренды за кв.м. в месяц - 1 000 рублей. (вкл. НДС)
Ставка аренды за кв.м. в год - 12 000 рублей. (вкл. НДС)
Договор аренды на 11 мес с пролонгацией
Коммунальные услуги оплачиваются по факту потребления.

Технические характеристики

Тип здания: Многофункциональный,Торговая,Общепит,ТЦ

Общая площадь: 1000  м2

Этаж: 3

Всего этажей: 3

Электрическая мощность: По запросу

Высота потолков: 4 м

Парковка: На улице

Коммерческие условия

Цена в месяц: 1 000 000 RUB

ФОРМА ВЛАДЕНИЯ: Юр.лицо

карта

Расположение

Адрес: Москва, Кировоградская 9к4

Округ: Южный административный округ

Близость метро: Южная

Транспортная доступность: от м. Южная 40 м до входа в помещение. ТЦ располагается в окружении Варшавского ш., ул. Кировоградская, ул. Сумская и Днепропетровская в центре густонаселенного жилого района.

Окружение

Торговое окружение: Мяснов-Отдохни, МТС Банк, Росбанк, Бургер Кинг, Экзист, магазины одежды, аптеки, кафе и др. В 30 метрах от ТЦ на углу Варшавского ш. и ул. Сумская расположен ресторан Макдональдс, напротив ТЦ в соседнем доме Мои документы и Магнит Косметик.

Адрес:

Москва, Кировоградская 9к4

Округ:

Южный административный округ

Близость метро:

Южная

Транспортная доступность:

от м. Южная 40 м до входа в помещение. ТЦ располагается в окружении Варшавского ш., ул. Кировоградская, ул. Сумская и Днепропетровская в центре густонаселенного жилого района.

карта

Торговое окружение:

Мяснов-Отдохни, МТС Банк, Росбанк, Бургер Кинг, Экзист, магазины одежды, аптеки, кафе и др. В 30 метрах от ТЦ на углу Варшавского ш. и ул. Сумская расположен ресторан Макдональдс, напротив ТЦ в соседнем доме Мои документы и Магнит Косметик.

Общая площадь:

1000  м2

Этаж:

3

Всего этажей:

3

Тип:

Многофункциональный,Торговая,Общепит,ТЦ

Электрическая мощность:

По запросу

Высота потолков:

4 м

Парковка:

На улице

ФОРМА ВЛАДЕНИЯ:

Юр.лицо

Цена в месяц:

1 000 000 RUB

Планировка

Теребилов Михаил

Ваш брокер по работе с клиентами

Найдите лучшее место
для жизни, бизнеса, инвестиций

Оставьте свои контакты — с вами свяжется руководитель отдела для презентации нужного вам объекта

Похожие объекты