Id 137294

Варшавское ш., 170Ек8/Продажа помещения свободного назначения с арендатором/Красное и Белое

адрес Москва, Варшавское ш., 170Ек8

Арендный бизнес
С отдельным входом
Торговая

Окупаемость: 13 лет

Доходность:7.69%

42 000 000 RUB | за все

(за 1 м2 — 482 759 RUB)

площадь 87.0 м2

QR код Qr код

Продажа помещения свободного назначения, адрес: г. Москва, Варшавское шоссе, 170Ек8. Первая линия домов, станция метро "Лесопарковая" от метро "Аннино" 10 минут пешком.
В окружении крупного, активно развивающегося жилого массива 28 жилых корпусов с 6800 квартирами в комплексах, новый ЖК "Зеленая Вертикаль".

Помещение свободного и торгового назначения расположено на центральной аллее огромного жилого комплекса. Плотный пешеходный и автомобильный трафик вдоль помещения. Открыт сквозной проход и проезд от метро.

Рядом с помещением Лента, Бритва, Орбита 67, Вкус Вилл, Пятерочка, МРЕО ГИБДД ЮАО, Тех. Центр Варшавский и др.
На въезде/выезде в огромный, заселённый, развивающийся, спальный район Москвы. Круглосуточный плотный трафик.

Характеристики объекта:
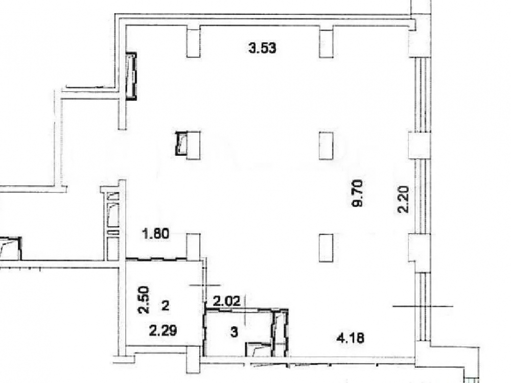
На 1 этаже 20-этажного жилого дома общей площадью 87 кв.м.
Отдельный вход без ступенек и пандусов, Высота потолков: 4.5 м. Мощность электросети: 22 кВт, можно увеличить.
Отделка shell & core, витринное остекление. Возможна любая медицинская лицензия. Вытяжка под общепит.
Парковка (нет шлагбаума), размещение вывески на фасаде.
Две мокрые точки, пожарная сигнализация и гидрант, промышленная вытяжка с принудительным усилением потока.

Коммерческие условия:
Стоимость объекта 42 000 000 рублей;
Стоимость 1 кв.м: 482 758,6 рублей.
Арендатор: Красное и Белое - федеральная сеть алкомаркетов. Ежегодный рост выручки компании, 15-20% в календарный год (данные за 21,22 и 23г). В этом году вырастут на 25%. Гарантированный договор аренды на 10 лет(Зарегистрирован в Росреестре) с индексацией.
МАП: 270 000 рублей + КУ, индексация 5% (договорная) ДДА на 10 лет.
ГАП: 3 240 000 рублей
Окупаемость: 12,5 лет
Продажа по ДКП

Технические характеристики

Тип здания: Арендный бизнес,С отдельным входом,Торговая

Общая площадь: 87  м2

Этаж: 1

Всего этажей: 20

Электрическая мощность: 22 кВт, можно увеличить

Высота потолков: 4.5 м

Парковка: есть

Коммерческие условия

Цена за все: 42 000 000 RUB

ФОРМА ВЛАДЕНИЯ: физ.лицо

Общий МАП: 270 000 RUB (данный МАП является минимальным, при оптимизации арендаторов арендный поток можно значительно увеличить)

Общий ГАП: 3 240 000 RUB

Окупаемость: 13 лет

Доходность: 7.69%

карта

Расположение

Адрес: Москва, Варшавское ш., 170Ек8

Округ: Южный административный округ

Близость метро: Лесопарковая

Транспортная доступность: отличная

Окружение

Торговое окружение: развитое

Адрес:

Москва, Варшавское ш., 170Ек8

Округ:

Южный административный округ

Близость метро:

Лесопарковая

Транспортная доступность:

отличная

карта

Торговое окружение:

развитое

Общая площадь:

87  м2

Этаж:

1

Всего этажей:

20

Тип:

Арендный бизнес,С отдельным входом,Торговая

Электрическая мощность:

22 кВт, можно увеличить

Высота потолков:

4.5 м

Парковка:

есть

ФОРМА ВЛАДЕНИЯ:

физ.лицо

Цена за все:

42 000 000 RUB

Общий МАП: 270 000

(данный МАП является минимальным, при оптимизации арендаторов арендный поток можно значительно увеличить)

Общий ГАП:

3 240 000

Окупаемость:

13 лет

Доходность:

7.69%

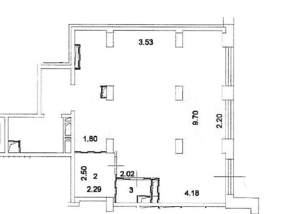
Планировка

Гервас Ксения

Ваш брокер по работе с клиентами

Найдите лучшее место
для жизни, бизнеса, инвестиций

Оставьте свои контакты — с вами свяжется руководитель отдела для презентации нужного вам объекта

Похожие объекты