Id 138252

Москва, ул. Академика Королёва, 19А - 1 220.1 м2/ ОСЗ / Общепит, Ресторан, Кафе, Лаунж

адрес СВАО, ул. Академика Королева, 19а

Особняк/здание
С отдельным входом
Общепит

1 500 000 RUB | в месяц

(за 1 м2 — 1 229 RUB)

площадь 1 220.1 м2

QR код Qr код

Предлагается в аренду отдельно стоящее здание в Парке "Дубовая роща", что в 250 м от Останкинской телебашни. Комфортная атмосфера, прекрасные виды., в окружении дубовой рощи. Соседство - ГТРК, НТВ, Останкино, Музей телевидения, Институт ТВ и Радио, ЖК премиум класса "Достижение", другие учреждения и офисы. Напротив станция легкого метро "Телецентр". В 5 минутах ходьбы - Главный ботанический сад РАН. В шаговой доступности станция D3 "Останкино". Насыщенный пешеходный трафик (работники, студенты, экскурсии, жители)

Технические данные:
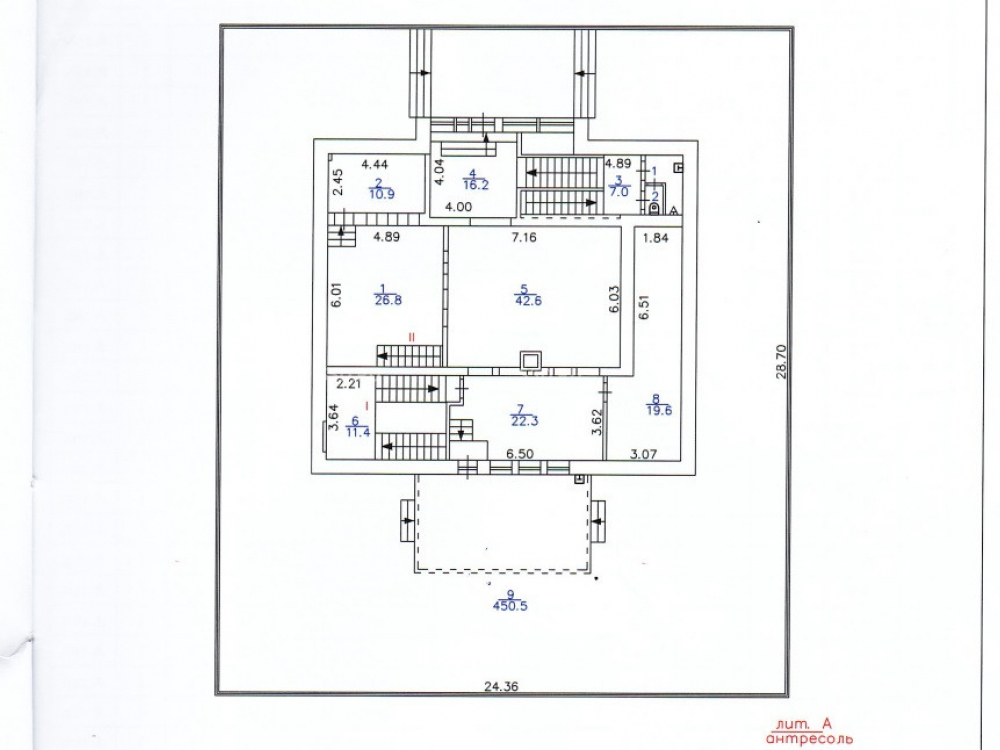
Общая площадь - 1 220.1 м2. Первый этаж - 596.3 м2. Антресоль (с выходом на эксплуатируемую кровлю) - 161.1 м2. Эксплуатируемая кровля - 450.5 м2. Обустроенная территория, элементы малой архитектуры. Состояние - за выездом арендатора. Сделана новая гидроизоляция кровли. Есть возможность обустройства летней или круглогодичной веранды на кровле. Парковка 4-6 м/м на заднем дворе.
Панорамное остекление. Отопление центральное. Эл. Мощность 150 кВт. Ограничения по алкоголю нет.

Коммерческие условия:
МАП - 1 500 000 рублей.
Ставка за 1 м2 в месяц - 1 300 рублей
Ставка за 1 м2 в год - 15 600 рублей
Прямая аренда, ДДА возможен.
Каникулы, льготный период - обсуждаются.

Технические характеристики

Тип здания: Особняк/здание,С отдельным входом,Общепит

Общая площадь: 1220.1  м2

Этаж: 1

Всего этажей: 2

Электрическая мощность: 150 кВт

Высота потолков: 2.05-3.4 м

Парковка: есть

Коммерческие условия

Цена в месяц: 1 500 000 RUB

ФОРМА ВЛАДЕНИЯ: ООО на УСН

карта

Расположение

Адрес: СВАО, ул. Академика Королева, 19а

Округ: Северо-Восточный административный округ

Близость метро: Телецентр

Транспортная доступность: Напротив станция легкого метро

Окружение

Торговое окружение: ГТРК, НТВ, Останкино, Музей телевидения, Институт ТВ и Радио, ЖК премиум класса

Адрес:

СВАО, ул. Академика Королева, 19а

Округ:

Северо-Восточный административный округ

Близость метро:

Телецентр

Транспортная доступность:

Напротив станция легкого метро

карта

Торговое окружение:

ГТРК, НТВ, Останкино, Музей телевидения, Институт ТВ и Радио, ЖК премиум класса

Общая площадь:

1220.1  м2

Этаж:

1

Всего этажей:

2

Тип:

Особняк/здание,С отдельным входом,Общепит

Электрическая мощность:

150 кВт

Высота потолков:

2.05-3.4 м

Парковка:

есть

ФОРМА ВЛАДЕНИЯ:

ООО на УСН

Цена в месяц:

1 500 000 RUB

Планировка

Николай

Ваш брокер по работе с клиентами

Найдите лучшее место
для жизни, бизнеса, инвестиций

Оставьте свои контакты — с вами свяжется руководитель отдела для презентации нужного вам объекта

Похожие объекты