Id 141216

Сходненская, 8 - 129 м² / Продажа арендного бизнеса / ВкусВилл (пекарня-производство)

адрес Москва, ул. Сходненская, 8

Арендный бизнес
С отдельным входом
Торговая

Окупаемость: 9.5 лет

Доходность:10.53%

45 500 000 RUB | за все

(за 1 м2 — 352 713 RUB)

площадь 129.0 м2

QR код Qr код

Предлагается к продаже торговое помещение с арендатором, находящееся на пеpвом этаж нeжилoгo здaния, расположенное по адресу: г. Москва, СЗАО, район Южное Тушино, Сходненская улица, дом 8.
Ближайшие станции метро: Сходненская – 13 мин. пешком, Планерная – 4 мин. транспортом, Тушинская – 5 мин. транспортом. Здание располагается в спальном районе Москвы, в шаговой доступности от метро и в 100 метрах трамвайной остановки. Объект находится на 1-ой линии, на пересечении Сходненской и Лодочной улицы и Строительного проезда. Интенсивный автомобильный трафик. Развитая инфраструктура района.
Торговое окружение: Сбербанк, салон красоты Камелия, салон бровей и ресниц Бровист, пункт выдачи Ozon, косметология Pm.Olay, массажный салон, магазин продуктов Авокадо, химчистка Диана, ателье, магазин нумизматики Пруф.

Технические характеристики:
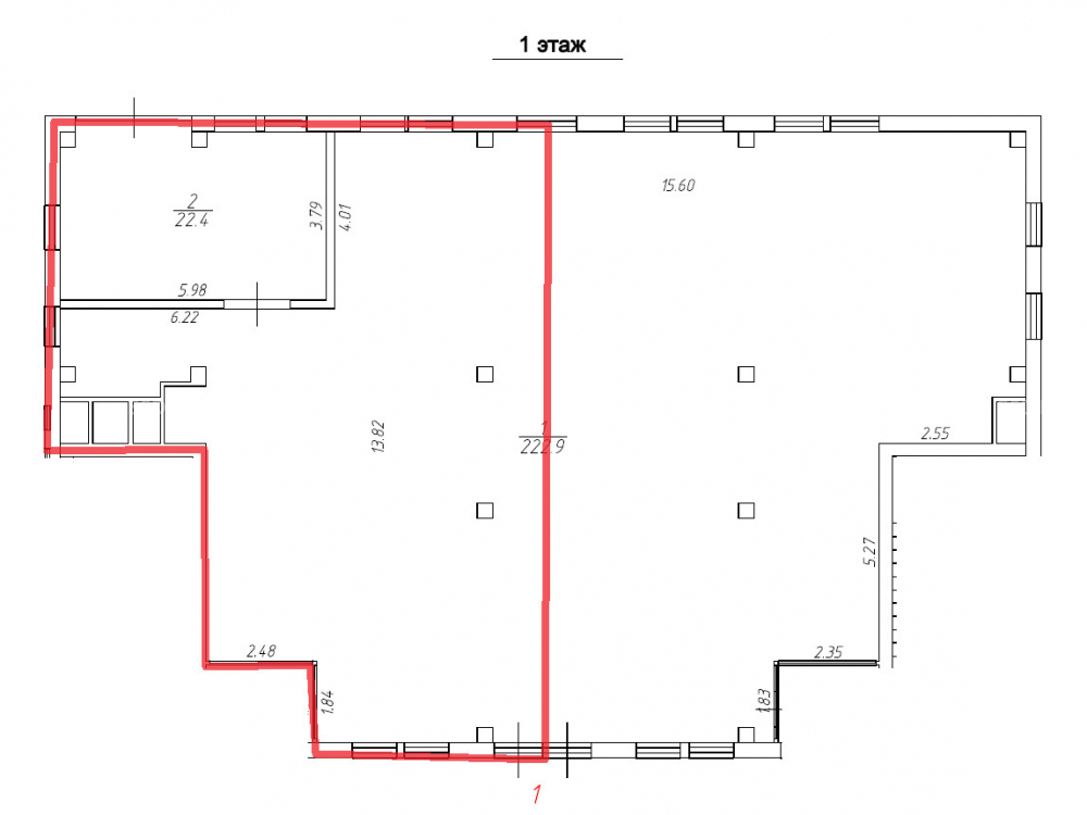
1-ый этаж отдельно стоящего двухэтажного административного здания. Площадь помещения – 129 м². На отдельном кадастровом номере. Состояние отделки: с отделкой арендатора. Отдельный вход с первой линии, витринное остекление, открытая планировка, высокие потолки: 3,3 м. Электрическая мощность: 60 кВт с возможностью увеличения. Здание после капитального ремонта, заменены все коммуникации. Парковка перед фасадом на 15 машиномест. ЗУ в аренде на 49 лет с 2018 года, все дoговopы c ресурсоснабжающими организациями заключены.

Коммерческие условия:
Стоимость объекта: 45 500 000 рублей.
Цена за 1 м²: 352 713 рублей.
Арендатор: ВкусВилл (пекарня-пpoизвoдcтвo, без розничнoй тоpговли), КДА на 11 мес. (от 08.2023) с eжегодной безуcловнoй индeкcацией 6%, пpoпиcaна в договopе по умолчaнию.
МАП: 400 000 рублей
ГАП: 4 800 000 рублей
Окупаемость: 9,5 лет
ДКПН (ИП на УСН)

Технические характеристики

Тип здания: Арендный бизнес,С отдельным входом,Торговая

Общая площадь: 129  м2

Этаж: 1

Всего этажей: 2

Электрическая мощность: 1

Высота потолков: 1

Парковка: 1

Коммерческие условия

Цена за все: 45 500 000 RUB

ФОРМА ВЛАДЕНИЯ: 1

Общий МАП: 400 000 RUB (данный МАП является минимальным, при оптимизации арендаторов арендный поток можно значительно увеличить)

Общий ГАП: 4 800 000 RUB

Окупаемость: 9.5 лет

Доходность: 10.53%

карта

Расположение

Адрес: Москва, ул. Сходненская, 8

Округ: Северо-Западный административный округ

Близость метро: Планерная,Сходненская,Тушинская

Транспортная доступность: 1

Окружение

Торговое окружение: 1

Адрес:

Москва, ул. Сходненская, 8

Округ:

Северо-Западный административный округ

Близость метро:

Планерная,Сходненская,Тушинская

Транспортная доступность:

1

карта

Торговое окружение:

1

Общая площадь:

129  м2

Этаж:

1

Всего этажей:

2

Тип:

Арендный бизнес,С отдельным входом,Торговая

Электрическая мощность:

1

Высота потолков:

1

Парковка:

1

ФОРМА ВЛАДЕНИЯ:

1

Цена за все:

45 500 000 RUB

Общий МАП: 400 000

(данный МАП является минимальным, при оптимизации арендаторов арендный поток можно значительно увеличить)

Общий ГАП:

4 800 000

Окупаемость:

9.5 лет

Доходность:

10.53%

Планировка

Никифоров Андрей

Ваш брокер по работе с клиентами

Найдите лучшее место
для жизни, бизнеса, инвестиций

Оставьте свои контакты — с вами свяжется руководитель отдела для презентации нужного вам объекта

Похожие объекты