Id 145533

Москва, ул.Первомайская, 81 - 120,5 кв.м. - Аренда торгового помещения

адрес Первомайская улица, 81

Особняк/здание
С отдельным входом
Торговая
Общепит

500 000 RUB | в месяц

(за 1 м2 — 4 149 RUB)

площадь 120.5 м2

QR код Qr код

Предлагается в аренду торговое помещение 120,5 кв.м. по адресу: Москва, ул. Первомайская, д.81. От метро Первомайская 1 минута пешком. Сверхинтенсивный пешеходный и автомобильный трафик. Плотный жилой массив. Рядом остановка автобусов, трамваев и пешеходный переход. Развитое торговое окружение.

Технические характеристики:
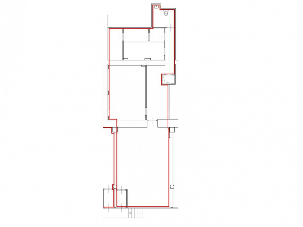
Площадь 120,5 кв.м., отдельный вход, витринные окна, 1-я линия, 1-й этаж. Высота потолка - 3,2 м. Помещение находится в встроенно-пристроенном 1 этажном здании к жилому дому. Мощность э/э - 15 кВт. Свободная планировка. Приточно-вытяжная вентиляция. Все коммуникации городские. Место для вывески.

Коммерческие условия:
Ставка аренды в месяц: 500 000 руб.
Ставка аренды за 1 кв.м. в месяц: 4 149 руб.
Ставка аренды за 1 кв.м. в год: 49 788 руб.

Технические характеристики

Тип здания: Особняк/здание,С отдельным входом,Торговая,Общепит

Общая площадь: 120.5  м2

Этаж: 1

Всего этажей: 1

Электрическая мощность: 15 кВт

Высота потолков: 3,2 м.

Парковка: 100 машиномест

Коммерческие условия

Цена в месяц: 500 000 RUB

ФОРМА ВЛАДЕНИЯ: физ.лицо

карта

Расположение

Адрес: Первомайская улица, 81

Округ: Восточный административный округ

Близость метро: Первомайская

Транспортная доступность: хорошая

Окружение

Торговое окружение: Аптека

Адрес:

Первомайская улица, 81

Округ:

Восточный административный округ

Близость метро:

Первомайская

Транспортная доступность:

хорошая

карта

Торговое окружение:

Аптека

Общая площадь:

120.5  м2

Этаж:

1

Всего этажей:

1

Тип:

Особняк/здание,С отдельным входом,Торговая,Общепит

Электрическая мощность:

15 кВт

Высота потолков:

3,2 м.

Парковка:

100 машиномест

ФОРМА ВЛАДЕНИЯ:

физ.лицо

Цена в месяц:

500 000 RUB

Планировка

Петр Соловьев

Ваш брокер по работе с клиентами

Найдите лучшее место
для жизни, бизнеса, инвестиций

Оставьте свои контакты — с вами свяжется руководитель отдела для презентации нужного вам объекта

Похожие объекты