Id 145778

Москва, ул. Багрицкого, д. 3 корп. 1/ 44.4 м2/Продажа АБ

адрес Москва, ЗАО, ул. Багрицкого, д. 3, корп. 1

Арендный бизнес
С отдельным входом
Торговая

Окупаемость: 10.7 года

Доходность:9.38%

25 500 000 RUB | за все

(за 1 м2 — 574 324 RUB)

площадь 44.4 м2

QR код Qr код

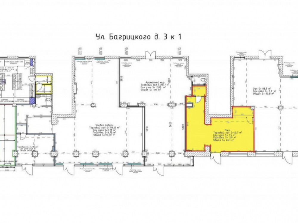
Продажа нежилого помещения свободного назначения по адресу: ЗАО, Москва, ул. Багрицкого, д. 3 корп. 1, площадью 44.4 м2. Объект расположен в первой линии густонаселенного жилого массива со сложившейся инфраструктурой. Ближайшее метро "Кунцевская".

Торговое окружение: супермаркет "Пятерочка".

Технические параметры: 1 этаж 9-ти этажного жилого дома, общей площадью 44.4 м2. Вход с первой линии, отдельная входная группа, высота потолков 3.35 м. Городские коммуникации. Выделенная электрическая мощность 14 кВт. Место для размещения рекламы на фасаде.

Коммерческие условия:
Стоимость объекта: 25 500 000 рублей.
Стоимость объекта за м2: 574 324 рубля.

Арендатор: Аптека «Вита», МАП 200 000 рублей, ДДА на 5 лет от сентября 2024, ежегодная безусловная индексация 5%.
ГАП: 2 400 000 рублей.
Окупаемость: 10.7 лет.
КУ оплачиваются арендатором отдельно.

Технические характеристики

Тип здания: Арендный бизнес,С отдельным входом,Торговая

Общая площадь: 44.4  м2

Этаж: 1

Всего этажей: 9

Электрическая мощность: 14 кВт

Высота потолков: 3.35 м

Парковка: есть

Коммерческие условия

Цена за все: 25 500 000 RUB

ФОРМА ВЛАДЕНИЯ: Юр. лицо

Общий МАП: 200 000 RUB (данный МАП является минимальным, при оптимизации арендаторов арендный поток можно значительно увеличить)

Общий ГАП: 2 400 000 RUB

Окупаемость: 10.7 года

Доходность: 9.38%

карта

Расположение

Адрес: Москва, ЗАО, ул. Багрицкого, д. 3, корп. 1

Округ: Западный административный округ

Близость метро: Давыдково,Кунцевская,Рабочий поселок

Транспортная доступность: Ближайшее метро «Кунцевская»

Окружение

Торговое окружение: Пятерочка, ВкусВилл

Адрес:

Москва, ЗАО, ул. Багрицкого, д. 3, корп. 1

Округ:

Западный административный округ

Близость метро:

Давыдково,Кунцевская,Рабочий поселок

Транспортная доступность:

Ближайшее метро «Кунцевская»

карта

Торговое окружение:

Пятерочка, ВкусВилл

Общая площадь:

44.4  м2

Этаж:

1

Всего этажей:

9

Тип:

Арендный бизнес,С отдельным входом,Торговая

Электрическая мощность:

14 кВт

Высота потолков:

3.35 м

Парковка:

есть

ФОРМА ВЛАДЕНИЯ:

Юр. лицо

Цена за все:

25 500 000 RUB

Общий МАП: 200 000

(данный МАП является минимальным, при оптимизации арендаторов арендный поток можно значительно увеличить)

Общий ГАП:

2 400 000

Окупаемость:

10.7 года

Доходность:

9.38%

Планировка

Павел

Ваш брокер по работе с клиентами

Найдите лучшее место
для жизни, бизнеса, инвестиций

Оставьте свои контакты — с вами свяжется руководитель отдела для презентации нужного вам объекта

Похожие объекты