Id 147931

Москва, ул. Инженера Кнорре, 7к5 - 148,4 м2 / Продажа торгового помещения с арендатором Магнит

адрес улица Инженера Кнорре, 7к5

Многофункциональный
Торговая
Жилой комплекс (мфк)
Новостройка

60 000 000 RUB | за все

(за 1 м2 — 404 313 RUB)

площадь 148.4 м2

QR код Qr код

Предлагается в продажу торговое помещение с арендатором в Саларьево в ЖК Homecity от международного турецкого девелопера PPF Real Estate. Комплекс бизнес-класса на 1513 квартир состоит из 5 корпусов (этажность от 6 до 9 этажей), объединенных широким пешеходным бульваром. ЖК заселен на 80%, сформирован ритейл. Метро Румянцево расположено в 10 минутах пешком.
Торговое окружение: супермаркет «Пятёрочка», гостиница «AZIMUT», БЦ «Комсити», Ароматный Мир, Буханка, Горздрав, Красное и Белое, Озон и другие.

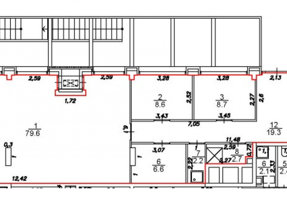
Технические характеристики: Общая площадь помещения – 148,4м² (вся площадь в одном уровне), 1 этаж торговой галереи 9-этажного жилого дома. Две входные группы. Рядом со входом в жилой комплекс. Витринные окна по фасаду. Открытая планировка. Высота потолков – 4,2 м. Электрическая мощность – 60 кВт.

Коммерческие условия:
~ Стоимость продажи - 60.000.000 рублей
~ Стоимость за м.кв. - 402.600 рублей
~ Арендатор продуктовая сеть "Магнит", ДА от 24г сроком на 10 лет
~ Продажа по ДКП от физ. лица

Технические характеристики

Тип здания: Многофункциональный,Торговая,Жилой комплекс (мфк),Новостройка

Общая площадь: 148.4  м2

Этаж: 1

Всего этажей: 9

Электрическая мощность: 30

Высота потолков: 4

Парковка: на улице

Коммерческие условия

Цена за все: 60 000 000 RUB

ФОРМА ВЛАДЕНИЯ: собственность

карта

Расположение

Адрес: улица Инженера Кнорре, 7к5

Близость метро: Румянцево,Саларьево,Солнцево

Транспортная доступность: метро

Окружение

Торговое окружение: развитое

Адрес:

улица Инженера Кнорре, 7к5

Округ:

Близость метро:

Румянцево,Саларьево,Солнцево

Транспортная доступность:

метро

карта

Торговое окружение:

развитое

Общая площадь:

148.4  м2

Этаж:

1

Всего этажей:

9

Тип:

Многофункциональный,Торговая,Жилой комплекс (мфк),Новостройка

Электрическая мощность:

30

Высота потолков:

4

Парковка:

на улице

ФОРМА ВЛАДЕНИЯ:

собственность

Цена за все:

60 000 000 RUB

Гуда Алексей

Ваш брокер по работе с клиентами

Найдите лучшее место
для жизни, бизнеса, инвестиций

Оставьте свои контакты — с вами свяжется руководитель отдела для презентации нужного вам объекта

Похожие объекты