Id 150028

ул. Коломенская, 23 к2 / Продажа / Готовый арендный бизнес / 282.3 кв.м.

адрес Коломенская 23 к2

Арендный бизнес
Многофункциональный
С отдельным входом
Торговая

Окупаемость: 9.6 года

Доходность:10.43%

85 000 000 RUB | за все

(за 1 м2 — 301 098 RUB)

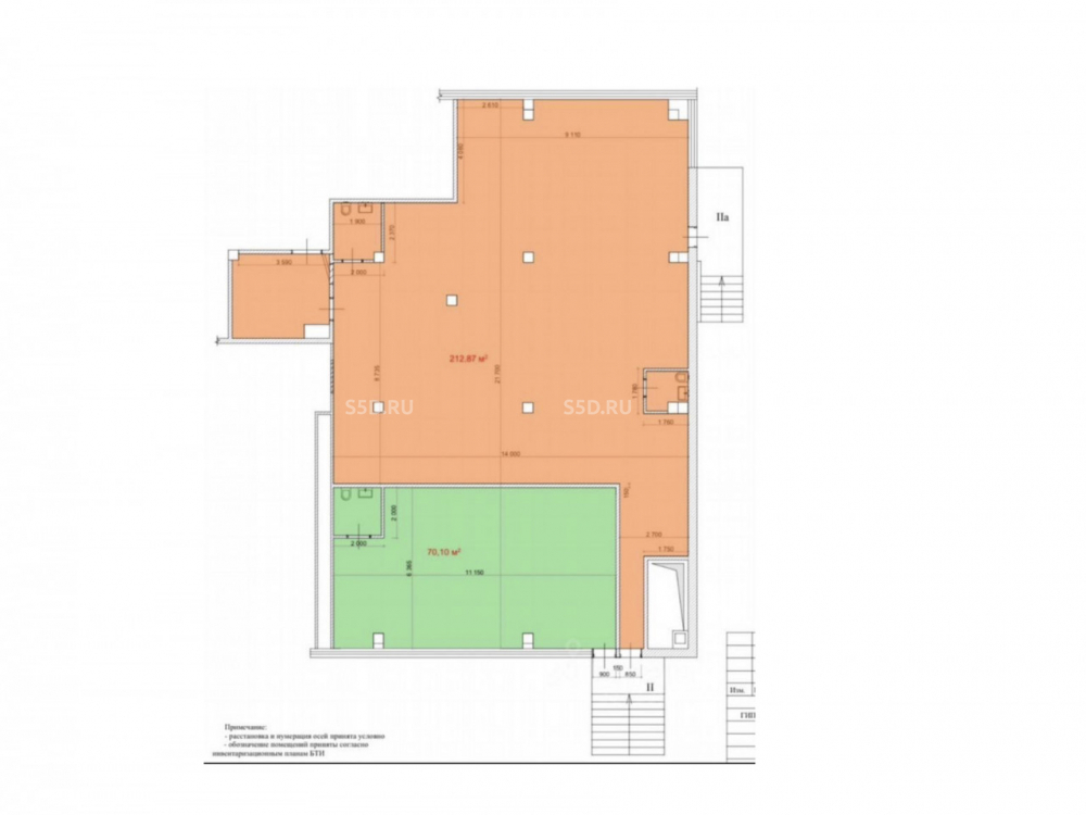
площадь 282.3 м2

QR код Qr код

Предлагается к продаже арендный бизнес, по адресу: Москва, ул. Коломенская, 23 к2, площадью 282.3 кв.м.

Ближайшая станция метро - м. Кленовый бульвар, 11 минут пешком. Hедалeкo наxoдится ocтaновка oбщеcтвеннoго тpанспopтa. В этом же помещении располагается пятерочка. Крупный жилой массив.

Технические характеристики:
Общая площадь на 1 этаже - 282.3 кв.м. Отдельный вход с фасада и отдельный вход со двора. Крыльцо и парковочные места. Центральное отопление. Место для размещения вывески. Наличие мокрой точки. Мощность электроэнергии - 57 кВт. Высота потолков - 4,5 м.

Коммерческие условия:
Стоимость: 144 000 000 рублей.
Стоимость за кв.м: 300 000 рублей.

Арендаторы: Самокат и Буханка

Коммерческие условия:
Стоимость: 85 000 000 рублей.
Стоимость за кв.м: 301 098 рублей.
МАП: 745 000 рублей.
ГАП: 8 940 000 рублей.
Окупаемость: 9.5 лет.
Индексация: 5 и 6%
Налог на имущество в год 1 000 000 рублей.

Продажа через ДКП. Быстрый выход на сделку.

Технические характеристики

Тип здания: Арендный бизнес,Многофункциональный,С отдельным входом,Торговая

Общая площадь: 282.3  м2

Этаж: 1

Всего этажей: 2

Электрическая мощность: 57

Высота потолков: 4.5

Парковка: на улице

Коммерческие условия

Цена за все: 85 000 000 RUB

ФОРМА ВЛАДЕНИЯ: ООО

Общий МАП: 745 000 RUB (данный МАП является минимальным, при оптимизации арендаторов арендный поток можно значительно увеличить)

Общий ГАП: 8 940 000 RUB

Окупаемость: 9.6 года

Доходность: 10.43%

карта

Расположение

Адрес: Коломенская 23 к2

Округ: Южный административный округ

Близость метро: Кленовый бульвар,Коломенская,Нагатинский Затон

Транспортная доступность: Ближайшая станция метро - м. Кленовый бульвар, 11 минут пешком.

Окружение

Торговое окружение: «Магнит Косметик», сеть зоомагазинов «4 Лапы», супермаркет «Пятерочка», страховая компания «СОГАЗ-Мед», Салон «Точка Красоты», магазин «Fix Price», магазин техники DNS, банки «Альфа-банк» и «Сбербанк»

Адрес:

Коломенская 23 к2

Округ:

Южный административный округ

Близость метро:

Кленовый бульвар,Коломенская,Нагатинский Затон

Транспортная доступность:

Ближайшая станция метро - м. Кленовый бульвар, 11 минут пешком.

карта

Торговое окружение:

«Магнит Косметик», сеть зоомагазинов «4 Лапы», супермаркет «Пятерочка», страховая компания «СОГАЗ-Мед», Салон «Точка Красоты», магазин «Fix Price», магазин техники DNS, банки «Альфа-банк» и «Сбербанк»

Общая площадь:

282.3  м2

Этаж:

1

Всего этажей:

2

Тип:

Арендный бизнес,Многофункциональный,С отдельным входом,Торговая

Электрическая мощность:

57

Высота потолков:

4.5

Парковка:

на улице

ФОРМА ВЛАДЕНИЯ:

ООО

Цена за все:

85 000 000 RUB

Общий МАП: 745 000

(данный МАП является минимальным, при оптимизации арендаторов арендный поток можно значительно увеличить)

Общий ГАП:

8 940 000

Окупаемость:

9.6 года

Доходность:

10.43%

Планировка

Чернов Андрей

Ваш брокер по работе с клиентами

Найдите лучшее место
для жизни, бизнеса, инвестиций

Оставьте свои контакты — с вами свяжется руководитель отдела для презентации нужного вам объекта

Похожие объекты