Id 150447

МО, Мытищи городской округ, Пирогово деревня, ул. Ильинского, 8 - 351.2 м2 / Аренда ПСН

адрес улица Ильинского, 8

С отдельным входом
Торговая

772 640 RUB | за все

(за 1 м2 — 2 200 RUB)

площадь 351.2 м2

QR код Qr код

Сдаётся в аренду помещение свободного назначения в ЖК Пироговская Ривьера, по адресу: МО, Мытищи городской округ, Пирогово деревня, ул. Ильинского 8., расположенное в 10 км от МКАД. В ЖК 4689 квартир. В 100 метрах крупнейший пляж на Пироговском Водохранилище. (В сезон очень высокий трафик).

Торговое окружение : Самокат, Ozon, Верный, Винлаб и др.

Технические характеристики:
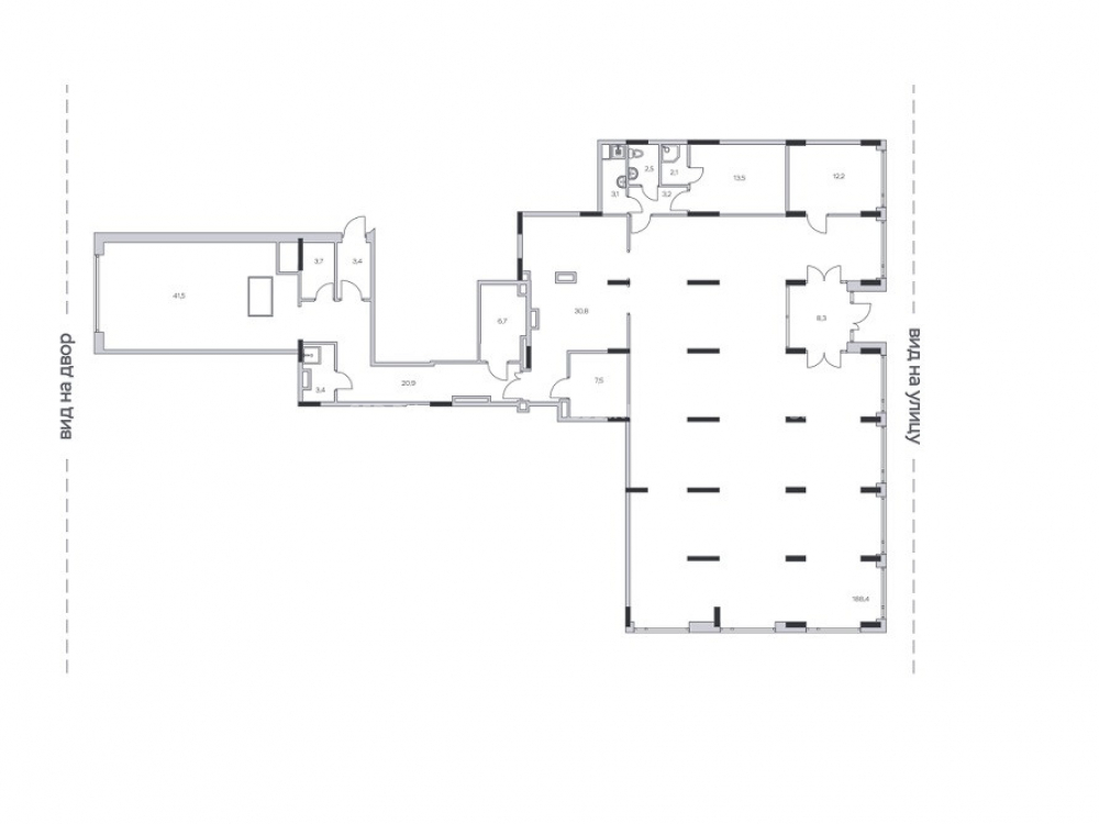
Общая площадь 351.2 м2. Первый этаж стилобатной части жилого дома. Две отдельные входные группы и ворота для разгрузки. Витринное остекление. Высота потолков 4.5 м. Электрическая мощность 70 кВт.

Коммерческие условия:
Общая площадь: 351,2 кв.м.;
Месячная арендная ставка: 772 640 рублей;
Арендная ставка за 1 кв.м. в месяц: 2 200 рублей;
Коммунальные платежи оплачиваются отдельно;
Страховой депозит 1 месяц;

Технические характеристики

Тип здания: С отдельным входом,Торговая

Общая площадь: 351.2  м2

Этаж: 1

Всего этажей: 9

Электрическая мощность: 70

Высота потолков: 4.5

Парковка: У помещения

Коммерческие условия

Цена за все: 772 640 RUB

ФОРМА ВЛАДЕНИЯ: Собственность

карта

Расположение

Адрес: улица Ильинского, 8

Округ: Северный административный округ

Близость метро: Медведково

Транспортная доступность: -

Окружение

Торговое окружение: Самокат, Ozon, Верный,Винлаб

Адрес:

улица Ильинского, 8

Округ:

Северный административный округ

Близость метро:

Медведково

Транспортная доступность:

-

карта

Торговое окружение:

Самокат, Ozon, Верный,Винлаб

Общая площадь:

351.2  м2

Этаж:

1

Всего этажей:

9

Тип:

С отдельным входом,Торговая

Электрическая мощность:

70

Высота потолков:

4.5

Парковка:

У помещения

ФОРМА ВЛАДЕНИЯ:

Собственность

Цена за все:

772 640 RUB

Планировка

Лев

Ваш брокер по работе с клиентами

Найдите лучшее место
для жизни, бизнеса, инвестиций

Оставьте свои контакты — с вами свяжется руководитель отдела для презентации нужного вам объекта

Похожие объекты