Id 150552

Новочеремушкинская ул. д. 17 / 186 кв.м. / Аренда ПСН

адрес Новочерёмушкинская улица, 17

Многофункциональный
С отдельным входом
Торговая

750 000 RUB | в месяц

(за 1 м2 — 4 032 RUB)

площадь 186.0 м2

QR код Qr код

Предлагается в аренду торговое помещение площадью 186 кв.м. на первой линии Новочеремушкинской улицы. Объект расположен в новом ЖК бизнес-класса "Новочерёмушкинская 17" и имеет прекрасную визуализацию с проезжей части. Благодаря интенсивному пешеходному и автомобильному трафику у данного помещения высокий рекламный и маркетинговый потенциал. ЖК "Новочерёмушкинская 17" насчитывает 695 квартир, этажностью от 18 до 20. Дом построен в 2019г. и заселен. Ближайшая станция метро Академическая - 7 мин. пешком. В течение года откроется новая станция метро БКЛ Академическая, в 350 метрах от дома. Остановка общественного транспорта в 50 метрах от входа. Удобная транспортная доступность.
Торговое окружение: супермаркет Мираторг, ВкувВилл, Винотека, Барбершоп Бритва, пекарня Печорин, салон текстиля и одежды, химчистка №1, англоязычный детский сад, Студия маникюра.

Технические характеристики:
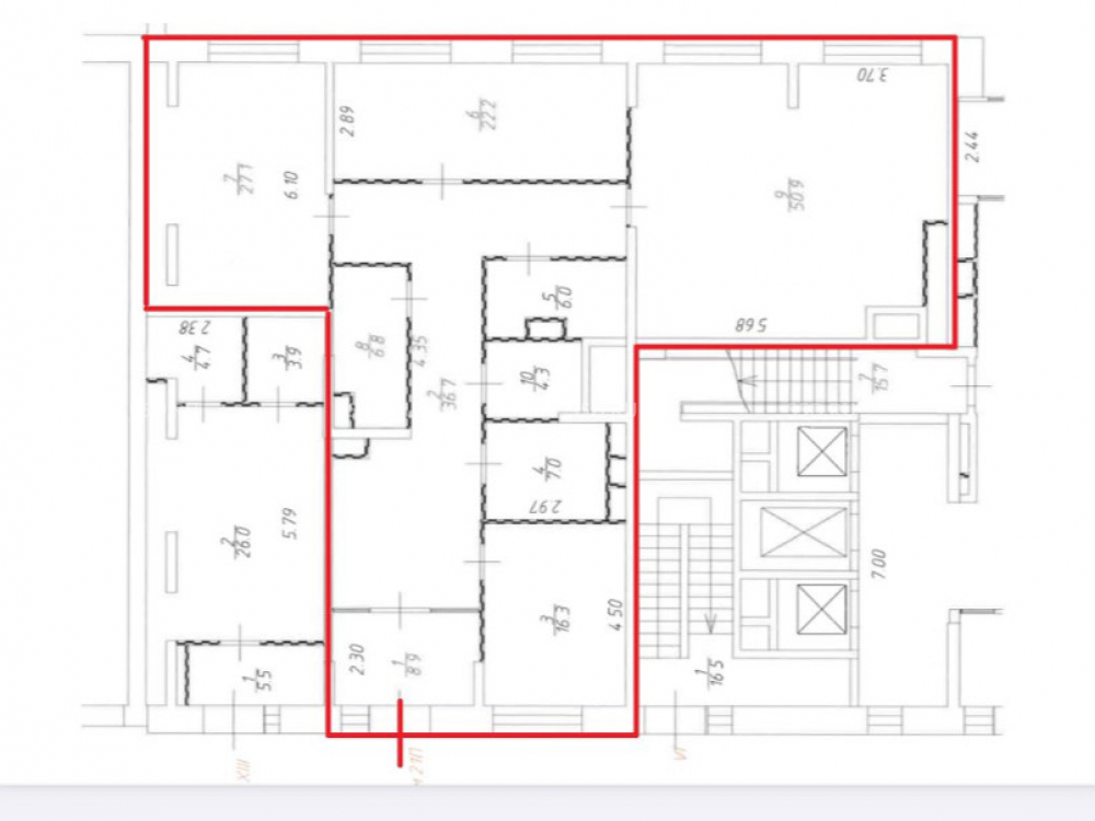
Общая площадь 186 кв.м. 1 этаж 18-ти этажного жилого дома. Отдельный вход с улицы, витринное остекление в пол. Открытая планировка, окна на 2 стороны. Высота потолков 4.5 м. Выделенная электрическая мощность 21 кВт ( возможно увеличение). Все инженерные коммуникации центральные. Состояние помещения ShellCore (бетон). Городской паркинг перед фасадом.

Коммерческие условия:
Ставка аренды в месяц - 750 000 руб.
Ставка за 1 кв.м в месяц- 4 032 руб.
Ставка за 1 кв.м в год - 48 387 руб.
Коммунальные платежи оплачиваются отдельно по факту потребления.

Технические характеристики

Тип здания: Многофункциональный,С отдельным входом,Торговая

Общая площадь: 186  м2

Этаж: 1

Всего этажей: 18

Электрическая мощность: 20

Высота потолков: 4,5

Парковка: Городская

Коммерческие условия

Цена в месяц: 750 000 RUB

ФОРМА ВЛАДЕНИЯ: Физ.лицо

карта

Расположение

Адрес: Новочерёмушкинская улица, 17

Округ: Юго-Западный административный округ

Близость метро: Академическая

Транспортная доступность: 7 минут пешком до метро Академическая

Окружение

Торговое окружение: супермаркет Мираторг, ВкувВилл, Винотека, Барбершоп Бритва, пекарня Печорин, салон текстиля и одежды, химчистка №1, англоязычный детский сад, Студия маникюра.

Адрес:

Новочерёмушкинская улица, 17

Округ:

Юго-Западный административный округ

Близость метро:

Академическая

Транспортная доступность:

7 минут пешком до метро Академическая

карта

Торговое окружение:

супермаркет Мираторг, ВкувВилл, Винотека, Барбершоп Бритва, пекарня Печорин, салон текстиля и одежды, химчистка №1, англоязычный детский сад, Студия маникюра.

Общая площадь:

186  м2

Этаж:

1

Всего этажей:

18

Тип:

Многофункциональный,С отдельным входом,Торговая

Электрическая мощность:

20

Высота потолков:

4,5

Парковка:

Городская

ФОРМА ВЛАДЕНИЯ:

Физ.лицо

Цена в месяц:

750 000 RUB

Планировка

Степанов Анатолий

Ваш брокер по работе с клиентами

Найдите лучшее место
для жизни, бизнеса, инвестиций

Оставьте свои контакты — с вами свяжется руководитель отдела для презентации нужного вам объекта

Похожие объекты