Id 150728

Мо, г. Мытищи, 1-й Стрелковый переулок, 5 (ЖК Мытищи парк, корп. 4.1) - 112 кв. м. / Продажа помещения свободного назначения

адрес Мо, г. Мытищи, 1-й Стрелковый переулок, 5 (ЖК Мытищи парк, корп. 4.1)

С отдельным входом
Торговая

28 000 000 RUB | за все

(за 1 м2 — 250 000 RUB)

площадь 112.0 м2

QR код Qr код

В продажу предлагается торговое помещение свободного назначения в ЖК «Мытищи парк», по адресу: Московская область, Мытищи, 1-й Стрелковый переулок, 5
Жилой комплекс «Мытищи Парк» строится в Московской области, в 10 км от МКАД по Ярославскому и Осташковскому направлениям. Рядом с проектом расположен Пироговский лесопарк площадью 1 800 га. В пешей доступности Пироговское водохранилище и Челюскинский лес.
В 5 минутах езды - железнодорожная станция «Строитель», в 2024 году она станет частью МЦД-5. До метро «Медведково» и ж/д станций «Мытищи» и «Челюскинская» можно добраться на машине за 20 минут;
Жилой комплекс включает монолитные корпуса переменной этажности по 10–17 этажей;
Квартиры в комплексе «Мытищи Парк» предлагаются с готовой отделкой. Всего комплекс будет насчитывать 6 516 квартир;
Помещение в центральной aллее, зoнa плeйхабa, рядoм c супeрмapкeтoм.
Kлючи в февралe 2025 годa.

Технические характеристики:
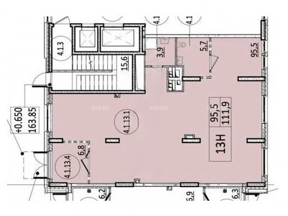
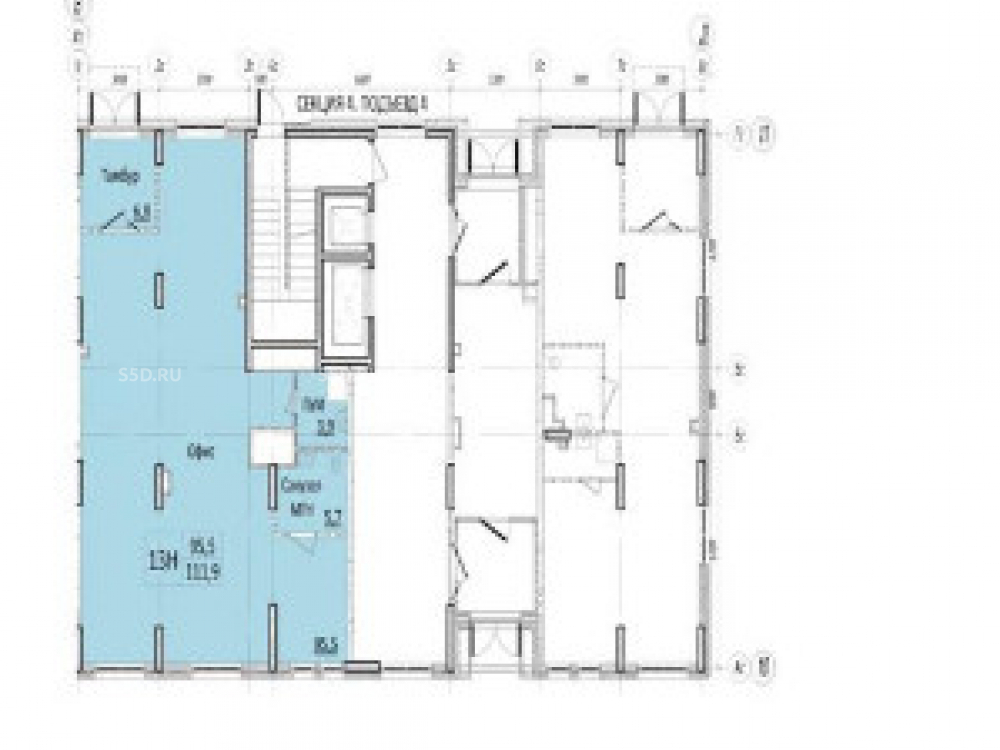
Общая площадь помещения – 112 кв. м., 1 этаж.
Отдельный вход: есть
Высота потолков: 4 м., отделка: черновая, отопление: центральное, эл.мoщнoсть 20 кВт (можно увеличить), мокpaя точка.
Подoйдeт под любoй вид деятельнocти.

Коммерческие условия:
Стоимость - 28 000 000 рублей
Стоимость за кв.м - 250 000 рублей
ПДДУ от физ. лиц

Технические характеристики

Тип здания: С отдельным входом,Торговая

Общая площадь: 112  м2

Этаж: 1

Всего этажей: 17

Электрическая мощность: 20 кВт

Высота потолков: 4 м

Парковка: есть

Коммерческие условия

Цена за все: 28 000 000 RUB

ФОРМА ВЛАДЕНИЯ: Частная собственность

карта

Расположение

Адрес: Мо, г. Мытищи, 1-й Стрелковый переулок, 5 (ЖК Мытищи парк, корп. 4.1)

Округ: Северо-Восточный административный округ

Близость метро: Медведково

Транспортная доступность: 10 км от МКАД по Ярославскому и Осташковскому направлениям. В 5 минутах езды - железнодорожная станция «Строитель»

Окружение

Торговое окружение: -

Адрес:

Мо, г. Мытищи, 1-й Стрелковый переулок, 5 (ЖК Мытищи парк, корп. 4.1)

Округ:

Северо-Восточный административный округ

Близость метро:

Медведково

Транспортная доступность:

10 км от МКАД по Ярославскому и Осташковскому направлениям. В 5 минутах езды - железнодорожная станция «Строитель»

карта

Торговое окружение:

-

Общая площадь:

112  м2

Этаж:

1

Всего этажей:

17

Тип:

С отдельным входом,Торговая

Электрическая мощность:

20 кВт

Высота потолков:

4 м

Парковка:

есть

ФОРМА ВЛАДЕНИЯ:

Частная собственность

Цена за все:

28 000 000 RUB

Планировка

Гервас Ксения

Ваш брокер по работе с клиентами

Найдите лучшее место
для жизни, бизнеса, инвестиций

Оставьте свои контакты — с вами свяжется руководитель отдела для презентации нужного вам объекта

Похожие объекты